Vuokrataan toimistotilat - Espoo
Ahventie 4, 02170 Espoo #10828611
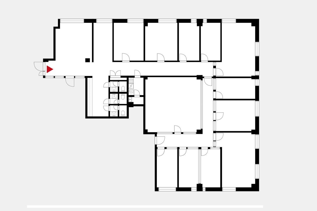
Vuokrataan viidennen kerroksen toimistotilaa Ahti Business Parkissa Haukilahdessa. Kohde käsittää useita toimistohuoneita, missä jokaisessa ikkuna, tiimityöskentelytiloja, neuvottelutilaa, sosiaalitilat ja keittiön. Kohde soveltuu loistavasti mm. taloushallintoa harjoittavalle toimijalle.
Kohteessa on hyvät liiketoimintaa tukevat palvelut vuokralaiselle, kuten aulapalvelu, vuokrattavia kokous- ja neuvottelutiloja, laadukas lounasravintola sekä reilusti pysäköintitilaa. Ahti Business Parkille on myönnetty myös ympäristösertifikaatti.
Kohteen saavutettavuus on mitä mainioin, koska kohde sijaitsee Länsiväylän varressa. Omalla autolla Helsingin keskustaan 15 min ja Matinkylään Ison Omenan kauppakeskukseen n. 5 minuuttia. Pysäköintipaikkoja autohallissa ja ulkokannella. Lähin bussipysäkki on aivan talon vieressä ja Niittykummun metroasema vain kävelymatkan päässä. Kiinteistössä on myös laadukas pyöräparkki ja siistit pukuhuonetilat työmatkapyöräilijöille.
Vuokraan lisätään alv + kulut (kysy lisätietoja Toimitila-asiantuntijalta)
Lisätiedot ja yhteydenotto:
www.blanctoimitilat.fi
Harri Laisto
+358 40 536 5590
harri.laisto@blanckiinteisto.com

Blanc Toimitilat
Harri Laisto
Toimitila-asiantuntija, CEO, Kaupanvahvistaja, LKV
Näytä puhelinnumero
+358405365590