Vuokrataan toimistotilat - Oulu
Torikatu 21, Keskusta, 90100 Oulu #10828605
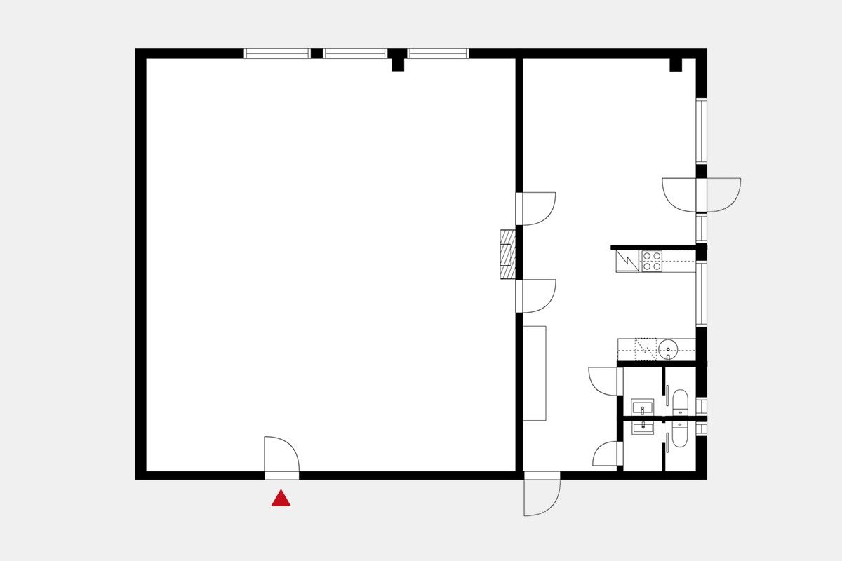
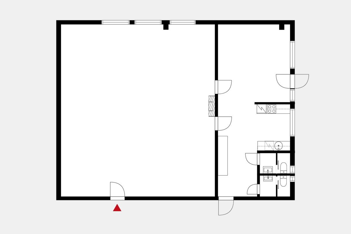
Vuokrataan heti vapaana olevaa toimistotilaa rakennuksen 6.kerroksesta. Tilassa on erillisiä huoneita, wc-tilat sekä avotilaa. Tilaa voidaan myös tarvittaessa jakaa. Kohde on aivan Oulun keskustassa, joten kaikki palvelut ovat vain kivenheiton päässä.
Lisätiedot ja yhteydenotto:
www.blanctoimitilat.fi
Harri Laisto
+358 40 536 5590
harri.laisto@blanckiinteisto.com
Osoite
Torikatu 21, 90100 Oulu
Tilatyyppi
Toimistotilaa
155 m2
Vapautuu
Kysy
Ota yhteyttä

Blanc Toimitilat
Harri Laisto
Toimitila-asiantuntija, CEO, Kaupanvahvistaja, LKV
Näytä puhelinnumero
+358405365590
Pyydä lisätietoa