Vuokrataan toimistotilat - Espoo
Keilaranta 1, Keilaniemi, 02150 Espoo #10828594
Keilaranta 1 on moderni, kestävän kehityksen mukainen toimistokiinteistö upealla paikalla Keilaniemen metroaseman yläpuolella, meren rannassa. Rakennuksen uudisosalle on myönnetty LEED® Platina -ympäristösertifikaatti, joka korostaa kiinteistön vastuullisuutta ja laatua.
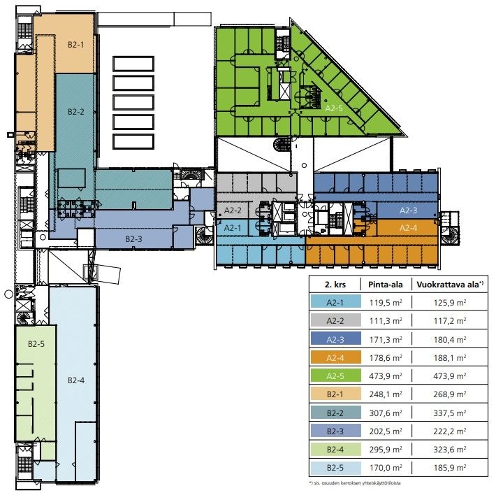
Kiinteistössä on monipuoliset palvelut, kuten lounasravintola, catering, kuntosali sekä kaksi erikseen vuokrattavaa sauna- ja edustustilaa. Joustavasti muunneltavat toimistotilat vaihtelevat 117–550 m² välillä, ja pienempiä tiloja voi vuokrata toimistohotellista. Lisäksi laajassa neuvottelukeskuksessa on 23 tilaa 6–200 hengen tarpeisiin.
Keskeinen sijainti Kehä 1:sen ja Länsiväylän vieressä takaa sujuvat yhteydet julkisilla ja autolla, ja kiinteistössä on runsaasti pysäköintitilaa.
Tiesitkö, että tilan hakijalle palvelumme on maksuton?
Ota yhteyttä ja kysy lisää!
www.blanctoimitilat.fi
Harri Laisto, Kaupanvahvistaja, LKV, Yrittäjä
+358 40 536 5590
harri.laisto@blanckiinteisto.com

Blanc Toimitilat
Harri Laisto
Toimitila-asiantuntija, CEO, Kaupanvahvistaja, LKV
Näytä puhelinnumero
+358405365590