Vuokrataan toimistotilat - Espoo
Linnoitustie 2a, Leppävaara, 02600 Espoo #10828565
Etsitkö huippulaatuisia toimistotiloja? Quartetto Business Park Basso tarjoaa sinulle täydellisen toimitilaympäristön. Me huolehdimme yrityksesi ja henkilöstösi tarpeista tarjoamalla monipuolisia palveluita, kuten lounasravintolan, kahvion, aulapalvelun sekä liikunta- ja terveyspalvelut saman katon alta. Quartetto Basso yhdistää kattavan palvelukokonaisuuden viihtyisään ympäristöön.
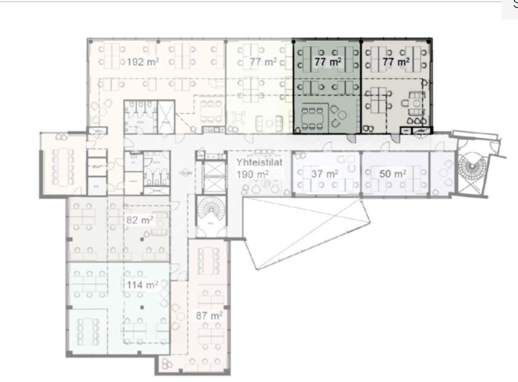
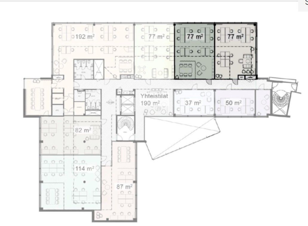
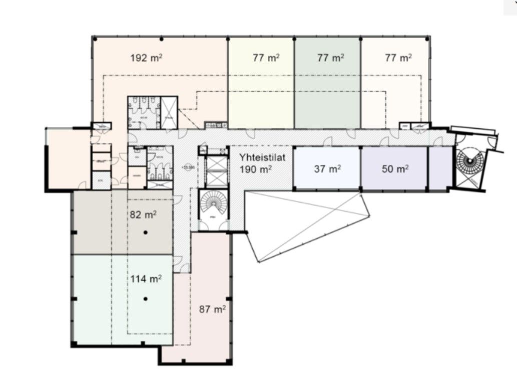
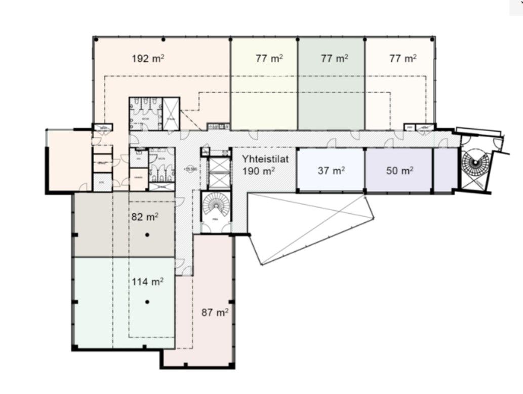
Vuokrataan moderni n. 77 m² toimisto 2. kerroksessa. Tilasta on hissiyhteys business parkin aulaan. Keittiö, wc-tilat ja taukotila ovat yhteiskäytössä. Vuokrattaviin neliöihin lisätään jyvitys yhteisistä tiloista. Sijaintimme on erinomainen, aivan Kehä I:n ja Turunväylän läheisyydessä, ja Leppävaaran keskustan palvelut ovat kävelymatkan päässä.
Lähelläsi on myös Kauppakeskus Sello, joka täydentää alueen palvelutarjontaa. Leppävaaran juna-asema ja Sellon monipuoliset palvelut ovat vain parin minuutin kävelymatkan päässä. Hyvät liikenneyhteydet Turuntieltä ja Kehä I:ltä takaavat sujuvan pääsyn kiinteistöllemme. Lisäksi Leppävaaran juna-asema ja bussilaiturit ovat vain lyhyen kävelymatkan päässä. Tulevaisuudessa Raide-Jokeri kulkee kiinteistömme edestä, mikä tekee liikkumisesta vielä helpompaa. Quartetto Business Park Basso on täydellinen valinta yrityksellesi.
Vuokraan lisätään alv + kulut.
Ota yhteyttä ja kysy lisää!
www.blanctoimitilat.fi
Harri Laisto, Kaupanvahvistaja, LKV, Yrittäjä
+358 40 536 5590
harri.laisto@blanckiinteisto.com

Blanc Toimitilat
Harri Laisto
Toimitila-asiantuntija, CEO, Kaupanvahvistaja, LKV
Näytä puhelinnumero
+358405365590