Vuokrataan toimistotilat - Espoo
Keilasatama 5, Keilaniemi, 02150 Espoo #10828513
Keilasatama on ikoninen toimistotalo Espoon Keilaniemessä, joka yhdistää tyylikkään arkkitehtuurin ja laadukkaat palvelut. Kiinteistö sijaitsee Keilaniemen parhaalla paikalla aivan metroaseman läheisyydessä, tarjoten loistavat kulkuyhteydet sekä julkisilla että omalla autolla.
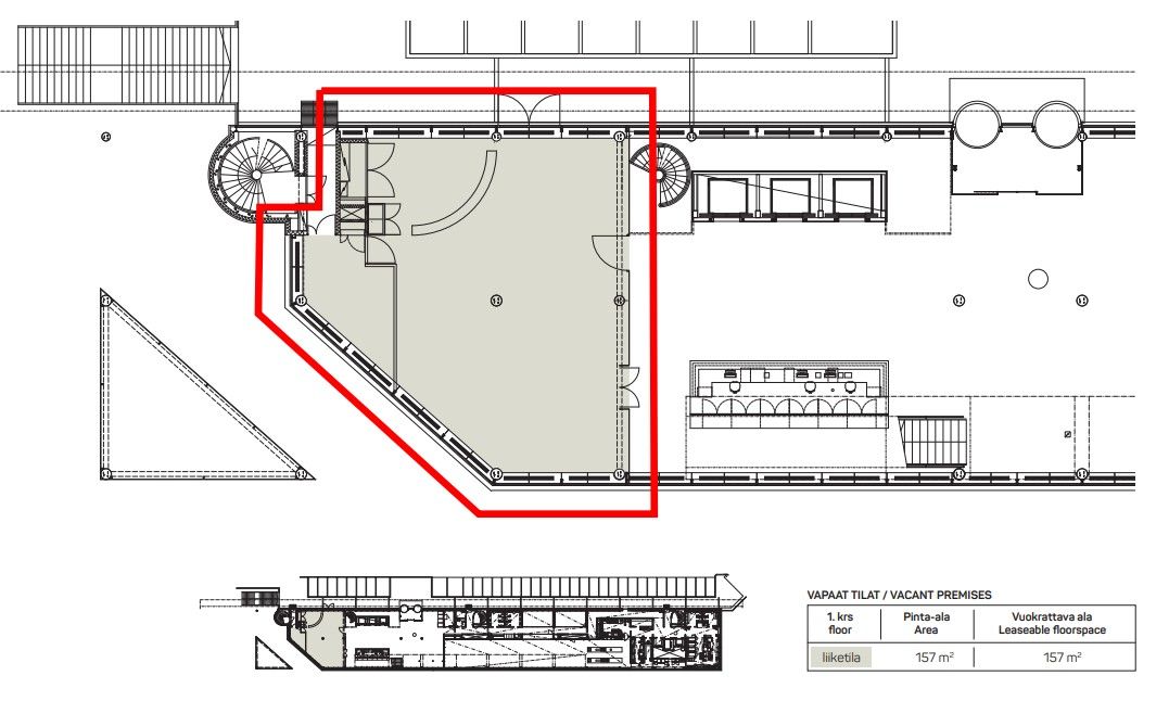
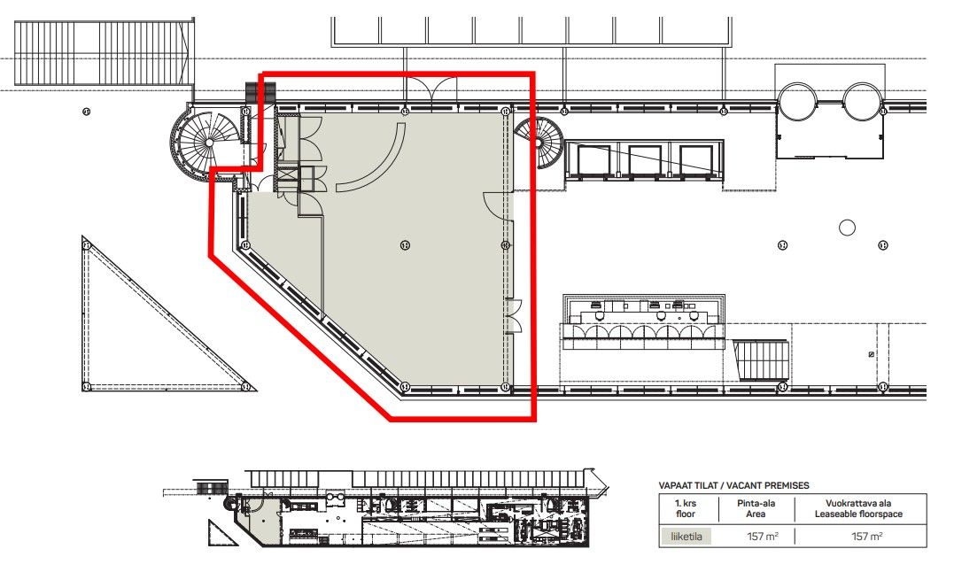
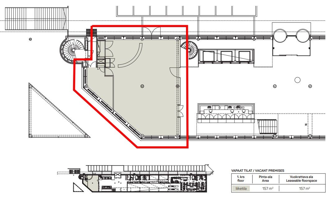
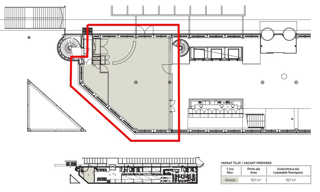
Keilasataman yhdeksässä kerroksessa on toimitiloja eri kokoluokan yrityksille 300 m²:stä ylöspäin. Vuoden 2022 alussa uudistetut yleiset tilat ja laaja neuvotteluhuonekeskus tarjoavat erinomaiset puitteet sekä päivittäiseen työskentelyyn että suurempiin kokouksiin. Toisessa kerroksessa sijaitsevassa keskuksessa on yhteensä 21 tilaa, jotka soveltuvat 8–200 hengen tilaisuuksiin.
Vuokralaisten käytössä ovat myös moderni kuntosali ja personal trainer -palvelut erillisveloituksella. Monipuolinen ravintola ja kahvila palvelevat niin työntekijöitä kuin vierailijoita.
Keskeinen sijainti Kehä 1
ja Länsiväylän vieressä takaa sujuvan saavutettavuuden, ja henkilökunnalle on runsaasti pysäköintitilaa sekä kiinteistössä että sen välittömässä läheisyydessä.
Ota yhteyttä ja löydä yrityksellesi toimiva ja näyttävä toimitila Keilasatamasta!
www.blanctoimitilat.fi
Joonas Nuutinen, toimitila-asiantuntija
+358 40 754 5408
joonas.nuutinen@blanckiinteisto.com
Palvelumme tilanhakijalle on maksuton!

Blanc Toimitilat
Harri Laisto
Toimitila-asiantuntija, CEO, Kaupanvahvistaja, LKV
Näytä puhelinnumero
+358405365590