Vuokrataan toimistotilat - Helsinki
Tammasaarenkatu 7, Ruoholahti, 00180 Helsinki #10828485
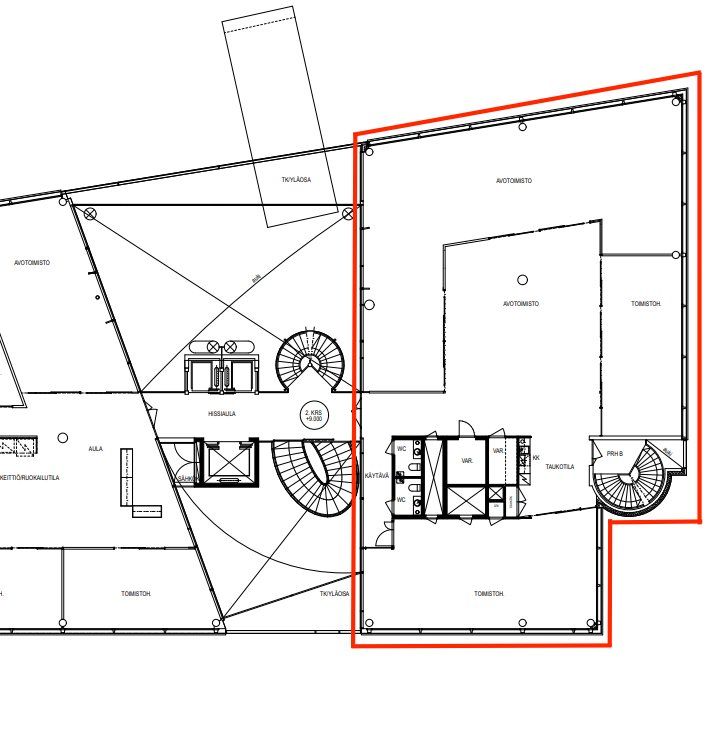
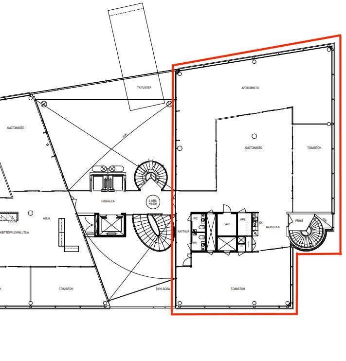
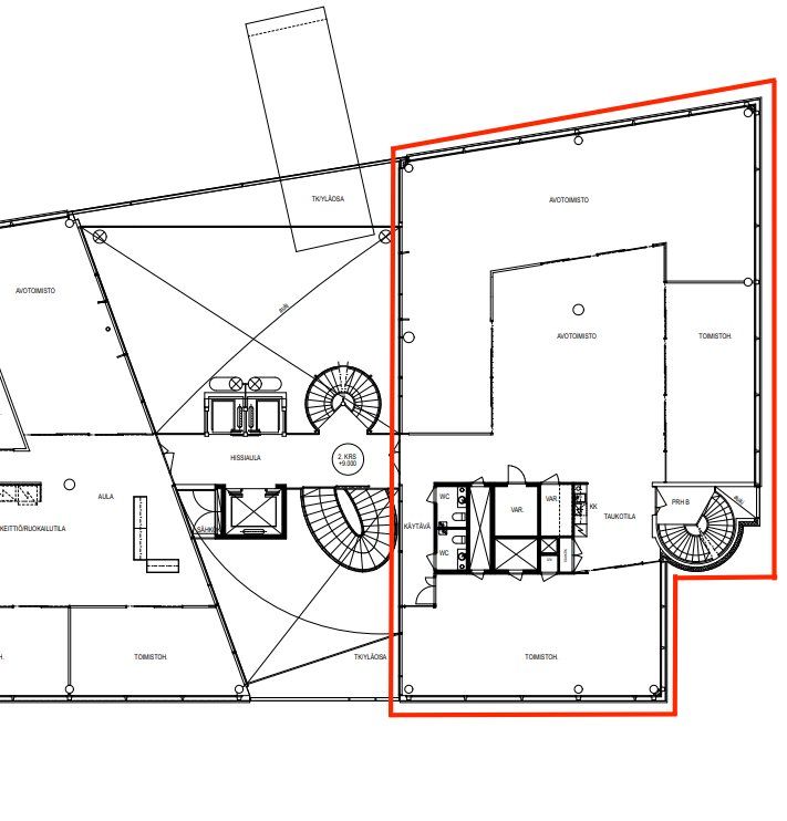
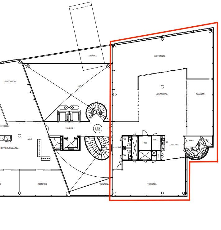
Vuokrattavana modernia toimistotilaa arkkitehtuuristaan tunnetussa HTC Helsingissä meren äärellä. Kohde tarjoaa aulapalvelut, ravintolat, neuvottelu- ja edustustilat, auditorion, kuntosalin sekä pysäköintihallin. Erinomainen sijainti kävelymatkan päässä metroasemalta. Tila on pääasiallisesti avotilaa, mutta muutokset tilaan ovat myös mahdollisia.
Vuokraan lisätään alv + kulut
Ota yhteyttä ja kysy lisää!
www.blanctoimitilat.fi
Harri Laisto, LKV, Kaupanvahvistaja
harri.laisto@blanckiinteisto.com
040 536 5590
Tiesitkö, että tilan hakijalle palvelumme on maksuton!

Blanc Toimitilat
Harri Laisto
Toimitila-asiantuntija, CEO, Kaupanvahvistaja, LKV
Näytä puhelinnumero
+358405365590