Myydään varastotilat - Somero
Lummetie 7, Keskusta, 31400 Somero #10828416
Myydään harvoin tarjolla oleva halli- ja tuotantotilaa Someron teollisuusalueen yrityskeskittymästä. Kohde soveltuu loistavasti mm. varastointi, myymälä, teolliseen, sekä tuotannolliseen toimintaan.
Logistisesti hyvällä paikalla sijaitseva halli on vuosien 2006-2021 aikana kokenut useita perusparannuksia mm. sähköjen ja pintojen osalta.
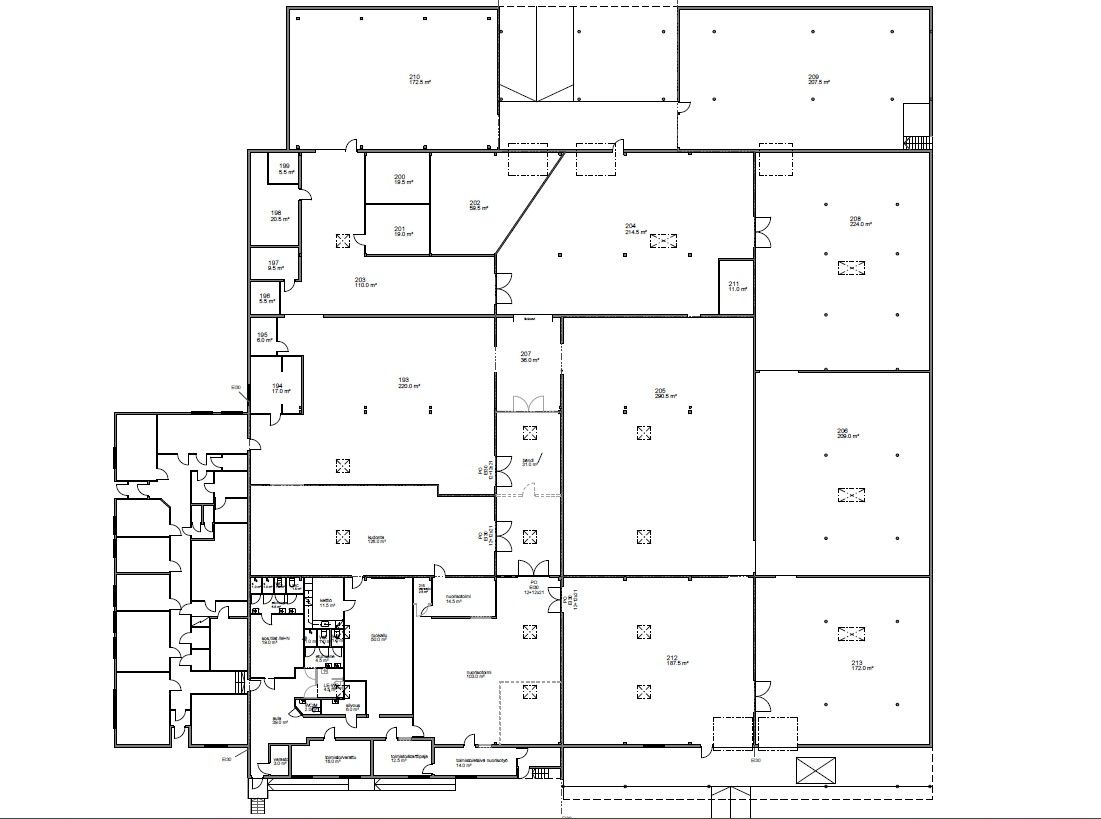
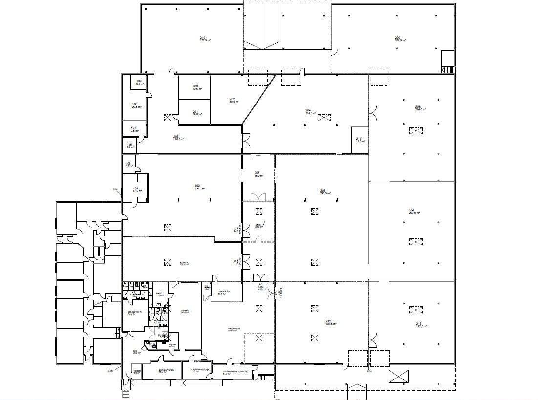
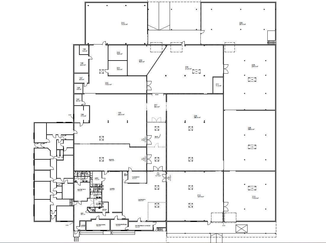
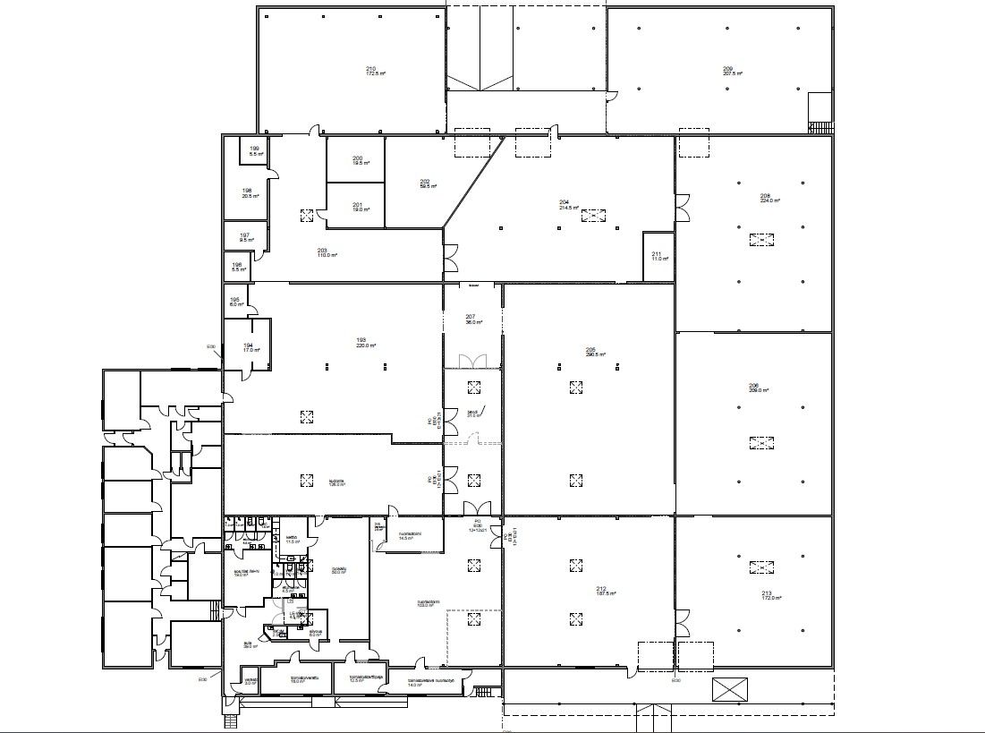
Sisäpinnoiltaan siistissä kokonaisuudessa on mm. toimivat sosiaalitilat, keittiö, taukotilat, useita nosto-ovia, missä sisäänajo mahdollisuus, hyvä valaistus, runsaasti eri pinta-alan tuotanto, varasto ja toimistotiloja, useita voima- ja valovirta pistokkeita, koneellinen ilmanvaihto, kaukolämpö sekä tietoliikenteelle tarvittavat reititykset.
Kokonaisuus käsittää noin. 3030m2 toimitilaa, mistä noin 600m2 kylmää lämpimäksi muokattavissa olevaa varastotilaa, vapaa sisäkorkeus rakennuksessa on n. 4 metriä. Sisätilat ovat myös hyvin muuntojoustavat ja tarjoaa mahdollisuuksia eri toimintojen tai tuotantovaiheiden sijoittamiseen kevyiden väliseinien johdosta.
Suuri n. 1,23 ha tontti piha-alueineen mahdollistaa myös monenlaisen kaluston tai esimerkiksi merikonttien varastoinnin. Kiinteistön piha-alue on asfaltoitu, mistä löytyy myös runsaasti pysäköintitilaa. Nykytilassa kohteen kaikki tilat, kuten toimistosiipi on vuokrattu mm. eläinklinikka toimintaan. Klinikan tilat on remontoitu kokonaisuudessaan 2021 aikana toiminnan tarpeiden mukaisesti.
Nyt myytävänä oleva kokonaisuus on nykymuotoisena loistava kohde niin sijoitukseen tai omaan käyttöön.
KOHDE ON KOKONAAN VUOKRATTU!
Ota yhteyttä ja kysy lisää!
www.blanctoimitilat.fi
Harri Laisto
harri.laisto@blanckiinteisto.com
+358 40 536 5590

Blanc Toimitilat
Harri Laisto
Toimitila-asiantuntija, CEO, Kaupanvahvistaja, LKV
Näytä puhelinnumero
+358405365590