Vuokrataan muut tilat - Kerava
Posliinitehtaankatu 14, 04260 Kerava #10828402
Vuokrataan ravintolatila, hyvällä sijainnilla!
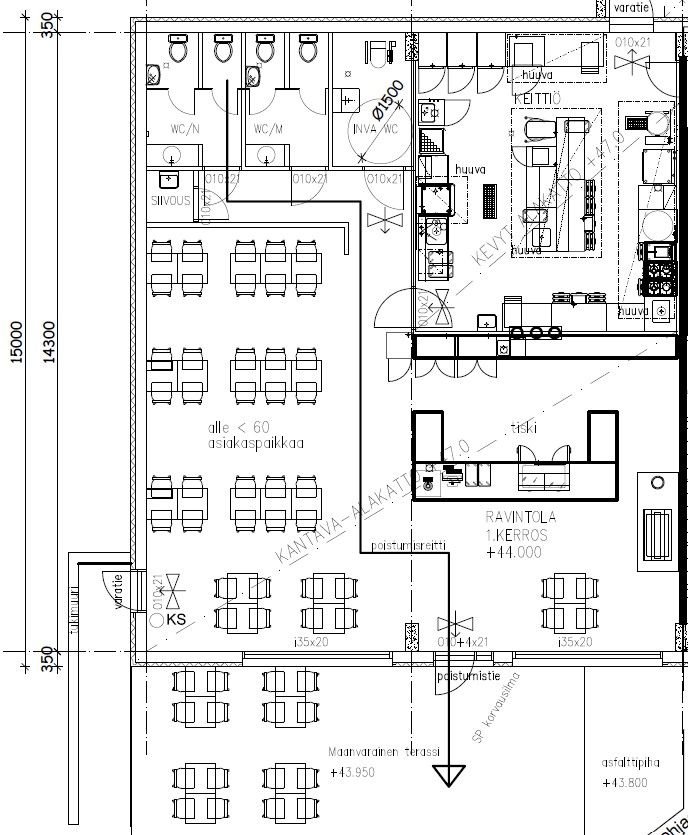
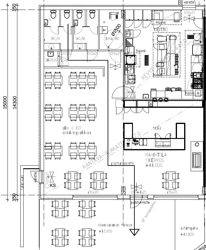
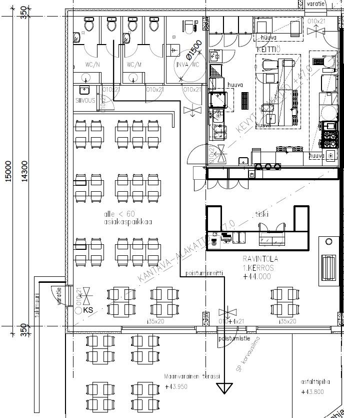
Kohteeseen on kaikki tarvittava mitä ravintola toiminnalle toivoisit aloituksen yhteydessä. Isot asiakastilat palvelevat hyvin lounasmyyntiä ja suuri keittiö mahdollistaa suuremmankin tuotannon toteuttamisen.
Lisäksi on mahdollista erikseen tai yhdessä vuokrata suuri lähes 620m2 keskuskeittiö tilan vierestä, missä on harjoitettu päivittäistavarakaupalle suunnattua tuotantoa.
Kohde sijaitsee loistavalla paikalla Ali-Keravan teollisuus- ja tuotantoalueella aivan Koffin tehtaan välittömässä läheisyydessä. Hyvien kulkuyhteyksien ansiosta kohde täyttää myös logistisen tarpeen.
Vuokraan lisätään alv + kulut
Ota yhteyttä ja kysy lisää!
www.blanctoimitilat.fi
Harri Laisto, LKV, Kaupanvahvistaja
harri.laisto@blanckiinteisto.com
040 536 5590
Tiesitkö, että tilan hakijalle palvelumme on maksuton!

Blanc Toimitilat
Harri Laisto
Toimitila-asiantuntija, CEO, Kaupanvahvistaja, LKV
Näytä puhelinnumero
+358405365590