Vuokrataan toimistotilat - Espoo
Miestentie 7, Keilaniemi, 02150 Espoo #10828395
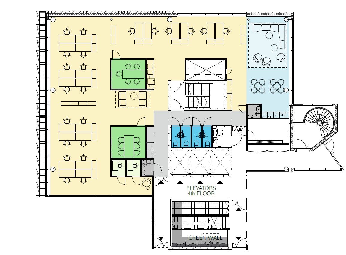
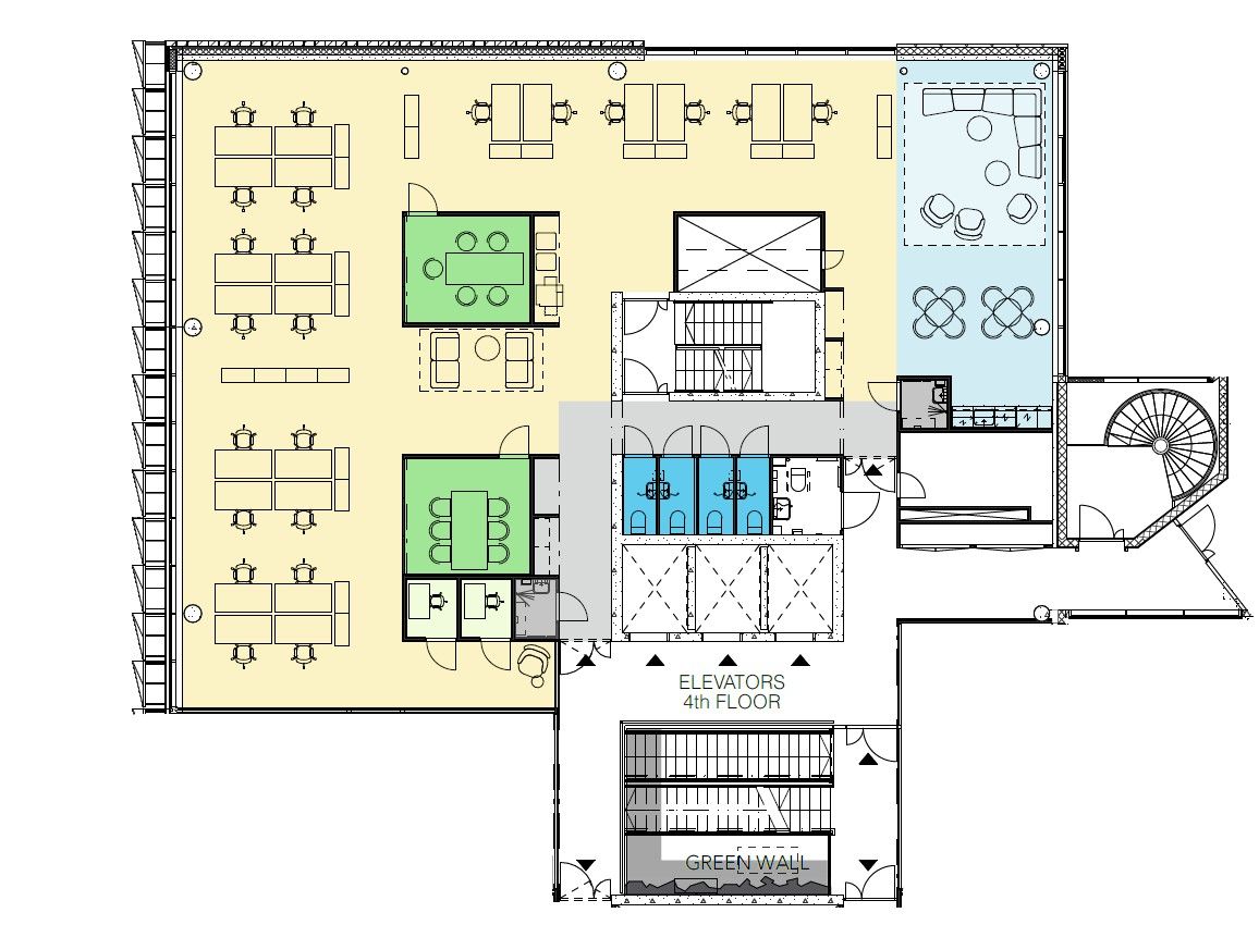
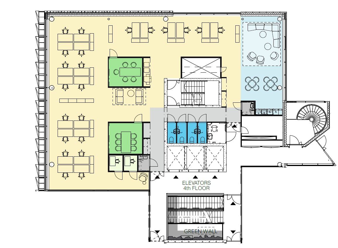
Vuokrattavana tasokas neljännen kerroksen toimistotila Keilaniemen Swing Housesta, joka tarjoaa yrityksille ainutlaatuisen viiden tähden työympäristön. Swing House on Suomen ensimmäinen WELL v2 Platinum -sertifioitu uudiskohde, jossa työhyvinvointi ja viihtyisyys ovat keskiössä. Rakennuksen huolella suunnitellut akustiikka- ja valaistusratkaisut luovat rauhallisen ja inspiroivan työympäristön, joka tukee vireystasoa ympäri vuoden. Vihreän lounasravintolan, kuntosalin ja modernien kokoustilojen ansiosta Swing House yhdistää erinomaisesti työn ja hyvinvoinnin. Tämän tilan joustavat pohjaratkaisut ja modernit palvelut tekevät siitä täydellisen valinnan yritykselle, joka arvostaa korkeaa laatua ja työntekijöidensä hyvinvointia.
Lisätiedot ja yhteydenotto:
www.blanctoimitilat.fi
Harri Laisto
+358 40 536 5590
harri.laisto@blanckiinteisto.com

Blanc Toimitilat
Harri Laisto
Toimitila-asiantuntija, CEO, Kaupanvahvistaja, LKV
Näytä puhelinnumero
+358405365590