Vuokrataan toimistotilat - Helsinki
Pohjoinen Rautatiekatu 25, Kamppi, 00100 Helsinki #10828393
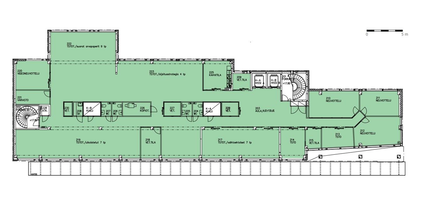
PR25 Pohjoisella Rautatiekadulla tarjoaa muunneltavaa ja viihtyisää toimistotilaa erinomaisella sijainnilla Kampin kupeessa. Kiinteistössä on tilava pyöräkellari pukuhuoneineen, varastotiloja ja pysäköintihalli 15 autolle. Ensimmäisen kerroksen neuvottelutilat ovat vuokralaisten yhteiskäytössä. Lähellä sijaitsevat metro, bussiterminaali ja Baana tekevät liikkumisesta sujuvaa.
Tiesitkö, että tilan hakijalle palvelumme on maksuton?
Lisätiedot ja yhteydenotto:
www.blanctoimitilat.fi
Harri Laisto, LKV, Kaupanvahvistaja, Yrittäjä
+358 40 536 5590
harri.laisto@blanckiinteisto.com

Blanc Toimitilat
Harri Laisto
Toimitila-asiantuntija, CEO, Kaupanvahvistaja, LKV
Näytä puhelinnumero
+358405365590