Vuokrataan toimistotilat - Helsinki
Salomonkatu 17, 00100 Helsinki #10828376
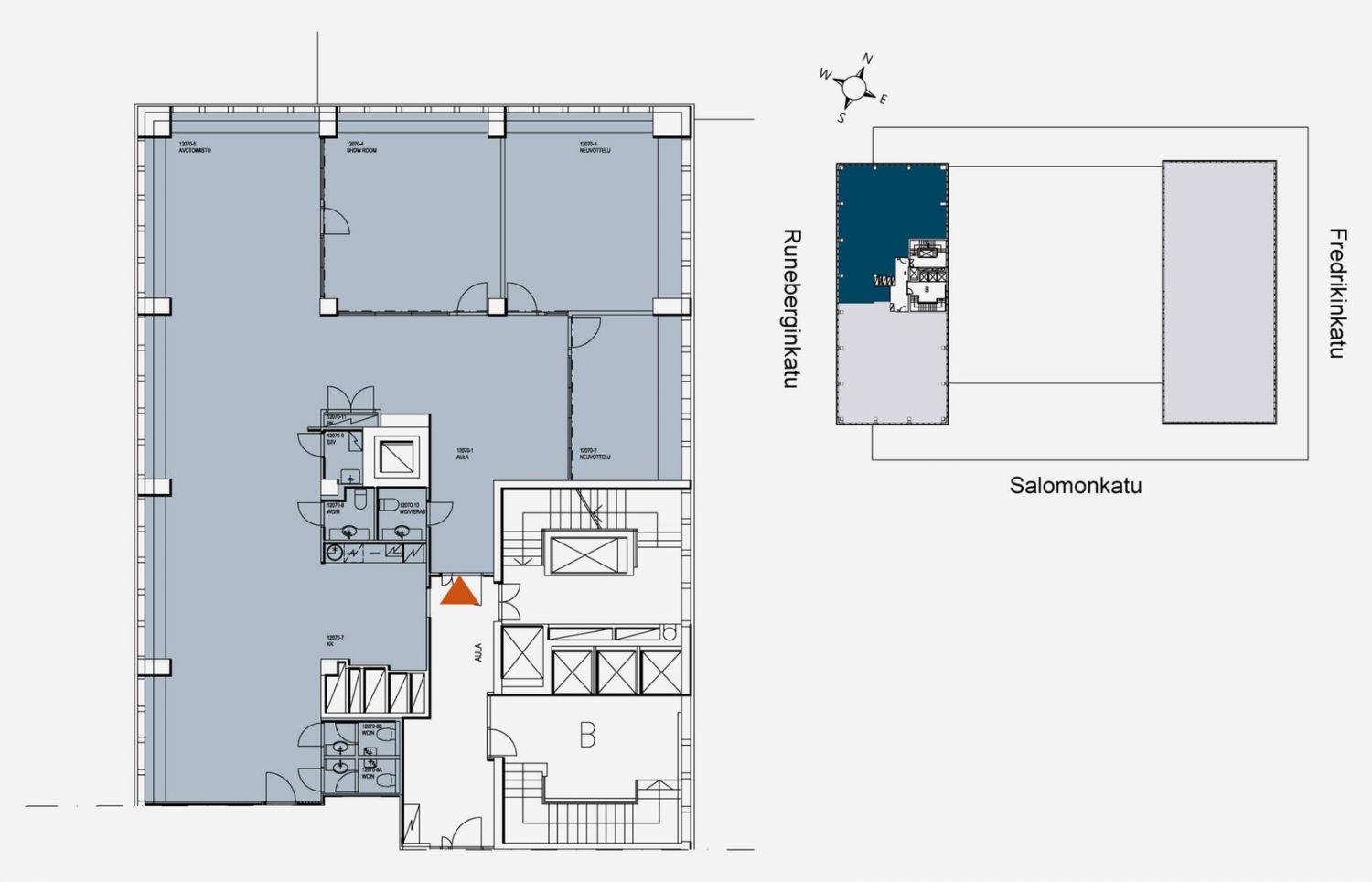
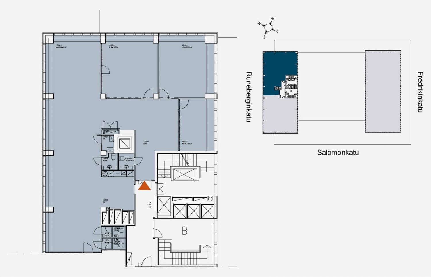
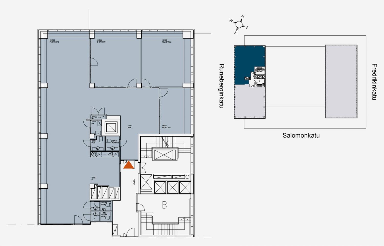
Vuokrataan upea 271 m² toimistotila Autotalon 12. kerroksessa, josta avautuvat upeat näkymät.. Monipuolisessa ja modernissa toimistossa on jäähdytys, ja kiinteistö on käynyt läpi mittavan perusparannuksen vuonna 2015. Kohde tarjoaa nykyaikaista toimitilaa sekä erinomaiset palvelut, mukaan lukien näyttävän aulatilan ja ravintolat. Loistava sijainti Kampin kauppakeskuksen vieressä takaa hyvät julkiset liikenneyhteydet sekä autopaikkoja löytyy kohteen parkkihallissa.
Tiesitkö, että tilan hakijalle palvelumme on maksuton?
Ota yhteyttä ja kysy lisää!
www.blanctoimitilat.fi
Harri Laisto, Kaupanvahvistaja, LKV, Yrittäjä
+358 40 536 5590
harri.laisto@blanckiinteisto.com

Blanc Toimitilat
Harri Laisto
Toimitila-asiantuntija, CEO, Kaupanvahvistaja, LKV
Näytä puhelinnumero
+358405365590