Vuokrataan toimistotilat - Espoo
Sinikalliontie 3, 02630 Espoo #10828363
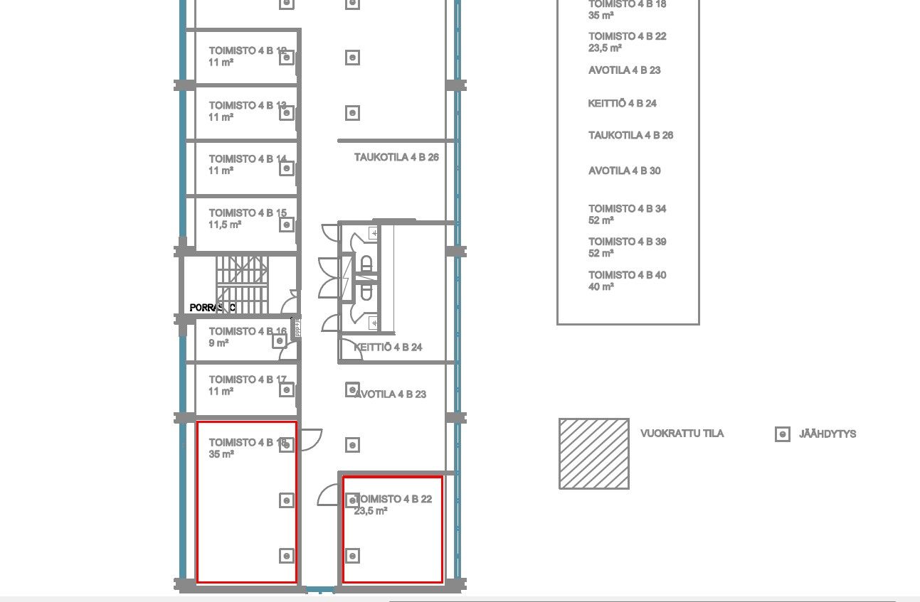
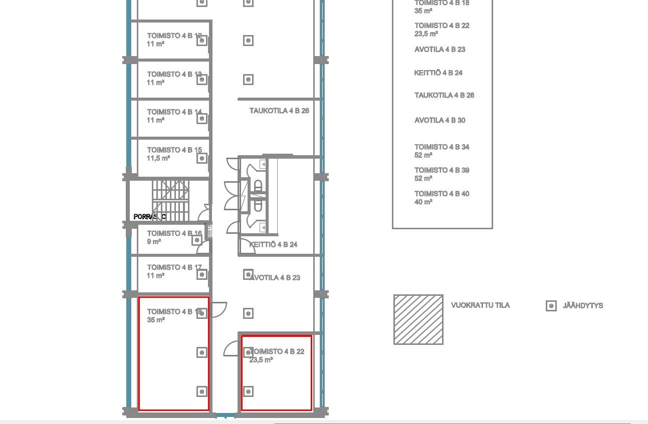
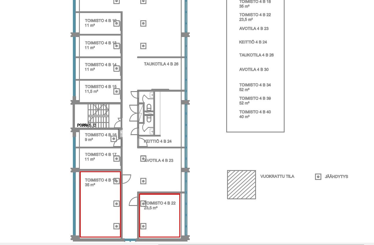
Vuokrattavana laadukkaat kaksi toimisto/työhuonetta Espoon Blue Berry -kiinteistön 3.kerroksesta. Tila tarjoaa monipuolisia mahdollisuuksia liiketoimintasi tarpeisiin. Tilassa on atk-pistokkeet, led valaistus sekä viihtyisät sosiaali- ja keittiötilat yhteiskäytössä. Tilaan kulkee myös tavarahissi henkilöhissin lisäksi, joten tavaroiden tuominen on myös vaivatonta.
Kiinteistön piha-alueella on runsaasti parkkipaikkoja. Lisäksi tarjolla on sähkölatauspaikkoja ja vieraspaikkoja. Autopaikan vuokra on 10€ + alv/kk
Blue Berryssä on myös lounasravintola, sekä Mankkaan Supermarketin palvelut ovat vain lyhyen kävelymatkan päässä.
Kiinteistö sijaitsee erinomaisten liikenneyhteyksien varrella, julkisilla kulkuvälineillä. Lisäksi oman auton käyttäjille Helsinkiin ajomatka kestää vain 10 minuuttia.
Tiesitkö, että tilan hakijalle palvelumme on maksuton?
Vuokraan lisätään voimassa oleva alv + kulut.
Ota yhteyttä ja kysy lisää!
www.blanctoimitilat.fi
Harri Laisto, Kaupanvahvistaja, LKV, Yrittäjä
+358 40 536 5590
harri.laisto@blanckiinteisto.com

Blanc Toimitilat
Harri Laisto
Toimitila-asiantuntija, CEO, Kaupanvahvistaja, LKV
Näytä puhelinnumero
+358405365590