Vuokrataan toimistotilat - Helsinki
Ruoholahdenkatu 8, Kamppi, 00180 Helsinki #10828340
Siisti 170 m² toimistotila Helsingin keskustan tuntumasta
Osoite
Ruoholahdenkatu 8, 00180 Helsinki
Tilatyyppi
Toimistotilaa
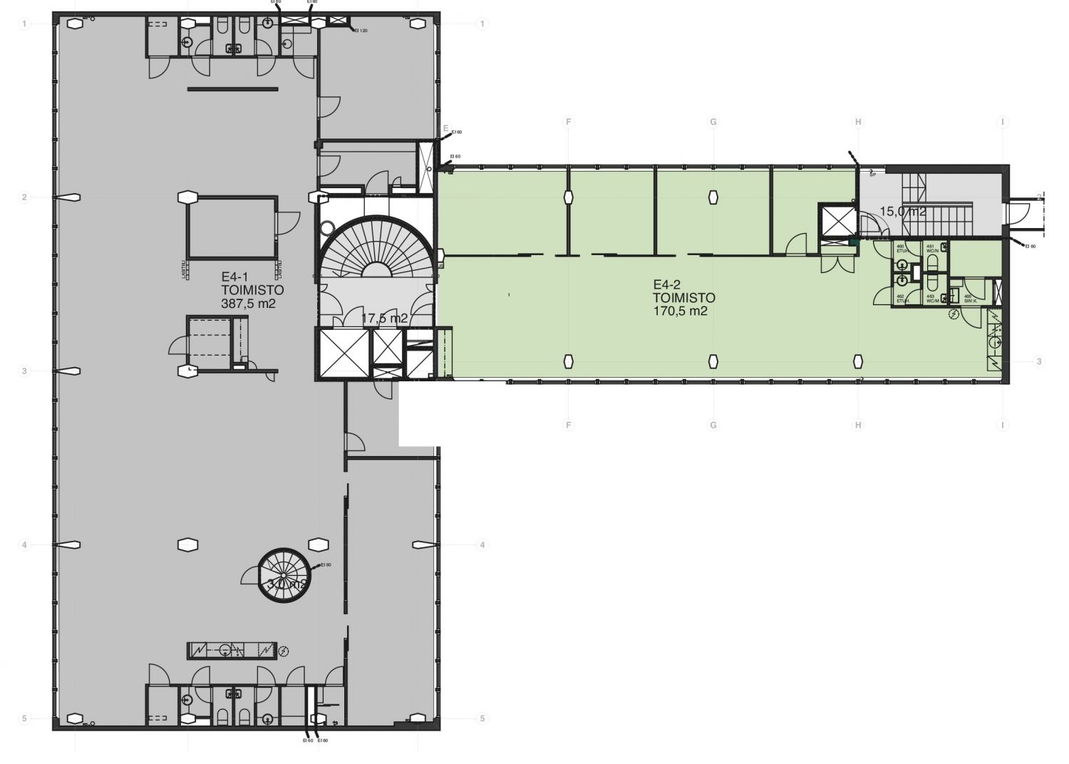
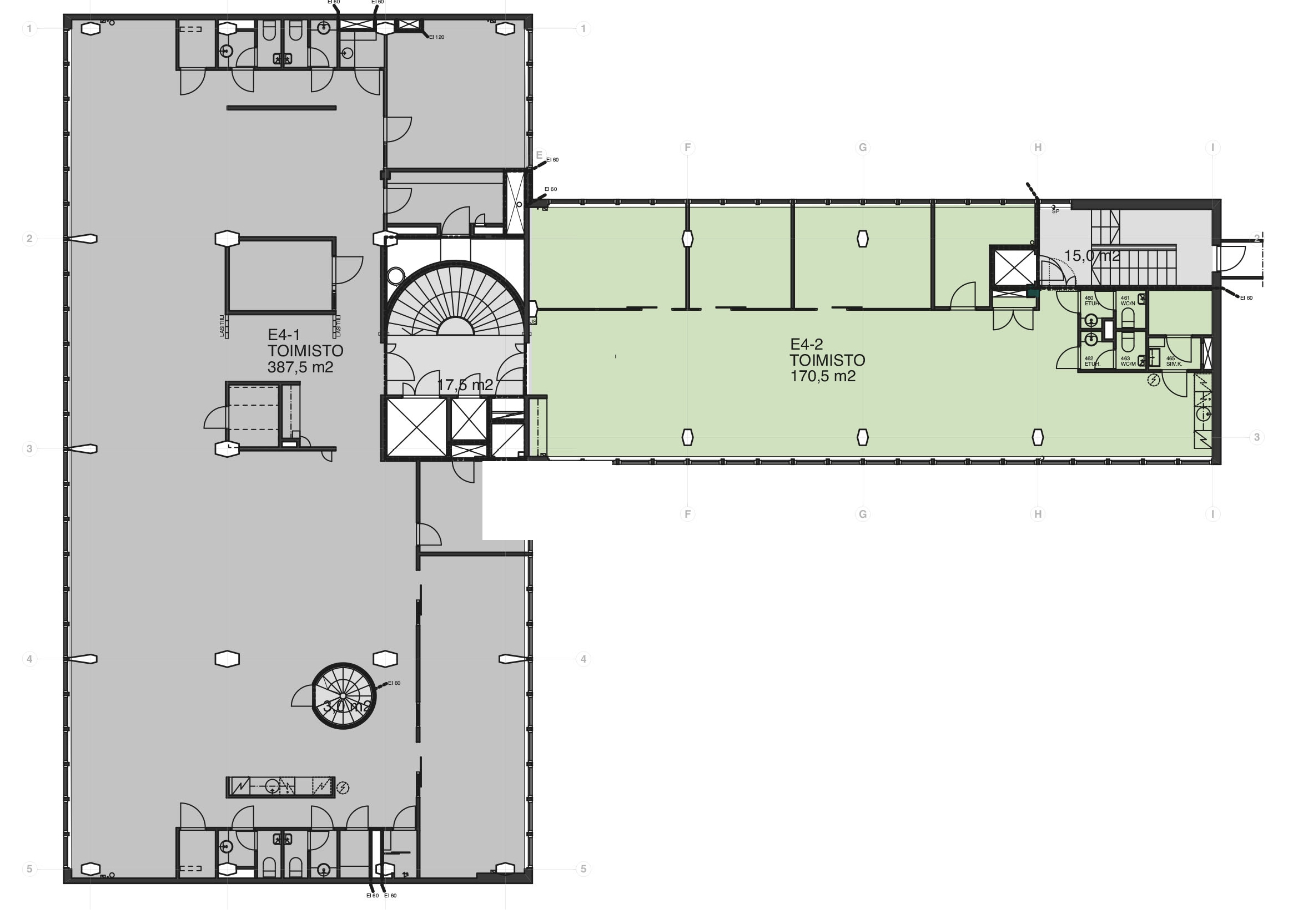
170,5 m2
Pohjapiirros
Kiinteistö
Toimistotilaa Helsingin Kampissa erinomaisten liikenneyhteyksien varrella.
Ilmoituksen kuvat ovat yleiskuvia kiinteistön eri tiloista.
Kiinteistö Oy Ruoholahdenkatu 8 tarjoaa liike- ja toimistotilaa hyvällä paikalla Helsingin keskustan tuntumassa. Rakennus on valmistunut vuonna 1956 ja 1964. Tilat on kokonaan peruskorjattu vuonna 2005.
Kiinteistön tehokkaat toimistotilat ovat helposti muunneltavissa käyttäjien tarpeisiin sopiviksi niin avokonttoriksi kuin myös huonetoimistoksi. Rakennuksessa on koneellinen ilmanvaihto ja jäähdytys.
Ruoholahdenkatu 8 sijaitsee hyvien liikenneyhteyksien varrella lyhyen kävelymatkan päässä Kampin metroasemalta. Rakennuksen sisäpihalla ja kellarissa on yhteensä noin 50 pysäköintipaikkaa.
Ilmoituksen kuvat ovat yleiskuvia kiinteistön eri tiloista.
Kiinteistö Oy Ruoholahdenkatu 8 tarjoaa liike- ja toimistotilaa hyvällä paikalla Helsingin keskustan tuntumassa. Rakennus on valmistunut vuonna 1956 ja 1964. Tilat on kokonaan peruskorjattu vuonna 2005.
Kiinteistön tehokkaat toimistotilat ovat helposti muunneltavissa käyttäjien tarpeisiin sopiviksi niin avokonttoriksi kuin myös huonetoimistoksi. Rakennuksessa on koneellinen ilmanvaihto ja jäähdytys.
Ruoholahdenkatu 8 sijaitsee hyvien liikenneyhteyksien varrella lyhyen kävelymatkan päässä Kampin metroasemalta. Rakennuksen sisäpihalla ja kellarissa on yhteensä noin 50 pysäköintipaikkaa.
Vapautuu
Heti
Rakennusvuosi
1956
Saneerausvuosi
2005
Kerros
4 / 7
Energiatehokkuusluokka
Ei lain edellyttämää energiatodistusta
Näkyvällä paikalla
Ota yhteyttä
ScanReal Oy LKV
Opus Business Park
Hitsaajankatu 24
00810 Helsinki
info@scanreal.fi
Puh:
Näytä puhelinnumero
020 730 8830
Sopivat toimitilat yhdellä otolla!
Kartoitamme toimitilatarpeesi ja etsimme yrityksellesi parhaiten sopivat vapaat toimitilat. Koska vuokranantajat maksavat palvelumme, on tämä yrityksellesi veloituksetonta.
OTA YHTEYTTÄ - SOVI NÄYTTÖ!
Kaikki kohteemme eivät ole netissä, kerro tilatarpeesi niin kartoitamme vaihtoehdot.
Palvelumme on tilanhakijalle ilmainen
Pyydä lisätietoa
