Vuokrataan - Helsinki
Vuorikatu 20, 00100 Helsinki #10828334
Vuokrattavana moderni ja muuttovalmis toimistotila loistavalla sijainnilla!
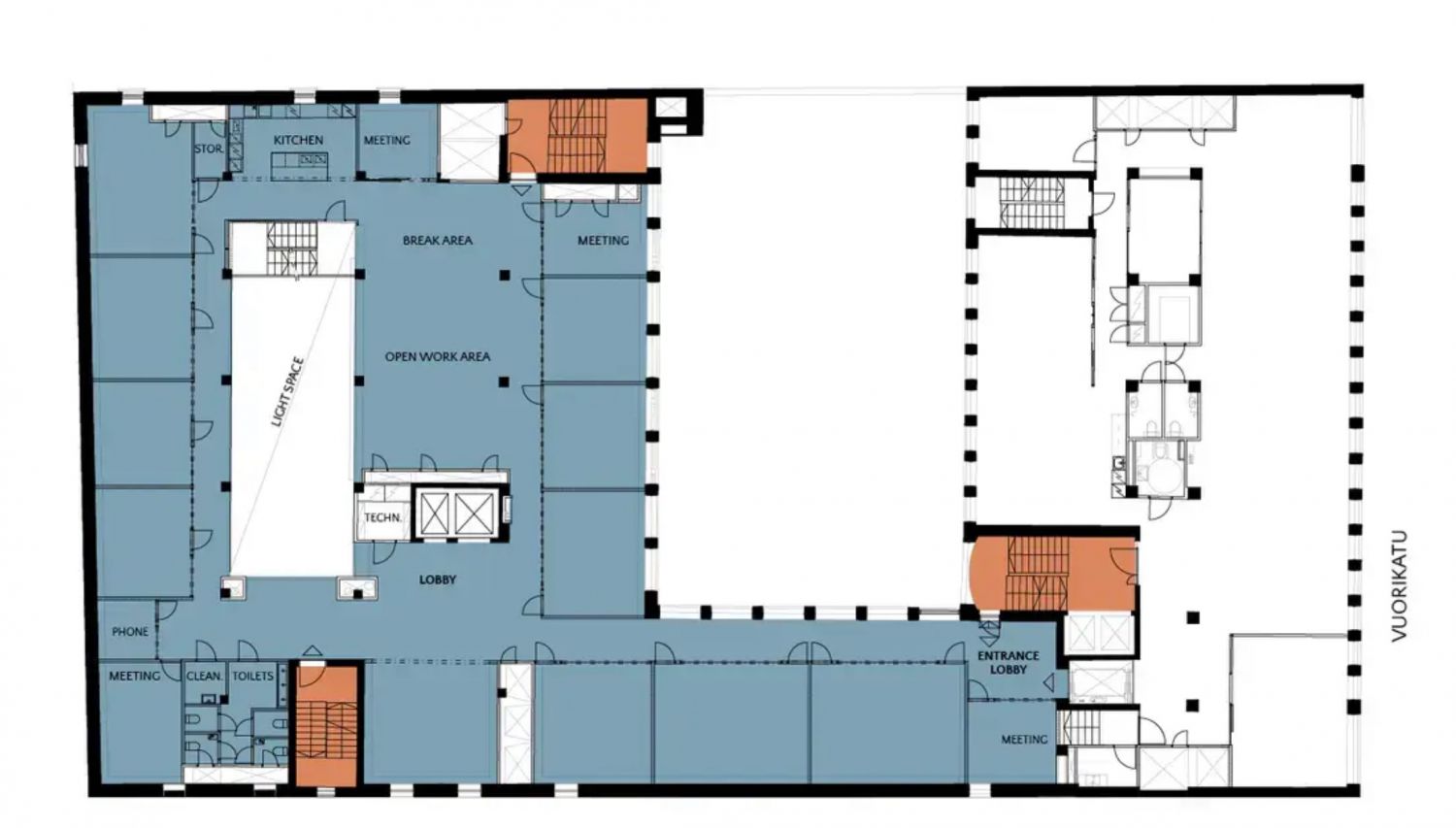
Tarjolla toisen kerroksen avara ja nykyaikainen 645 m2 toimistotila, joka on muuttovalmis. Tilaan on mahdollista sijoittaa työpisteet noin 40–50 hengelle, ja lisäksi se tarjoaa runsaasti ryhmätyö- ja neuvottelutiloja, jotka tukevat monipuolista ja tehokasta työskentelyä.
Sijainti on erinomainen aivan Helsingin ydinkeskustan tuntumassa, hyvien palveluiden äärellä. Yliopiston metroasema sijaitsee kiinteistön välittömässä läheisyydessä, mikä takaa erinomaiset julkiset liikenneyhteydet.
Moderni talotekniikka mukautuu monenlaisiin tarpeisiin ja näyttävä atrium-sisäpiha tuo valoa. Käyttäjiä hemmottelee rakennuksen ravintola, erinomaiset liikenneyhteydet ja kaikki keskustan palvelut.
Vuorikadulta on suora yhteys rautatieasemalle, metrotunnelin kauppoihin ja ravintoloihin sekä Yliopistonkadulle.
PYSÄKÖINTI
Kiinteistössä oma pysäköintihalli, 16 autopaikkaa. EuroPark - Kluuvi 100m kävelymatkan päässä. Mahdollisuus lyhytaikaiseen kadunvarsipysäköintiin.
PALVELUT
Kiinteistössä oma lounasravintola. Helsingin ydinkeskusta, keskustan ravintolat ja palvelut kävelyetäisyydellä. Täältä on lyhyt matka mihin tahansa Helsingin keskustassa.
KULKUYHTEYDET
Kaisaniemenkadun metro, raitio- ja bussipysäkit sijaitsevat n. 50 - 100 metrin etäisyydellä.
Kysy lisää: jouko.raitanen@rhg.fi/0504695444
RHG Real Estate
Hämeenkatu 2 B20, 20500 Turku
Näytä puhelinnumero
020 734 4020
Jouko Raitanen
Näytä puhelinnumero
050 469 5444
