Vuokrataan tuotantotilat, varastotilat - Heinola
Satamatie 12, 18100 Heinola #10828298
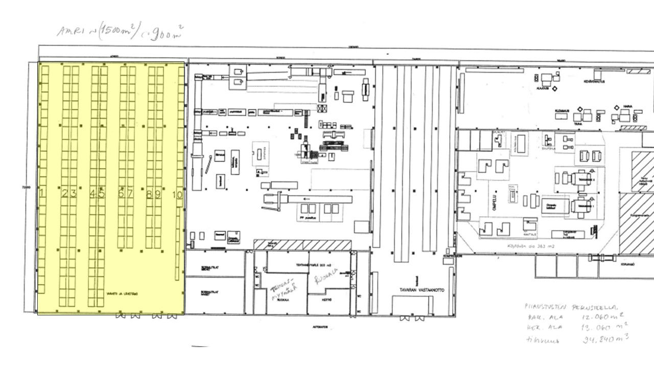
Juuri vpautunut 3000 m2 korkea noin 10 metriä korkea lämmin kuiva erittäin hallitila, jossa 4 lastaustaskua. Tilassa on myös hyllytetty valmiiksi. Tila on yhdistettävissä 2000 m2 ja 1000 m2 matalampaan (5,5 m) varastotilaan. Kiinteistössä on vuokrattavissa toimistotilaa toisesta kerroksesta. Kiinteistössä on sosiaalitilat ja yhteiskäyttöinen keittiö. Pihalla on erittäin paljon pysäköintitilaa.
Lisätietoja ja esitellyt kohteesta Kari Mäkinen 0400 891 057/ 020 7290 710. Lisää kohteita www.premises.fi
Kohteella ei ole lain edellyttämää energiatodistusta tai energialuokka ei tiedossa.Kerros: 1
CRE PREMISES
Puh. Näytä puhelinnumero 020 7290 710
Vantaankoskentie 14
01670 VANTAA
