Vuokrataan tuotantotilat - Hyvinkää
Lukkokatu 2, Veikkari, 05840 Hyvinkää #10828277
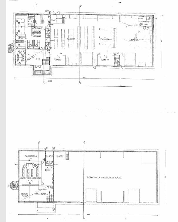
Nyt vuokrattavana tilava toimisto-, tuotanto- ja varastotila, yhteensä 1040 m².
Hallissa 2 kpl lattiakaivoja, 2 kpl nosto-ovia 3,6 x 4,5 m ja 2 kpl pylväskiertonostimia (1600 kg, 1600 kg ja 2050 kg).
Ala- ja yläkerrassa avokonttorit.
Kaukolämpö. Koneellinen ilmanvaihto ja LTO. Oma tontti.
Helsinki-Tampere moottoritielle n. 3 min ajomatka.
Lisätiedot ja esittelyt:
Jussi Hannukkala
LKV, yrittäjä
0400 363025
jussi.hannukkala@johacon.fi
Osoite
Lukkokatu 2, 05840 Hyvinkää
Tilatyyppi
Tuotantotilaa
1040 m2
Pohjapiirros
Vuokra
7500 € / kk
Muuta
Erittäin hyvin pidetty ja huollettu.
Vapautuu
Kysy
Ota yhteyttä

Johacon LKV
Riihimäenkatu 2
05900 HYVINKÄÄ
Näytä puhelinnumero
0400 353 920
Hannukkala Jussi
Yrittäjä, LKV
Näytä puhelinnumero
0400363025
Pyydä lisätietoa