Vuokrataan toimistotilat - Espoo
Quartetto Business Park - Cello, Linnoitustie 2b, Leppävaara, 02600 Espoo #10828228
Moderni 335 m² toimisto viihtyisässä Quartetto Business Park Cellossa, Leppävaarassa
Osoite
Linnoitustie 2b, 02600 Espoo
Tilatyyppi
Toimistotilaa
335 m2
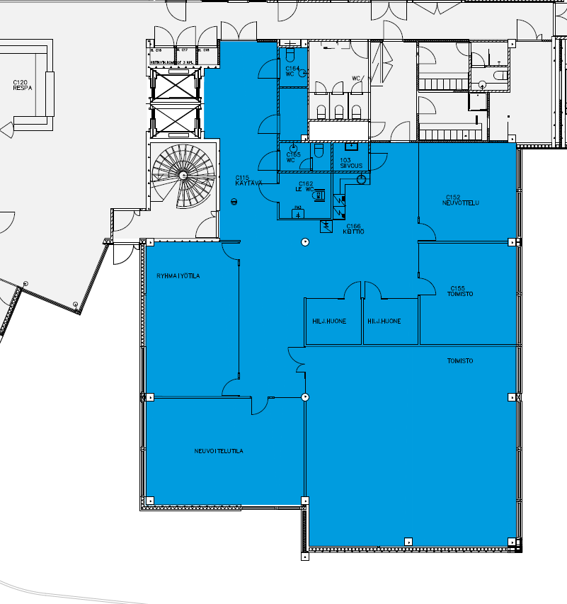
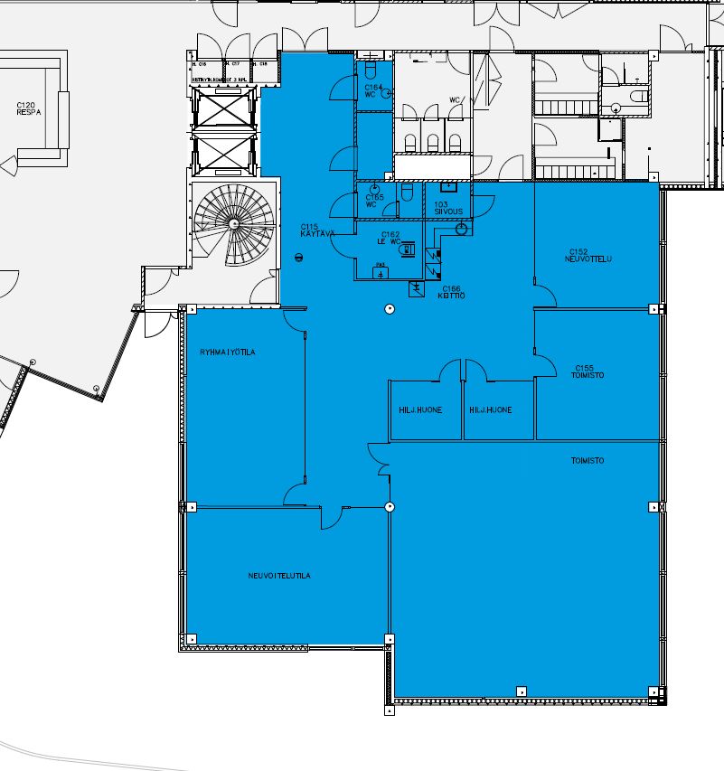
Pohjapiirros
Kiinteistö
Moderni avotoimisto Leppävaarassa kahdella neuvottelutilalla, keittiöllä, kahdella Teams-huoneella ja ryhmätyötiloilla. Tilassa myös avotilaa. Tilat muokattavissa vuokralaisen toiveiden mukaisesti. Vuokrattavia sauna- ja neuvotteluhuoneita saatavilla business parkissa.
Quartettossa on kolme lounasravintolaa, joista löydät vaihtelua työpäiviin. Kiinteistössä aulapalvelu ja hyvät suihkutilat työmatkaliikkujille.
Kiinteistö on saavuttanut ympäristösertifikaatin Breeam In-Use Very Good.
Saavu helposti autolla tai raideliikenteellä.
Quartettossa on kolme lounasravintolaa, joista löydät vaihtelua työpäiviin. Kiinteistössä aulapalvelu ja hyvät suihkutilat työmatkaliikkujille.
Kiinteistö on saavuttanut ympäristösertifikaatin Breeam In-Use Very Good.
Saavu helposti autolla tai raideliikenteellä.
Kulkuyhteydet
Bussipysäkki alle 100 m, Juna-asema 200 m, Lentoasema 14,3 km
Vapautuu
Heti
Kerros
1 / 5
Energiatehokkuusluokka
Ei lain edellyttämää energiatodistusta
Katutasossa
Näkyvällä paikalla
Hissi
Ota yhteyttä
ScanReal Oy LKV
Opus Business Park
Hitsaajankatu 24
00810 Helsinki
info@scanreal.fi
Puh:
Näytä puhelinnumero
020 730 8830
Sopivat toimitilat yhdellä otolla!
Kartoitamme toimitilatarpeesi ja etsimme yrityksellesi parhaiten sopivat vapaat toimitilat. Koska vuokranantajat maksavat palvelumme, on tämä yrityksellesi veloituksetonta.
OTA YHTEYTTÄ - SOVI NÄYTTÖ!
Kaikki kohteemme eivät ole netissä, kerro tilatarpeesi niin kartoitamme vaihtoehdot.
Palvelumme on tilanhakijalle ilmainen
Pyydä lisätietoa
