Vuokrataan liiketilat - Helsinki
Simonkatu 9, Kamppi, 00100 Helsinki #10828157
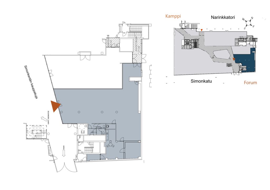
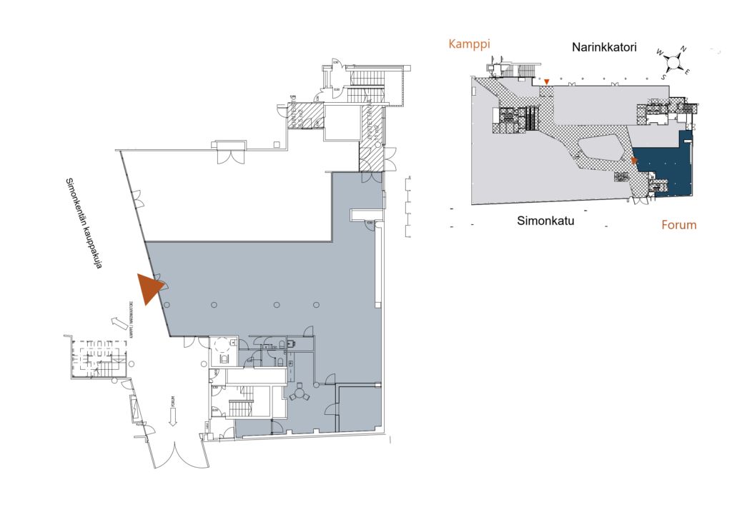
Simonkentän Kauppakuja - Liiketila 425 m² (266 m² + 152 m²)
Osoite
Simonkatu 9, 00100 Helsinki
Tilatyyppi
Liiketilaa
152 - 425 m2
Pohjapiirros
Kiinteistö
Erikokoisia liiketiloja Forumin ja Kampin kauppakujalla
Tervetuloa tutustumaan vilkkaiden Forumin ja Kampin kauppakeskusten yhdistävän Simonkentän kauppakujan liiketiloihin! Tarjolla on liiketila, joka tarjoaa erinomaiset puitteet monenlaisille liiketoiminnoille. Tila on mahdollista jakaa kahdelle käyttäjälle esimerkiksi: n. 266 m² ja 152 m² tiloihin.
Nämä tilat soveltuvat erityisesti palveluliiketoimintaan, jotka hyötyvät keskeisestä sijainnista ja vilkkaasta asiakasvirrasta. Iso kokonaisuus sopii myös alvittomaan liiketoimintaan, kuten vaikkapa lääkäriasemaksi. Tilat ovat esteettömiä: ei kynnyksiä, ei portaita.
Huomioithan, että tilojen tekniset ominaisuudet eivät salli ruoanvalmistusta.
Katso pohjakuvat eri tilavaihtoehdoista ohessa ja tule tutustumaan!
Simonkentän Kauppakuja - keskellä Helsinkiä
Tervetuloa tutustumaan Helsingin ydinkeskustan vilkkaimpiin yhdyskäytäviin kuuluvaan kauppakujaan, joka tarjoaa uudistettuja ja raikkaita liiketiloja huippusijainnilla Kampissa. Simonkentän Hotellikiinteistö saavutti elokuussa 2024 BREEAM Very Good -tason sertifikaatin osoituksena vastuullisesta kiinteistön ylläpitämisestä ja johtamisesta!
Vuonna 2000 rakennetun hotellikiinteistön katutasoon luotu dynaaminen liiketilojen kokonaisuus sijaitsee keskellä vilkkainta Helsinkiä, Kampin ja Forumin kauppakeskusten välissä. Simonkentän Kauppakujaksi nimetty liiketilojen konsepti tarjoaa paikan nähdä ja tulla nähdyksi kaikille ydinkeskustassa asioiville ohikulkijoille, työmatkalaisille, kiinteistön pääkäyttäjänä toimivan hotellin asukkaille sekä hyvästä ruoasta, juomasta ja viihteestä kiinnostuneille.
Palvelut - Hemmottelua, herkuttelua ja viihdettä
Simonkentän kauppakuja yhdistää ostosten tekemisen ja elämykset saman katon alle. Pohjakerroksessa sijaitseva Kampin Keilahalli ja Biljardi Bar houkuttelee paikalle runsaasti aktiivisia asiakkaita. Tunnelmallinen ravintola Plaza vetää puoleensa niin lounastajia kuin viinien, erikoisoluiden ja hyvän ruoan ystäviä iltaisin ja viikonloppuisin. Ravintola on avoinna aamupäivästä aina yön pikkutunneille asti.
Kiinteistön päävuokralaisena toimii tunnettu ja maineikas hotellitoimija. Hotelli tarjoaa laadukkaat palvelut ja lyhyen matkan yöunille ostosten lomasta ja keskustan riennoista niin viikonloppuvierailijoille kuin lähilomalaisille.
Sijainti siellä, missä tapahtuu
Simonkentän kauppakuja on erinomaisesti saavutettavissa niin metrolla kuin bussillakin. Myös junayhteys löytyy muutaman sadan metrin päässä Rautatientorilla. Kampin metroasemaa ja bussiliikenneterminaalia käyttää valtava joukko työmatkailijoita, joista kymmeniä tuhansia kulkee kauppakujan poikki viikoittain.
Kiinteistön lähettyvillä on Helsingin suosituimpia nähtävyyksiä kuten taidemuseo Amos Rex, Kampin kappeli, nykytaiteen museo Kiasma ja Finlandia-talo. Kiinteistön edustalla sijaitsevalla Narinkkatorilla on vahva historia kauppapaikkana ja se tunnetaan suuren yleisön tapahtuma- ja markkinapaikkana.
Vastuullisuus
Simonkentän Hotellikiinteistö saavutti elokuussa 2024 BREEAM Very Good -tason sertifikaatin, joka on osoitus vastuullisesta kiinteistön ylläpitämisestä ja johtamisesta. Tämä sertifikaatti korostaa kiinteistön sitoutumista ympäristöystävällisiin käytäntöihin ja kestävään kehitykseen, mikä tekee siitä houkuttelevan valinnan niin yrityksille kuin asiakkaillekin.
Ota yhteyttä
Kiinnostuitko? Ota yhteyttä ja tule tutustumaan tiloihin!
Toimitilavälityspalvelumme on tilanhakijalle maksuton.
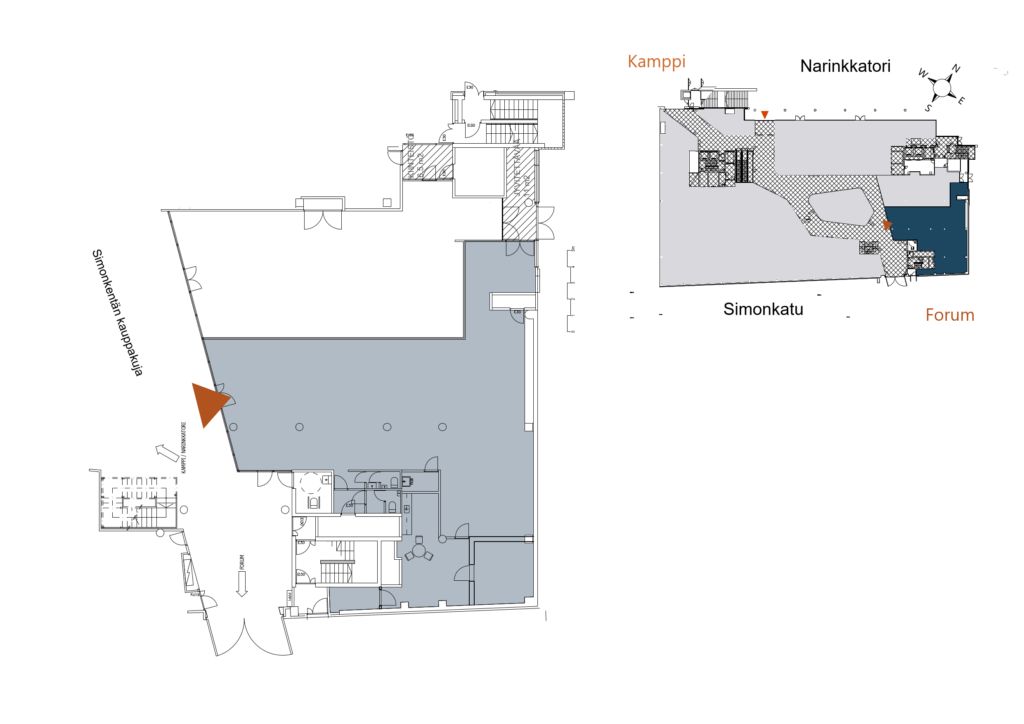
Tervetuloa tutustumaan vilkkaiden Forumin ja Kampin kauppakeskusten yhdistävän Simonkentän kauppakujan liiketiloihin! Tarjolla on liiketila, joka tarjoaa erinomaiset puitteet monenlaisille liiketoiminnoille. Tila on mahdollista jakaa kahdelle käyttäjälle esimerkiksi: n. 266 m² ja 152 m² tiloihin.
Nämä tilat soveltuvat erityisesti palveluliiketoimintaan, jotka hyötyvät keskeisestä sijainnista ja vilkkaasta asiakasvirrasta. Iso kokonaisuus sopii myös alvittomaan liiketoimintaan, kuten vaikkapa lääkäriasemaksi. Tilat ovat esteettömiä: ei kynnyksiä, ei portaita.
Huomioithan, että tilojen tekniset ominaisuudet eivät salli ruoanvalmistusta.
Katso pohjakuvat eri tilavaihtoehdoista ohessa ja tule tutustumaan!
Simonkentän Kauppakuja - keskellä Helsinkiä
Tervetuloa tutustumaan Helsingin ydinkeskustan vilkkaimpiin yhdyskäytäviin kuuluvaan kauppakujaan, joka tarjoaa uudistettuja ja raikkaita liiketiloja huippusijainnilla Kampissa. Simonkentän Hotellikiinteistö saavutti elokuussa 2024 BREEAM Very Good -tason sertifikaatin osoituksena vastuullisesta kiinteistön ylläpitämisestä ja johtamisesta!
Vuonna 2000 rakennetun hotellikiinteistön katutasoon luotu dynaaminen liiketilojen kokonaisuus sijaitsee keskellä vilkkainta Helsinkiä, Kampin ja Forumin kauppakeskusten välissä. Simonkentän Kauppakujaksi nimetty liiketilojen konsepti tarjoaa paikan nähdä ja tulla nähdyksi kaikille ydinkeskustassa asioiville ohikulkijoille, työmatkalaisille, kiinteistön pääkäyttäjänä toimivan hotellin asukkaille sekä hyvästä ruoasta, juomasta ja viihteestä kiinnostuneille.
Palvelut - Hemmottelua, herkuttelua ja viihdettä
Simonkentän kauppakuja yhdistää ostosten tekemisen ja elämykset saman katon alle. Pohjakerroksessa sijaitseva Kampin Keilahalli ja Biljardi Bar houkuttelee paikalle runsaasti aktiivisia asiakkaita. Tunnelmallinen ravintola Plaza vetää puoleensa niin lounastajia kuin viinien, erikoisoluiden ja hyvän ruoan ystäviä iltaisin ja viikonloppuisin. Ravintola on avoinna aamupäivästä aina yön pikkutunneille asti.
Kiinteistön päävuokralaisena toimii tunnettu ja maineikas hotellitoimija. Hotelli tarjoaa laadukkaat palvelut ja lyhyen matkan yöunille ostosten lomasta ja keskustan riennoista niin viikonloppuvierailijoille kuin lähilomalaisille.
Sijainti siellä, missä tapahtuu
Simonkentän kauppakuja on erinomaisesti saavutettavissa niin metrolla kuin bussillakin. Myös junayhteys löytyy muutaman sadan metrin päässä Rautatientorilla. Kampin metroasemaa ja bussiliikenneterminaalia käyttää valtava joukko työmatkailijoita, joista kymmeniä tuhansia kulkee kauppakujan poikki viikoittain.
Kiinteistön lähettyvillä on Helsingin suosituimpia nähtävyyksiä kuten taidemuseo Amos Rex, Kampin kappeli, nykytaiteen museo Kiasma ja Finlandia-talo. Kiinteistön edustalla sijaitsevalla Narinkkatorilla on vahva historia kauppapaikkana ja se tunnetaan suuren yleisön tapahtuma- ja markkinapaikkana.
Vastuullisuus
Simonkentän Hotellikiinteistö saavutti elokuussa 2024 BREEAM Very Good -tason sertifikaatin, joka on osoitus vastuullisesta kiinteistön ylläpitämisestä ja johtamisesta. Tämä sertifikaatti korostaa kiinteistön sitoutumista ympäristöystävällisiin käytäntöihin ja kestävään kehitykseen, mikä tekee siitä houkuttelevan valinnan niin yrityksille kuin asiakkaillekin.
Ota yhteyttä
Kiinnostuitko? Ota yhteyttä ja tule tutustumaan tiloihin!
Toimitilavälityspalvelumme on tilanhakijalle maksuton.
Vapautuu
Kysy
Kerros
1
Ota yhteyttä
Logistila Oy
Kylätie 11-13, 00320 HELSINKI
Karoliina Turppo
Näytä puhelinnumero
050 345 3258
Pyydä lisätietoa
