Vuokrataan toimistotilat - Helsinki
Kaisaniemenkatu 1, Keskusta, 00100 Helsinki #10828148
Mikonkatu 13 - Toimisto 237 m²
Osoite
Kaisaniemenkatu 1, 00100 Helsinki
Tilatyyppi
Toimistotilaa
237 m2
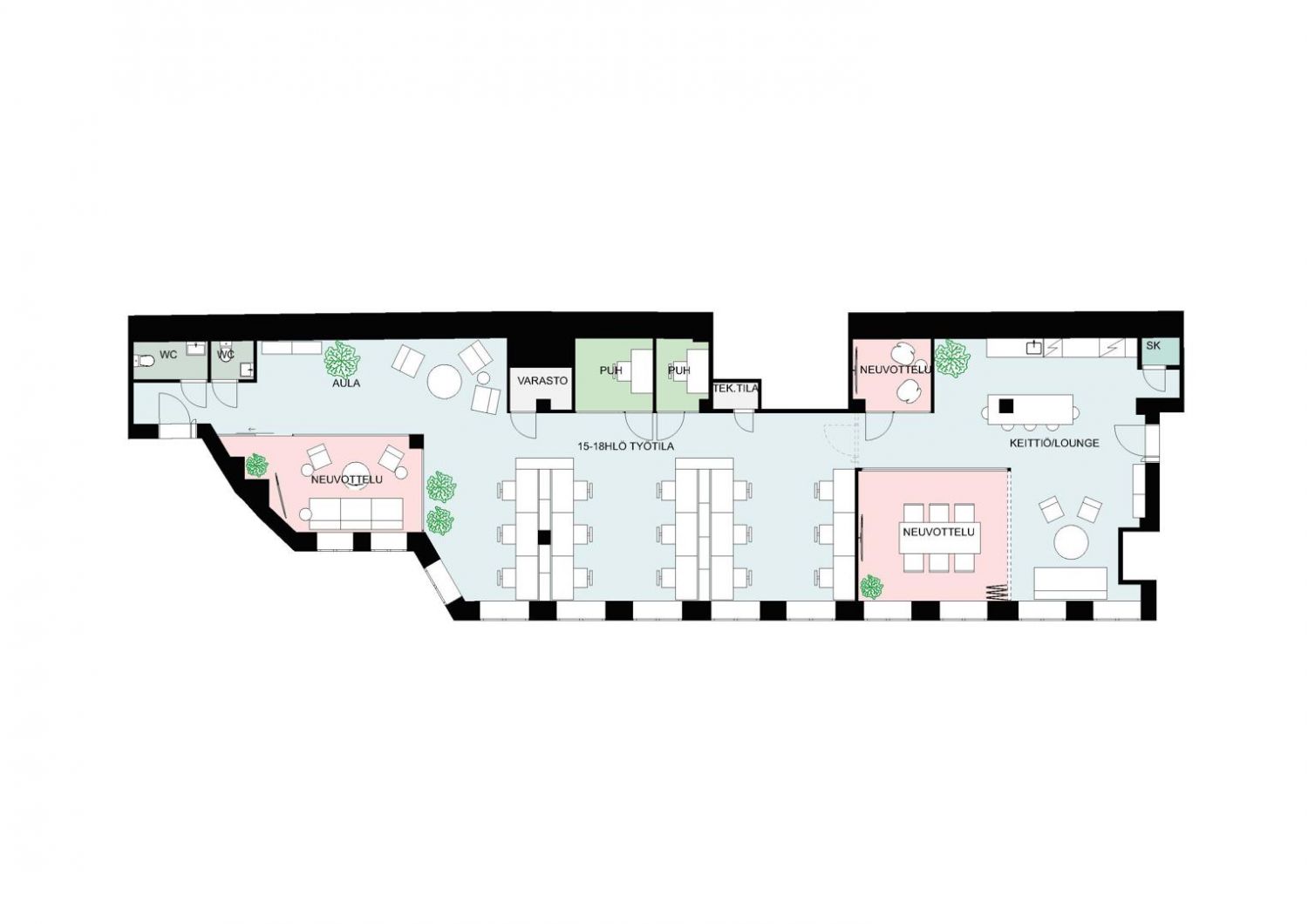
Pohjapiirros
Kiinteistö
Näyttävä toimistotila Helsingin ytimessä
Tervetuloa tutustumaan tähän upeaan toimistotilaan, joka sijaitsee arvokiinteistössä aivan Helsingin sydämessä. Tämä 3. kerroksen toimitila on juuri remontoitu modernein värivaihtoehdoin ja skandinaavisin materiaalein, luoden näyttävän ja viihtyisän avotoimiston. Tilassa on myös muutama erikokoinen neuvottelutila, jotka tarjoavat joustavuutta erilaisiin tarpeisiin.
Toimistoon on kaksi sisäänkäyntiä, ja se sijaitsee rauhallisella sisäpihalla, jonne on helppo pääsy sekä Mikonkadulta että Kaisaniemenkadulta. Tämä tila on ihanteellinen 10-20 hengelle, jotka arvostavat keskeistä sijaintia ja modernia työympäristöä.
Mikonkatu 13 - Toimitilat Helsingin ytimessä
Etsitkö toimitilaa, joka yhdistää arvokkuuden, sijainnin ja joustavuuden? Mikonkatu 13 tarjoaa juuri sitä: Helsingin ydinkeskustassa, vain muutaman askeleen päässä Rautatieasemasta ja Ateneumin vieressä, keskellä kattavimpia palveluja.
Sijainti ja palvelut, jotka tekevät vaikutuksen
Rakennus on yksi Helsingin keskustan tunnetuimmista kiinteistöistä. Sen ympärillä on laaja palvelutarjonta ja erinomaiset liikenneyhteydet kaikkialle pääkaupunkiseudulle. Julkiset kulkuyhteydet, ravintolat, hotellit ja ostosmahdollisuudet ovat aivan käden ulottuvilla – täydellinen paikka yritykselle, joka arvostaa saavutettavuutta ja näkyvyyttä.
Tilat, jotka mukautuvat tarpeisiisi
Kiinteistössä on tehty julkisivun ja yleisten tilojen kunnostustöitä, joissa on kunnioitettu talon henkeä ja arkkitehtuuria. Tilat ovat moderneja ja muunneltavia, joten ne tukevat monenlaisia liiketoiminnan tarpeita.
Ota yhteyttä
Kiinnostuitko? Ota yhteyttä ja tule tutustumaan tiloihin!
Toimitilavälityspalvelumme on tilanhakijalle maksuton.
Tervetuloa tutustumaan tähän upeaan toimistotilaan, joka sijaitsee arvokiinteistössä aivan Helsingin sydämessä. Tämä 3. kerroksen toimitila on juuri remontoitu modernein värivaihtoehdoin ja skandinaavisin materiaalein, luoden näyttävän ja viihtyisän avotoimiston. Tilassa on myös muutama erikokoinen neuvottelutila, jotka tarjoavat joustavuutta erilaisiin tarpeisiin.
Toimistoon on kaksi sisäänkäyntiä, ja se sijaitsee rauhallisella sisäpihalla, jonne on helppo pääsy sekä Mikonkadulta että Kaisaniemenkadulta. Tämä tila on ihanteellinen 10-20 hengelle, jotka arvostavat keskeistä sijaintia ja modernia työympäristöä.
Mikonkatu 13 - Toimitilat Helsingin ytimessä
Etsitkö toimitilaa, joka yhdistää arvokkuuden, sijainnin ja joustavuuden? Mikonkatu 13 tarjoaa juuri sitä: Helsingin ydinkeskustassa, vain muutaman askeleen päässä Rautatieasemasta ja Ateneumin vieressä, keskellä kattavimpia palveluja.
Sijainti ja palvelut, jotka tekevät vaikutuksen
Rakennus on yksi Helsingin keskustan tunnetuimmista kiinteistöistä. Sen ympärillä on laaja palvelutarjonta ja erinomaiset liikenneyhteydet kaikkialle pääkaupunkiseudulle. Julkiset kulkuyhteydet, ravintolat, hotellit ja ostosmahdollisuudet ovat aivan käden ulottuvilla – täydellinen paikka yritykselle, joka arvostaa saavutettavuutta ja näkyvyyttä.
Tilat, jotka mukautuvat tarpeisiisi
Kiinteistössä on tehty julkisivun ja yleisten tilojen kunnostustöitä, joissa on kunnioitettu talon henkeä ja arkkitehtuuria. Tilat ovat moderneja ja muunneltavia, joten ne tukevat monenlaisia liiketoiminnan tarpeita.
Ota yhteyttä
Kiinnostuitko? Ota yhteyttä ja tule tutustumaan tiloihin!
Toimitilavälityspalvelumme on tilanhakijalle maksuton.
Vapautuu
Kysy
Kerros
3
Ota yhteyttä
Logistila Oy
Kylätie 11-13, 00320 HELSINKI
Karoliina Turppo
Näytä puhelinnumero
050 345 3258
Pyydä lisätietoa
