Vuokrataan toimistotilat - Helsinki
Kaisaniemenkatu 1, Keskusta, 00100 Helsinki #10828117
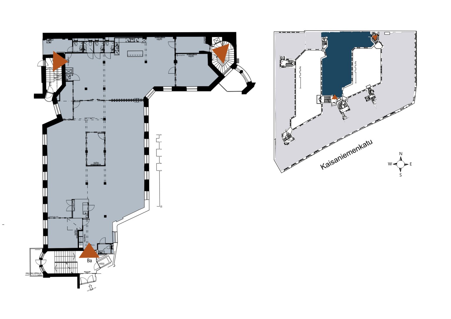
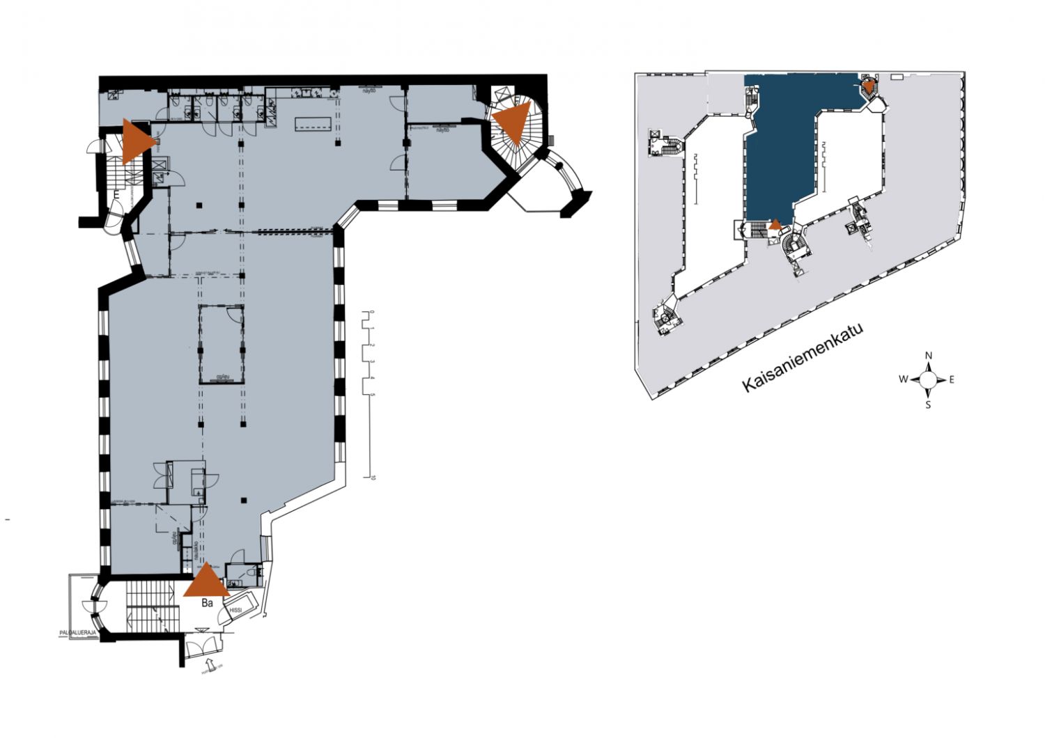
Mikonkatu 13 - Toimisto 408 m²
Osoite
Kaisaniemenkatu 1, 00100 Helsinki
Tilatyyppi
Toimistotilaa
408 m2
Pohjapiirros
Kiinteistö
Monipuoliset toimitilat 9-35 hengelle
Tervetuloa tutustumaan tähän ainutlaatuiseen toimistotilaan, joka yhdistää historian ja nykyaikaisuuden. Tämä tila tarjoaa täydelliset puitteet kasvavalle yritykselle, luoden inspiroivan ja toimivan työympäristön. Tilassa on runsaasti tilaa 9-35 hengelle, ja se koostuu avotilasta ja huoneista, tarjoten monipuoliset mahdollisuudet erilaisiin työskentelytapoihin. Modernit mukavuudet ja historiallinen charmi tekevät tästä toimistosta erinomaisen valinnan yrityksellesi.
Mikonkatu 13 - Toimitilat Helsingin ytimessä
Etsitkö toimitilaa, joka yhdistää arvokkuuden, sijainnin ja joustavuuden? Mikonkatu 13 tarjoaa juuri sitä: Helsingin ydinkeskustassa, vain muutaman askeleen päässä Rautatieasemasta ja Ateneumin vieressä, keskellä kattavimpia palveluja.
Sijainti ja palvelut, jotka tekevät vaikutuksen
Rakennus on yksi Helsingin keskustan tunnetuimmista kiinteistöistä. Sen ympärillä on laaja palvelutarjonta ja erinomaiset liikenneyhteydet kaikkialle pääkaupunkiseudulle. Julkiset kulkuyhteydet, ravintolat, hotellit ja ostosmahdollisuudet ovat aivan käden ulottuvilla – täydellinen paikka yritykselle, joka arvostaa saavutettavuutta ja näkyvyyttä.
Tilat, jotka mukautuvat tarpeisiisi
Kiinteistössä on tehty julkisivun ja yleisten tilojen kunnostustöitä, joissa on kunnioitettu talon henkeä ja arkkitehtuuria. Tilat ovat moderneja ja muunneltavia, joten ne tukevat monenlaisia liiketoiminnan tarpeita.
Ota yhteyttä
Kiinnostuitko? Ota yhteyttä ja tule tutustumaan tiloihin!
Toimitilavälityspalvelumme on tilanhakijalle maksuton.
Tervetuloa tutustumaan tähän ainutlaatuiseen toimistotilaan, joka yhdistää historian ja nykyaikaisuuden. Tämä tila tarjoaa täydelliset puitteet kasvavalle yritykselle, luoden inspiroivan ja toimivan työympäristön. Tilassa on runsaasti tilaa 9-35 hengelle, ja se koostuu avotilasta ja huoneista, tarjoten monipuoliset mahdollisuudet erilaisiin työskentelytapoihin. Modernit mukavuudet ja historiallinen charmi tekevät tästä toimistosta erinomaisen valinnan yrityksellesi.
Mikonkatu 13 - Toimitilat Helsingin ytimessä
Etsitkö toimitilaa, joka yhdistää arvokkuuden, sijainnin ja joustavuuden? Mikonkatu 13 tarjoaa juuri sitä: Helsingin ydinkeskustassa, vain muutaman askeleen päässä Rautatieasemasta ja Ateneumin vieressä, keskellä kattavimpia palveluja.
Sijainti ja palvelut, jotka tekevät vaikutuksen
Rakennus on yksi Helsingin keskustan tunnetuimmista kiinteistöistä. Sen ympärillä on laaja palvelutarjonta ja erinomaiset liikenneyhteydet kaikkialle pääkaupunkiseudulle. Julkiset kulkuyhteydet, ravintolat, hotellit ja ostosmahdollisuudet ovat aivan käden ulottuvilla – täydellinen paikka yritykselle, joka arvostaa saavutettavuutta ja näkyvyyttä.
Tilat, jotka mukautuvat tarpeisiisi
Kiinteistössä on tehty julkisivun ja yleisten tilojen kunnostustöitä, joissa on kunnioitettu talon henkeä ja arkkitehtuuria. Tilat ovat moderneja ja muunneltavia, joten ne tukevat monenlaisia liiketoiminnan tarpeita.
Ota yhteyttä
Kiinnostuitko? Ota yhteyttä ja tule tutustumaan tiloihin!
Toimitilavälityspalvelumme on tilanhakijalle maksuton.
Vapautuu
Kysy
Kerros
3
Ota yhteyttä
Logistila Oy
Kylätie 11-13, 00320 HELSINKI
Karoliina Turppo
Näytä puhelinnumero
050 345 3258
Pyydä lisätietoa
