Vuokrataan toimistotilat - Helsinki
Kaisaniemenkatu 1, Keskusta, 00100 Helsinki #10828116
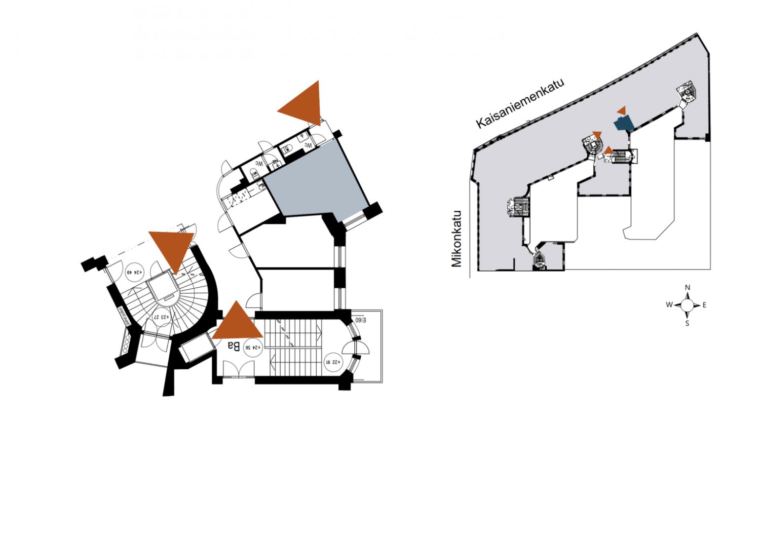
Mikonkatu 13 - Toimisto 20,7 m²
Osoite
Kaisaniemenkatu 1, 00100 Helsinki
Tilatyyppi
Toimistotilaa
21 m2
Pohjapiirros
Kiinteistö
Pieni ja rauhallinen toimisto Ba-portaan ylimmässä kerroksessa
Tervetuloa tutustumaan tähän pieneen toimistotilaan, joka sijaitsee rauhallisella yhteiskäytävällä Ba-portaan ylimmässä kerroksessa. Toimistoon on suora sisäänkäynti Kaisaniemenkadulta, ja ikkunat avautuvat sisäpihan suuntaan, tarjoten rauhallisen ja viihtyisän työympäristön. Tämä tila sopii niin 1-2 hengen toimistoksi kuin palveluliiketoimintaan, kuten hierojalle tai fysioterapeutille.
Mikonkatu 13 - Toimitilat Helsingin ytimessä
Etsitkö toimitilaa, joka yhdistää arvokkuuden, sijainnin ja joustavuuden? Mikonkatu 13 tarjoaa juuri sitä: Helsingin ydinkeskustassa, vain muutaman askeleen päässä Rautatieasemasta ja Ateneumin vieressä, keskellä kattavimpia palveluja.
Sijainti ja palvelut, jotka tekevät vaikutuksen
Rakennus on yksi Helsingin keskustan tunnetuimmista kiinteistöistä. Sen ympärillä on laaja palvelutarjonta ja erinomaiset liikenneyhteydet kaikkialle pääkaupunkiseudulle. Julkiset kulkuyhteydet, ravintolat, hotellit ja ostosmahdollisuudet ovat aivan käden ulottuvilla – täydellinen paikka yritykselle, joka arvostaa saavutettavuutta ja näkyvyyttä.
Tilat, jotka mukautuvat tarpeisiisi
Kiinteistössä on tehty julkisivun ja yleisten tilojen kunnostustöitä, joissa on kunnioitettu talon henkeä ja arkkitehtuuria. Tilat ovat moderneja ja muunneltavia, joten ne tukevat monenlaisia liiketoiminnan tarpeita.
Ota yhteyttä
Kiinnostuitko? Ota yhteyttä ja tule tutustumaan tiloihin!
Toimitilavälityspalvelumme on tilanhakijalle maksuton.
Tervetuloa tutustumaan tähän pieneen toimistotilaan, joka sijaitsee rauhallisella yhteiskäytävällä Ba-portaan ylimmässä kerroksessa. Toimistoon on suora sisäänkäynti Kaisaniemenkadulta, ja ikkunat avautuvat sisäpihan suuntaan, tarjoten rauhallisen ja viihtyisän työympäristön. Tämä tila sopii niin 1-2 hengen toimistoksi kuin palveluliiketoimintaan, kuten hierojalle tai fysioterapeutille.
Mikonkatu 13 - Toimitilat Helsingin ytimessä
Etsitkö toimitilaa, joka yhdistää arvokkuuden, sijainnin ja joustavuuden? Mikonkatu 13 tarjoaa juuri sitä: Helsingin ydinkeskustassa, vain muutaman askeleen päässä Rautatieasemasta ja Ateneumin vieressä, keskellä kattavimpia palveluja.
Sijainti ja palvelut, jotka tekevät vaikutuksen
Rakennus on yksi Helsingin keskustan tunnetuimmista kiinteistöistä. Sen ympärillä on laaja palvelutarjonta ja erinomaiset liikenneyhteydet kaikkialle pääkaupunkiseudulle. Julkiset kulkuyhteydet, ravintolat, hotellit ja ostosmahdollisuudet ovat aivan käden ulottuvilla – täydellinen paikka yritykselle, joka arvostaa saavutettavuutta ja näkyvyyttä.
Tilat, jotka mukautuvat tarpeisiisi
Kiinteistössä on tehty julkisivun ja yleisten tilojen kunnostustöitä, joissa on kunnioitettu talon henkeä ja arkkitehtuuria. Tilat ovat moderneja ja muunneltavia, joten ne tukevat monenlaisia liiketoiminnan tarpeita.
Ota yhteyttä
Kiinnostuitko? Ota yhteyttä ja tule tutustumaan tiloihin!
Toimitilavälityspalvelumme on tilanhakijalle maksuton.
Vapautuu
Kysy
Kerros
7
Ota yhteyttä
Logistila Oy
Kylätie 11-13, 00320 HELSINKI
Karoliina Turppo
Näytä puhelinnumero
050 345 3258
Pyydä lisätietoa
