Vuokrataan toimistotilat - Helsinki
Runeberginkatu 5, Kamppi, 00100 Helsinki #10828109
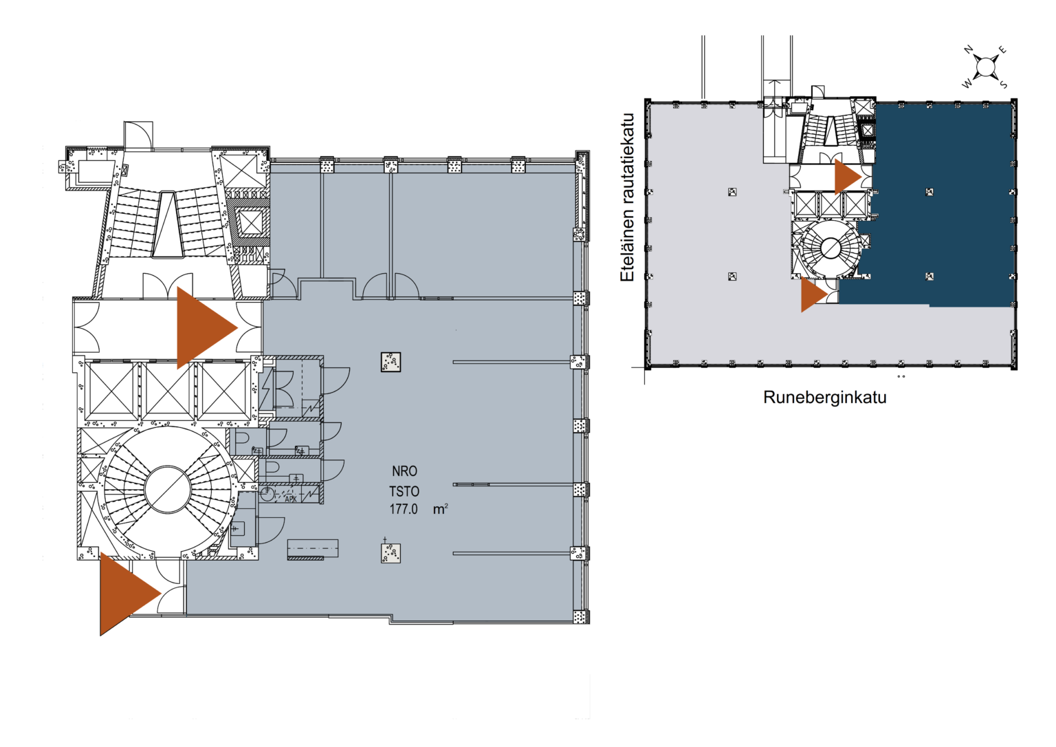
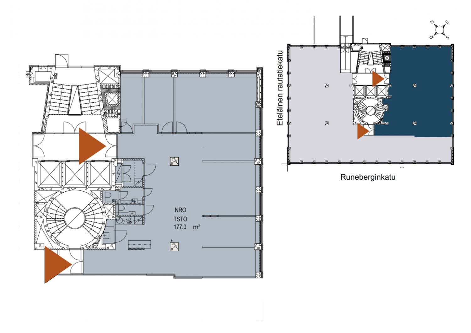
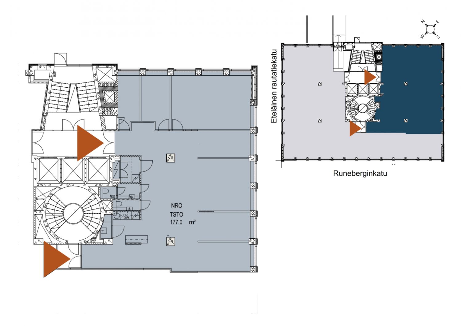
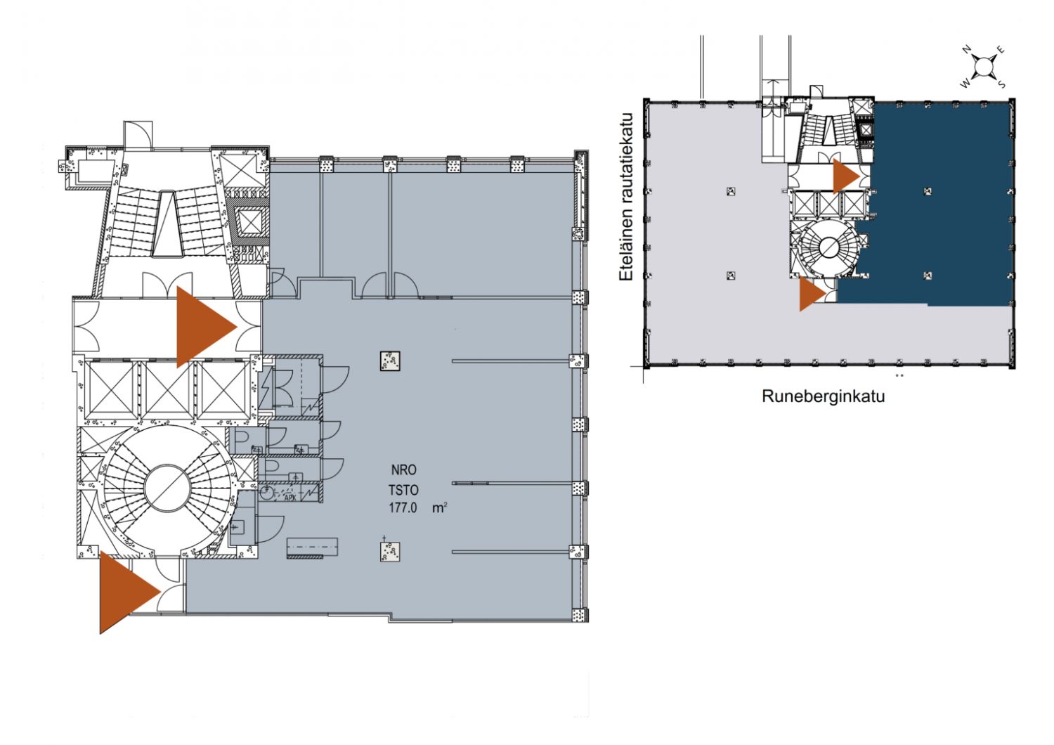
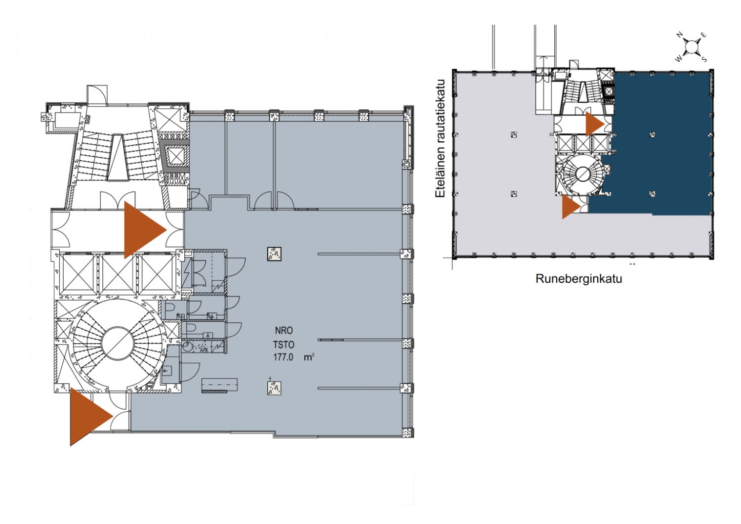
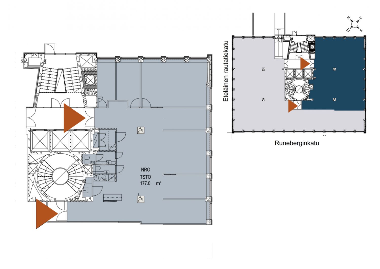
THE MIDDLE (Runeberginkatu 5) - Toimisto 177 m²
Osoite
Runeberginkatu 5, 00100 Helsinki
Tilatyyppi
Toimistotilaa
177 m2
Pohjapiirros
Kiinteistö
Muuttovalmis toimisto keskellä Kamppia
Tervetuloa tutustumaan tähän upeaan toimistotilaan, joka sijaitsee keskeisellä paikalla Kampissa. Tila koostuu avotilasta ja huoneista, tarjoten monipuoliset mahdollisuudet yrityksesi tarpeisiin.
Runeberginkatu 5 - Näköalapaikka keskellä Helsinkiä
Tervetuloa Autotalokorttelin Runskivuori-toimistotaloon, joka sijaitsee näyttävällä paikalla Kampissa. Tämä kiinteistö tarjoaa erinomaiset puitteet yrityksellesi ja modernin työympäristön Helsingin sydämessä. Se on täydellinen valinta yrityksille, jotka arvostavat modernia ja muuntojoustavaa työympäristöä.
Kiinteistössä on tehty julkisivun ja yleisten tilojen kunnostustöitä, joissa on kunnioitettu talon alkuperäistä henkeä ja arkkitehtuuria. Jäähdytys on toteutettu puhallinkonvektoreilla, mikä takaa miellyttävän työskentelylämpötilan ympäri vuoden. Tämä yhdistelmä modernia mukavuutta ja historiallista charmia tekee Runskivuori-toimistotalosta ainutlaatuisen työympäristön.
Keskeinen sijainti ja hyvät yhteydet
Toimistotalo sijaitsee keskeisellä paikalla, mikä takaa erinomaiset julkiset liikenneyhteydet metrolla, raitiovaunulla ja busseilla. Yksityisautoille on maanalaista pysäköintitilaa korttelin omassa autohallissa, jonne on suora hissiyhteys toimistokerroksista. Pyöräilijöille on tarjolla pyöräparkit ja suihkutilat, jotka lisäävät työntekijöiden mukavuutta.
Palvelut
Katutasossa on houkuttelevia liiketiloja, kun taas ylemmissä kerroksissa on valoisaa ja avaraa toimistotilaa sekä huippuluokan neuvottelutiloja. Kiinteistö on valmistunut vuonna 1962 ja käynyt läpi perusteellisen korjaushankkeen, jossa tilat on avarrettu ja muokattu avotiloiksi soveltuviksi. Kiinteistö on esteetön ja sopii liikuntarajoitteisille, tarjoten kaikille työntekijöille ja vierailijoille esteettömän pääsyn ja mukavuuden.
Fredrikinkatu 48 on täydellinen valinta yrityksille, jotka haluavat yhdistää modernin työympäristön ja keskeisen sijainnin.
Ota yhteyttä
Kiinnostuitko? Ota yhteyttä ja tule tutustumaan tiloihin!
Toimitilavälityspalvelumme on tilanhakijalle maksuton.
Tervetuloa tutustumaan tähän upeaan toimistotilaan, joka sijaitsee keskeisellä paikalla Kampissa. Tila koostuu avotilasta ja huoneista, tarjoten monipuoliset mahdollisuudet yrityksesi tarpeisiin.
Runeberginkatu 5 - Näköalapaikka keskellä Helsinkiä
Tervetuloa Autotalokorttelin Runskivuori-toimistotaloon, joka sijaitsee näyttävällä paikalla Kampissa. Tämä kiinteistö tarjoaa erinomaiset puitteet yrityksellesi ja modernin työympäristön Helsingin sydämessä. Se on täydellinen valinta yrityksille, jotka arvostavat modernia ja muuntojoustavaa työympäristöä.
Kiinteistössä on tehty julkisivun ja yleisten tilojen kunnostustöitä, joissa on kunnioitettu talon alkuperäistä henkeä ja arkkitehtuuria. Jäähdytys on toteutettu puhallinkonvektoreilla, mikä takaa miellyttävän työskentelylämpötilan ympäri vuoden. Tämä yhdistelmä modernia mukavuutta ja historiallista charmia tekee Runskivuori-toimistotalosta ainutlaatuisen työympäristön.
Keskeinen sijainti ja hyvät yhteydet
Toimistotalo sijaitsee keskeisellä paikalla, mikä takaa erinomaiset julkiset liikenneyhteydet metrolla, raitiovaunulla ja busseilla. Yksityisautoille on maanalaista pysäköintitilaa korttelin omassa autohallissa, jonne on suora hissiyhteys toimistokerroksista. Pyöräilijöille on tarjolla pyöräparkit ja suihkutilat, jotka lisäävät työntekijöiden mukavuutta.
Palvelut
Katutasossa on houkuttelevia liiketiloja, kun taas ylemmissä kerroksissa on valoisaa ja avaraa toimistotilaa sekä huippuluokan neuvottelutiloja. Kiinteistö on valmistunut vuonna 1962 ja käynyt läpi perusteellisen korjaushankkeen, jossa tilat on avarrettu ja muokattu avotiloiksi soveltuviksi. Kiinteistö on esteetön ja sopii liikuntarajoitteisille, tarjoten kaikille työntekijöille ja vierailijoille esteettömän pääsyn ja mukavuuden.
Fredrikinkatu 48 on täydellinen valinta yrityksille, jotka haluavat yhdistää modernin työympäristön ja keskeisen sijainnin.
Ota yhteyttä
Kiinnostuitko? Ota yhteyttä ja tule tutustumaan tiloihin!
Toimitilavälityspalvelumme on tilanhakijalle maksuton.
Vapautuu
Kysy
Kerros
5
Ota yhteyttä
Logistila Oy
Kylätie 11-13, 00320 HELSINKI
Karoliina Turppo
Näytä puhelinnumero
050 345 3258
Pyydä lisätietoa
