Vuokrataan toimistotilat, liiketilat, tuotantotilat, varastotilat, työtilat, autotalli/-hallitilat - Oulu
Gneissikuja 8 C10, 90620 Oulu #10828063
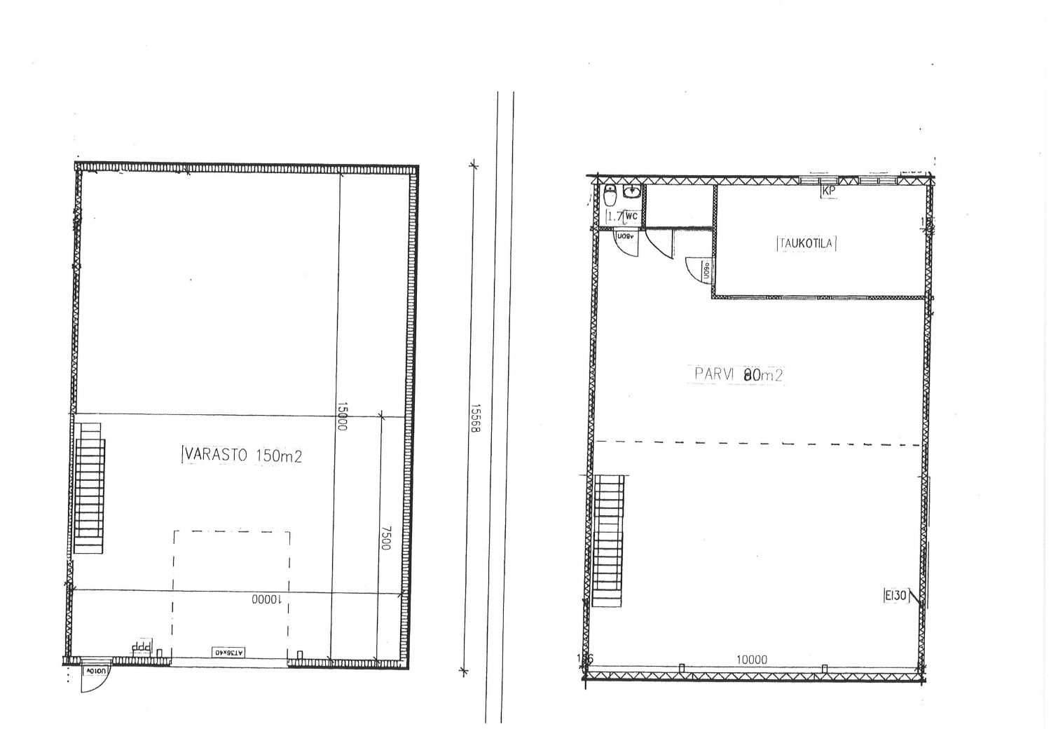
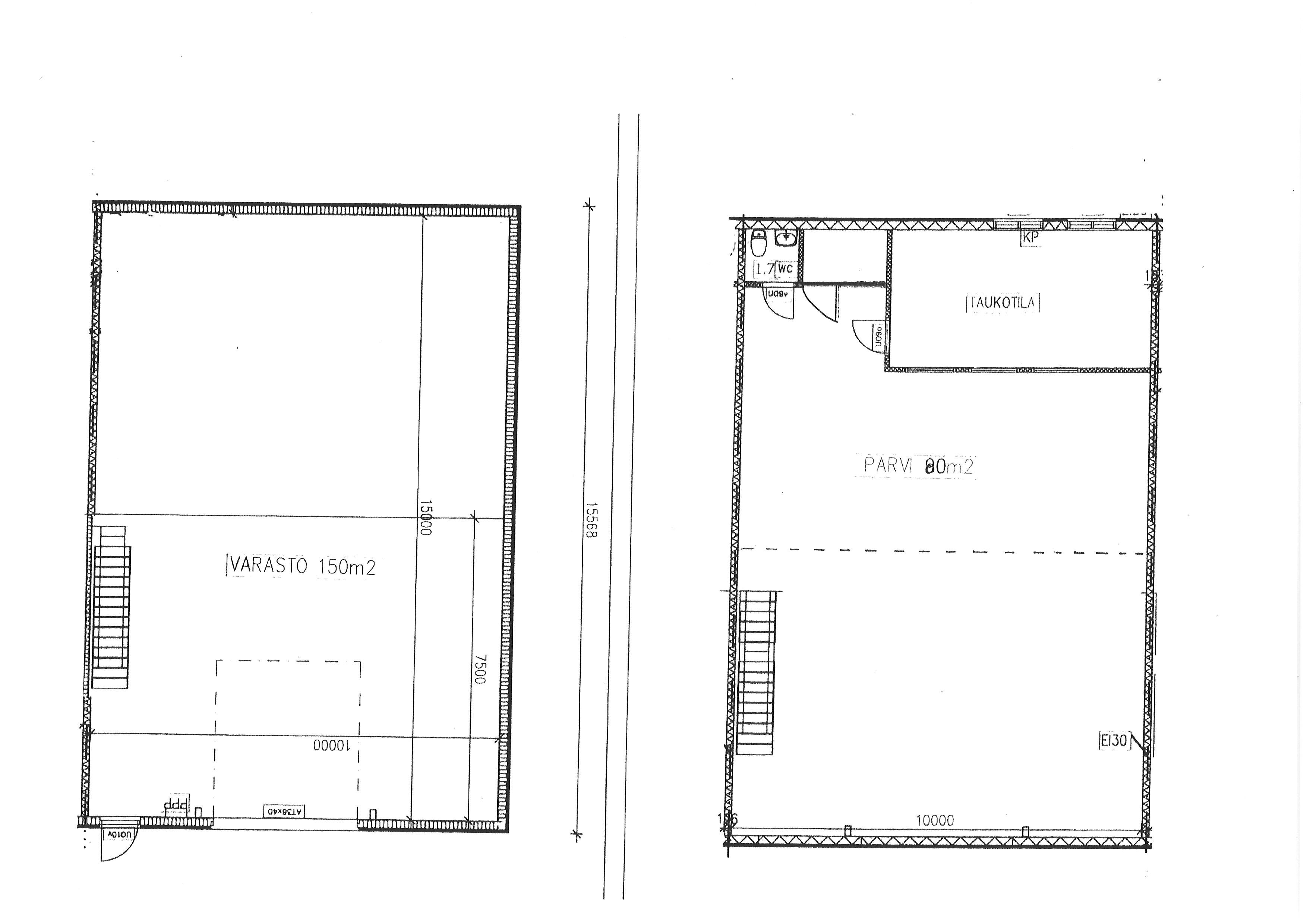
Vuokrataan suositulta Takalaanilan alueelta siistissä kunnossa oleva hallitila sekä hyvän kokoinen parvitila.
Osoite
Gneissikuja 8 C10, 90620 Oulu
Tilatyyppi
Toimistotilaa
80 m2
Liiketilaa
150 m2
Tuotantotilaa
150 m2
Varastotilaa
200 m2
Työtilaa
230 m2
Autotalli/-hallitilaa
150 m2
Yhteensä
230 m2
Tilajako
Parviosassa tauko-/toimisto, wc sekä avotilaa
Pohjapiirros
Vuokra
2.300,00€/kk + alv. Lisäksi käyttösähkö ja vesi
Vuokraan sisältyy lämpö
Palvelut
Ruskon alueen yritykset
Muuta
Parvitilassa taukotila/toimisto, wc sekä avotilaa. Alakerrassa portaiden alla myös wc-tilat. Tiloissa koneellinen ilmavaihto.
Hallissa öljyn-ja hiekanerotuskaivo. Nosto-ovi 3600 x 4000.
Rakennuksen päädyssä oleva piha-alue hallin omassa käytössä.
Hallissa öljyn-ja hiekanerotuskaivo. Nosto-ovi 3600 x 4000.
Rakennuksen päädyssä oleva piha-alue hallin omassa käytössä.
Vapautuu
Heti
Rakennusvuosi
2016
Kerros
1 / 2
Liitetiedostot
Ota yhteyttä
Pohjois-Suomen Toimitilat Oy
Sepänkatu 20, 90100 Oulu
Pekka Valkola
Näytä puhelinnumero
044 311 0555
Pyydä lisätietoa
