Vuokrataan tuotantotilat, varastotilat, työtilat, autotalli/-hallitilat - Porvoo
Yrittäjäntie 14, 06450 Porvoo #10828053
Vuokrataan edullinen hallitila Ölstensissä! Vuokra 1'490 €/kk + alv
Osoite
Yrittäjäntie 14, 06450 Porvoo
Tilatyyppi
Tuotantotilaa
250 m2
Varastotilaa
250 m2
Työtilaa
250 m2
Autotalli/-hallitilaa
250 m2
Yhteensä
250 m2
Vuokra
1'490 €/kk + alv
Vuokraan sisältyy lämpö
Muuta
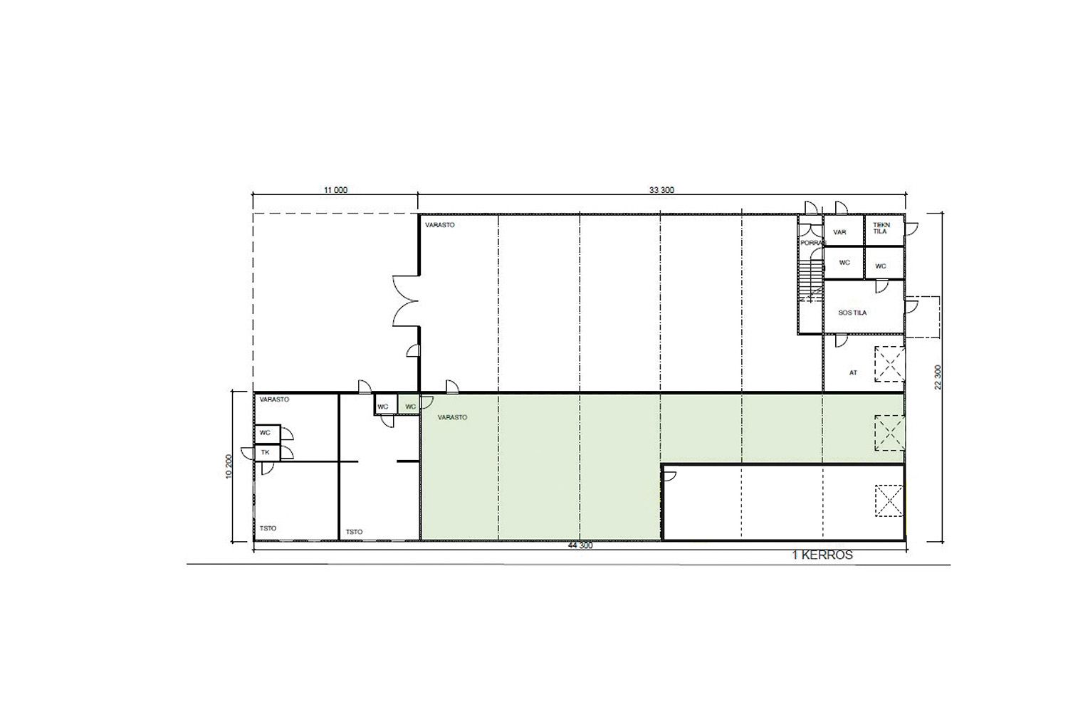
Porvoon Ölstensissä on nyt vuokrattavana tilava ja edullinen hallitila (pohjakuvaan merkitty vihreällä värillä). Tila soveltuu varastointiin ja työskentelyyn.
Hallin pinta-ala on noin 250m². Tilassa on käyntiovellinen nosto-ovi (L3,8 m x K3,5 m), lattiakaivo, wc sekä vesipiste. Hallin vapaa korkeus on 4,2 metriä. Hallitilan lämmitys sisältyy vuokraan.
Tilaan on valettu uusi lattia 11/2025.
Ölstensistä on nopea yhteys Porvoon moottoritielle.
Edullinen, hyvä hallitila hyvien yhteyksien päässä!
Kohdetiedot
Sijainti
Katuosoite: Yrittäjäntie 14, 06450 Porvoo
Kaupunginosa: Ölstens
Ympäristö: Teollisuusalue
Rakennus/huoneisto
Pinta-alat: 250 m²
Rakennustyyppi: Teollisuusrakennus
Rakennusvuosi: 1989
Tilatyyppi: Varastohalli
Kunto, varusteet ja palvelut: Hyvä peruskunto, uusi lattia, käyntiovellinen nosto-ovi, lattiakaivo, vesipiste, wc
Pysäköinti: Pihassa
Lämmitys: Kaukolämpö
Vapautuu: Heti vapaa
Vuokrahinta ja kulut
Kuukausivuokra:1'490 €/kk + alv
Sähkö- ja vesimaksu: Mittauksen mukaan
Lämmitys: Sisältyy vuokraan
Muuta: Minimisopimuskausi 12kk, vakuus 3kk vuokraa vastaava summa ja luottotietojen on oltava kunnossa
Hallin pinta-ala on noin 250m². Tilassa on käyntiovellinen nosto-ovi (L3,8 m x K3,5 m), lattiakaivo, wc sekä vesipiste. Hallin vapaa korkeus on 4,2 metriä. Hallitilan lämmitys sisältyy vuokraan.
Tilaan on valettu uusi lattia 11/2025.
Ölstensistä on nopea yhteys Porvoon moottoritielle.
Edullinen, hyvä hallitila hyvien yhteyksien päässä!
Kohdetiedot
Sijainti
Katuosoite: Yrittäjäntie 14, 06450 Porvoo
Kaupunginosa: Ölstens
Ympäristö: Teollisuusalue
Rakennus/huoneisto
Pinta-alat: 250 m²
Rakennustyyppi: Teollisuusrakennus
Rakennusvuosi: 1989
Tilatyyppi: Varastohalli
Kunto, varusteet ja palvelut: Hyvä peruskunto, uusi lattia, käyntiovellinen nosto-ovi, lattiakaivo, vesipiste, wc
Pysäköinti: Pihassa
Lämmitys: Kaukolämpö
Vapautuu: Heti vapaa
Vuokrahinta ja kulut
Kuukausivuokra:1'490 €/kk + alv
Sähkö- ja vesimaksu: Mittauksen mukaan
Lämmitys: Sisältyy vuokraan
Muuta: Minimisopimuskausi 12kk, vakuus 3kk vuokraa vastaava summa ja luottotietojen on oltava kunnossa
Vapautuu
Heti
Kerros
1 / 1
Katutasossa
Näkyvällä paikalla
Ota yhteyttä
Tilat.fi
KTM, LKV Antti Soivio
Näytä puhelinnumero
0400 446 553
OTM, LKV Riikka Tuominen
Näytä puhelinnumero
0400 551 790
KTM, LKV Maria-Sofia Puhakka
Näytä puhelinnumero
0400-150330
HTM, LKV Aleksandra Riki
Näytä puhelinnumero
0400-211288
LKV Tilat.fi Oy on toimitilojen välitykseen erikoistunut yritys.
http://www.tilat.fiPyydä lisätietoa
