Vuokrataan toimistotilat - Helsinki
Eteläesplanadi 18, Keskusta, 00130 Helsinki #10827961
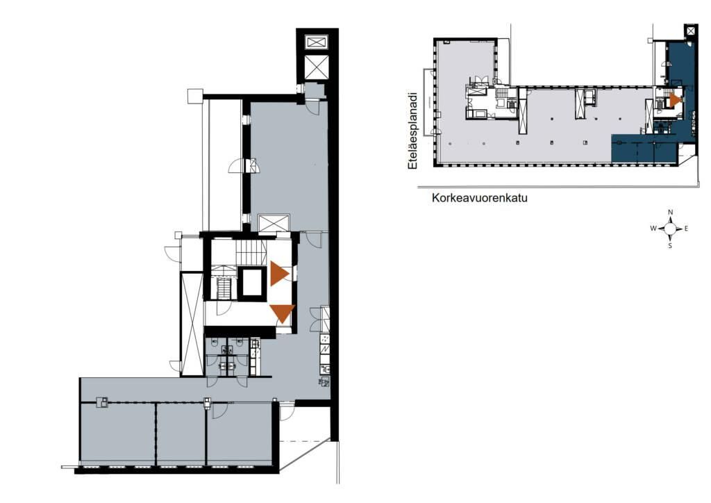
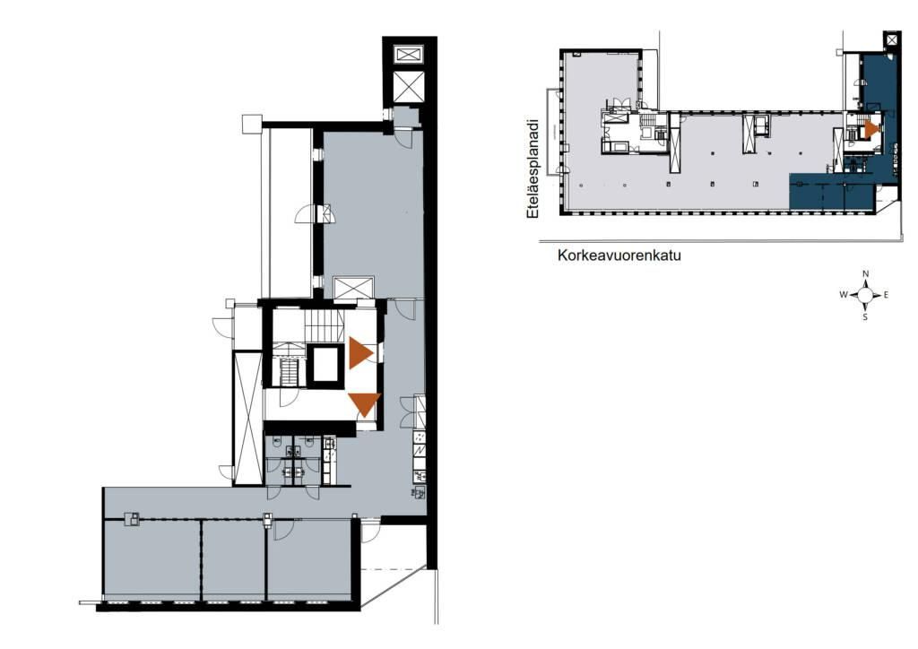
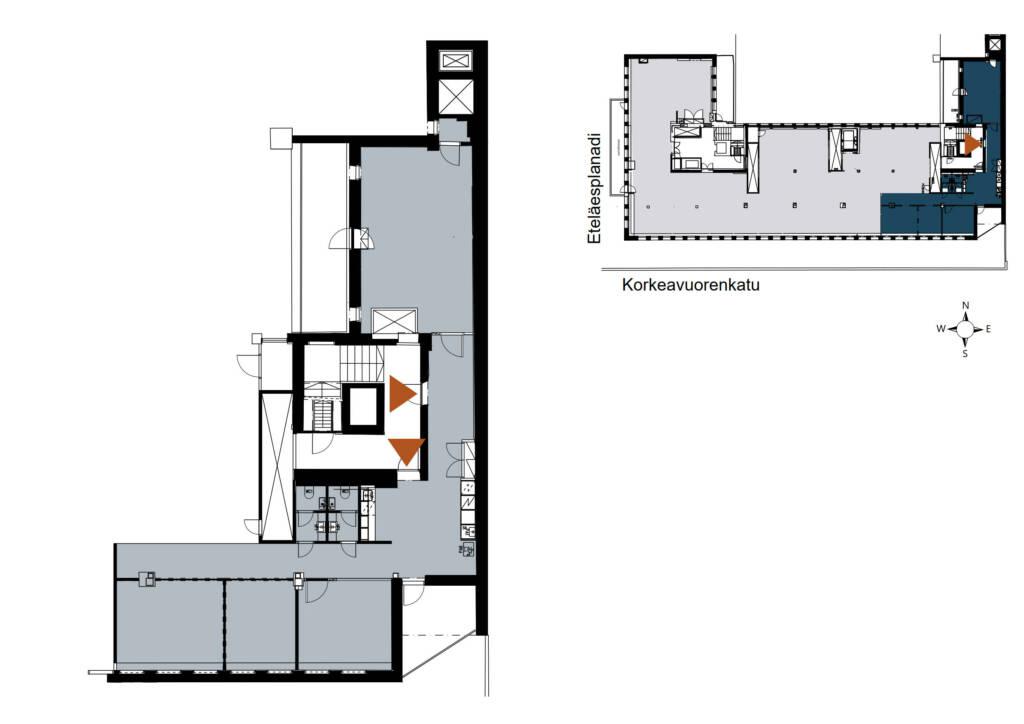
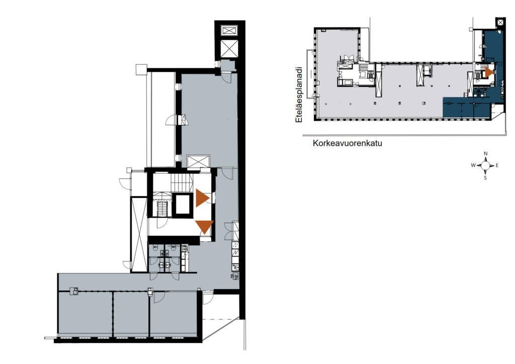
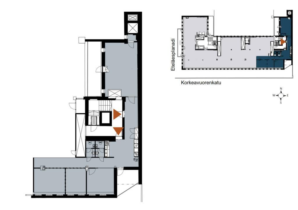
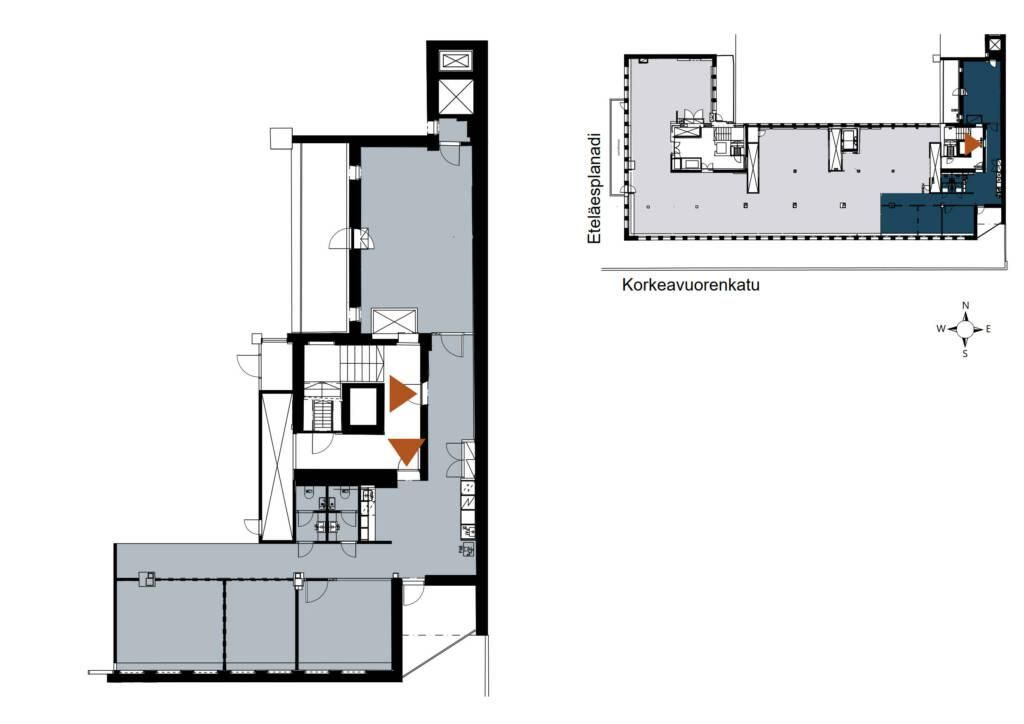
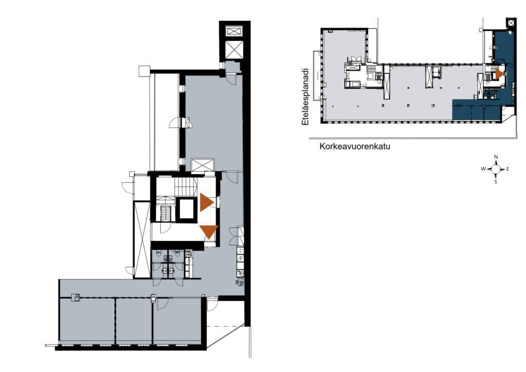
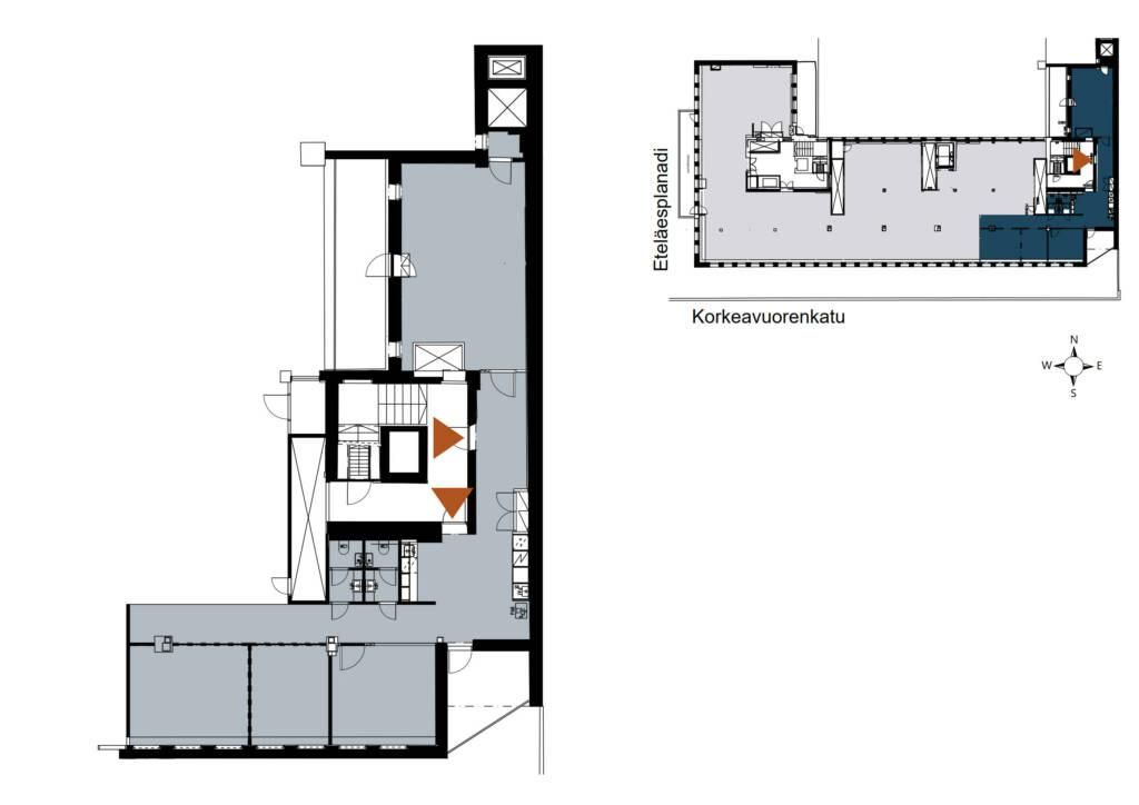
Eteläesplanadi 18 - Toimisto 128 m²
Osoite
Eteläesplanadi 18, 00130 Helsinki
Tilatyyppi
Toimistotilaa
128 m2
Pohjapiirros
Kiinteistö
Tervetuloa tutustumaan tähän viehättävään ja käytännölliseen toimistotilaan, joka tarjoaa kaiken, mitä tarvitset tehokkaaseen työskentelyyn. Sisäänkäynti Korkeavuorenkadulta johdattaa sinut suoraan tilaan, jossa on kaksi omaa terassia. Näiltä terasseilta avautuvat upeat näkymät kaupungin kattojen ylle, tarjoten inspiroivan ympäristön työpäivän aikana.
Hissi kulkee kätevästi kerrokseen 7, ja toimisto sijaitsee rauhallisessa kerroksessa 8, mikä takaa työrauhan ja viihtyisyyden. Tämä tila on täydellinen valinta pienelle tiimille, joka arvostaa sekä käytännöllisyyttä että estetiikkaa. Tila sopii erinomaisesti 4-8 hengelle, tarjoten mukavan ja tehokkaan työskentely-ympäristön.
Eteläespa 18 - yksi Eteläesplanadin halutuimmista toimistokohteista
Tämä arkkitehti J. S. Sirénin suunnittelema arvokiinteistö, joka sijaitsee Esplanadin puiston reunalla, on valmistunut vuonna 1935 ja saneerattu huippumoderniksi pääkonttoriksi vuonna 2017.
Kiinteistössä toimii useita arvostettuja yrityksiä, kuten SEB, jonka tyylikkäät tilat edustavat viimeisimpiä toimitilatrendejä, säilyttäen samalla kohteen alkuperäisen tunnelman. Suuret ikkunapinnat tuovat runsaasti luonnonvaloa kerroksiin, joihin pääsee sisääntuloaulan atriumin kautta. Henkilökunnan yhteiset tilat ovat avarat ja toteutettu monitilaratkaisuin, ja neuvottelutilat edustavat viimeisintä tekniikkaa.
Sijainti ja palvelut
Sijainti Helsingin ydinkeskustan palveluiden äärellä tarjoaa runsaasti lounas- ja kahvilavaihtoehtoja sekä erinomaiset julkisen liikenteen yhteydet. Perinteikkään Esplanadin puiston varrella sijaitseva toimistokohde on erityisen haluttu ja tarjoaa ainutlaatuisen työympäristön.
Vastuullisuus
Kiinteistöllä on arvostettu LEED Gold -ympäristösertifikaatti, joka korostaa sen sitoutumista kestävään kehitykseen ja ympäristöystävällisiin ratkaisuihin.
Ota yhteyttä
Kiinnostuitko? Ota yhteyttä ja tule tutustumaan tiloihin!
Toimitilavälityspalvelumme on tilanhakijalle maksuton.
Hissi kulkee kätevästi kerrokseen 7, ja toimisto sijaitsee rauhallisessa kerroksessa 8, mikä takaa työrauhan ja viihtyisyyden. Tämä tila on täydellinen valinta pienelle tiimille, joka arvostaa sekä käytännöllisyyttä että estetiikkaa. Tila sopii erinomaisesti 4-8 hengelle, tarjoten mukavan ja tehokkaan työskentely-ympäristön.
Eteläespa 18 - yksi Eteläesplanadin halutuimmista toimistokohteista
Tämä arkkitehti J. S. Sirénin suunnittelema arvokiinteistö, joka sijaitsee Esplanadin puiston reunalla, on valmistunut vuonna 1935 ja saneerattu huippumoderniksi pääkonttoriksi vuonna 2017.
Kiinteistössä toimii useita arvostettuja yrityksiä, kuten SEB, jonka tyylikkäät tilat edustavat viimeisimpiä toimitilatrendejä, säilyttäen samalla kohteen alkuperäisen tunnelman. Suuret ikkunapinnat tuovat runsaasti luonnonvaloa kerroksiin, joihin pääsee sisääntuloaulan atriumin kautta. Henkilökunnan yhteiset tilat ovat avarat ja toteutettu monitilaratkaisuin, ja neuvottelutilat edustavat viimeisintä tekniikkaa.
Sijainti ja palvelut
Sijainti Helsingin ydinkeskustan palveluiden äärellä tarjoaa runsaasti lounas- ja kahvilavaihtoehtoja sekä erinomaiset julkisen liikenteen yhteydet. Perinteikkään Esplanadin puiston varrella sijaitseva toimistokohde on erityisen haluttu ja tarjoaa ainutlaatuisen työympäristön.
Vastuullisuus
Kiinteistöllä on arvostettu LEED Gold -ympäristösertifikaatti, joka korostaa sen sitoutumista kestävään kehitykseen ja ympäristöystävällisiin ratkaisuihin.
Ota yhteyttä
Kiinnostuitko? Ota yhteyttä ja tule tutustumaan tiloihin!
Toimitilavälityspalvelumme on tilanhakijalle maksuton.
Vapautuu
Kysy
Kerros
8
Ota yhteyttä
Logistila Oy
Kylätie 11-13, 00320 HELSINKI
Karoliina Turppo
Näytä puhelinnumero
050 345 3258
Pyydä lisätietoa
