Vuokrataan toimistotilat - Tampere
Eteläpuisto 2C, Kaakinmaa, 33200 Tampere #10827913
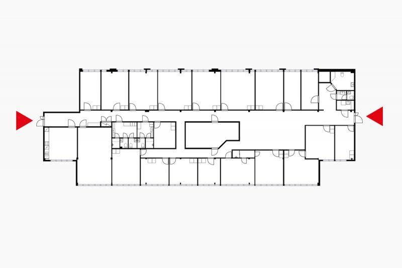
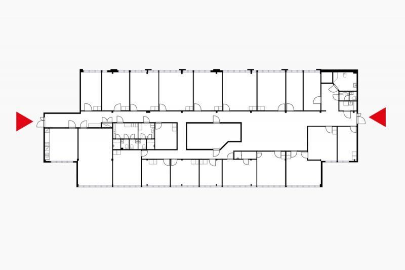
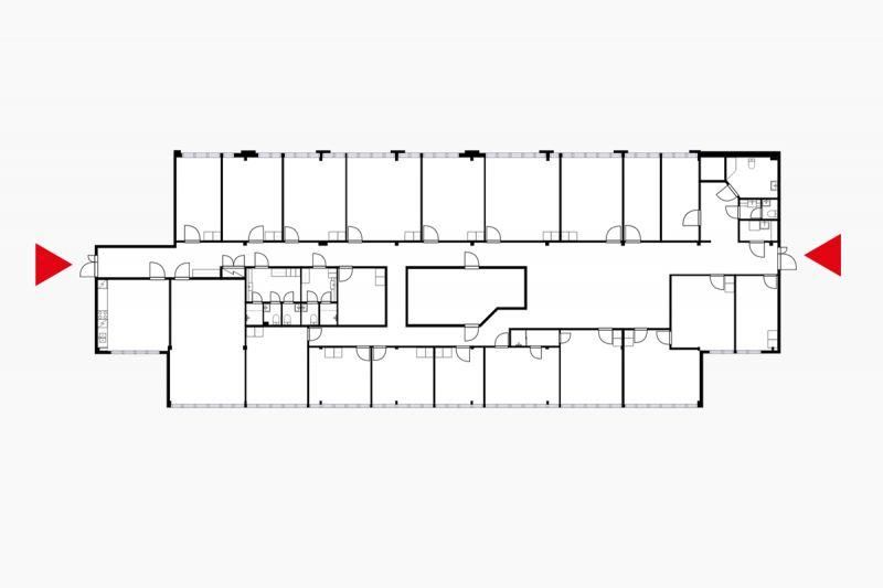
Vuokrataan Tampereen Kaakinmaalta heti vapaa viidennen, ylimmän kerroksen 591 m² toimistotila.
Klingendahlin kiinteistö sijaitsee Eteläpuistossa. Rakennus on vanha teollisuusrakennus, joka on nykypäivänä suojeltu kohde. Tilojen erikoisuutena on mm. normaalia korkeammat huonekorkeudet osassa huoneista.
Kysy rohkeasti lisätietoja ja sovitaan käynti kohteella jo tänään!
Osoite
Eteläpuisto 2C, 33200 Tampere
Tilatyyppi
Toimistotilaa
591 m2
Kiinteistö
Klingendahl
Vapautuu
Kysy
Ota yhteyttä
Hausala Oy
Erkkilänkatu 11, 33100 Tampere
Näytä puhelinnumero
050 472 7077
Mikko Ranta
Näytä puhelinnumero
050 360 6500
Mika Savikko
Näytä puhelinnumero
050 472 7077
Pyydä lisätietoa
