Vuokrataan toimistotilat, tuotantotilat - Vantaa
Koivuhaankuja 2, Koivuhaka, 01510 Vantaa #10827911
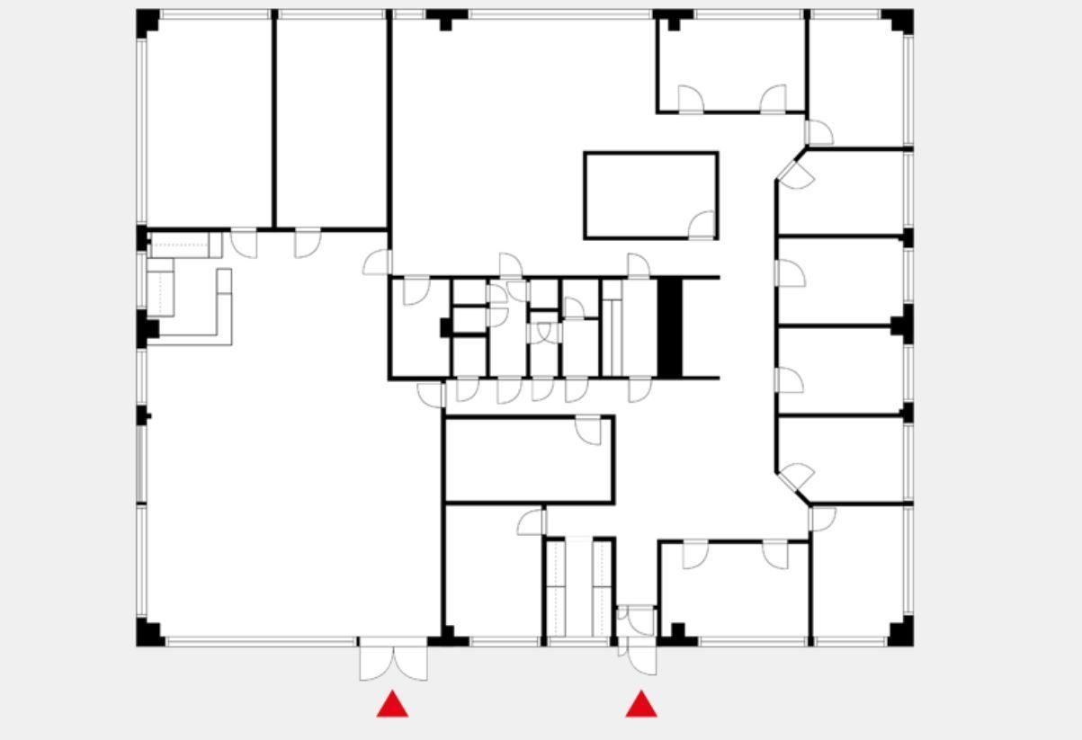
Vuokrataan Vantaan Koivuhaasta heti vapaa toisen kerroksen 458 m² toimisto- / tuotantotila. Tilaan sisäänkäynti on ensimmäisestä kerroksessa katetulta lastauslaiturilta.
Tilasta löytyy työhuoneita, avotilaa sekä omat keittiö- ja wc-tilat. Varastoon on nosto-ovi. Pihassa hyvin pysäköintitilaa.
Kysy rohkeasti lisätietoja ja sovitaan käynti kohteella jo tänään!
Osoite
Koivuhaankuja 2, 01510 Vantaa
Tilatyyppi
Toimistotilaa
458 m2
Tuotantotilaa
458 m2
Yhteensä
458 m2
Kiinteistö
Koivuhaanportti
Vapautuu
Kysy
Ota yhteyttä
Hausala Oy
Erkkilänkatu 11, 33100 Tampere
Näytä puhelinnumero
050 472 7077
Matti Pöyhiä
Näytä puhelinnumero
040 722 6650
Mikko Ranta
Näytä puhelinnumero
050 360 6500
Pyydä lisätietoa
