Vuokrataan toimistotilat - Jyväskylä
Kauppakatu 18 B, 40100 Jyväskylä #10827908
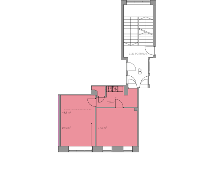
Vuokrataan hyväkuntoinen ja valoisa, n. 49m2 toimistotila Kauppakadun varrelta ydinkeskustasta. Toisen kerroksen toimistossa on kaksi toimistohuonetta, keittiö ja wc. Toista toimistohuonetta on mahdollista hyödyntää myös työtilana tai pienenä kokoushuoneena (kts pohjakuva). Toimisto on ilmastoitu.
Pysäköintitilaa neuvoteltavissa rakennuksen takana, kylmiä sekä lämmitystolpallisia paikkoja.
Lisätiedot ja näytöt:
Henri Kumpulainen, Puh: 040 864 3631, s-posti: henri.kumpulainen@aveon.fi
Miska Puustinen, Puh: 045 354 6836, s-posti: miska.puustinen@aveon.fi
Näkyvällä paikalla
Hissi
Aveon Real Estate Oy
Kauppakatu 18 C 26, 40100 Jyväskylä
Henri Kumpulainen
Puh.
Näytä puhelinnumero
040 864 3631
henri.kumpulainen@aveon.fi
Miska Puustinen
Puh:
Näytä puhelinnumero
045 354 6836
miska.puustinen@aveon.fi
Olemme kiinteistöliiketoiminnan asiantuntija, joka toimii yrittäjämäisesti neuvonantajana kiinteistökaupoissa, toimitilavälittämisessä sekä kiinteistökehityksessä.
Asiakkaitamme ovat kotimaiset ja ulkomaiset kiinteistönomistajat, -sijoittajat sekä tilojen käyttäjät kaikkialla Suomessa.
