Vuokrataan toimistotilat, liiketilat - Helsinki
Sörnäistenlaituri 3, Kalasatama, 00540 Helsinki #10827902
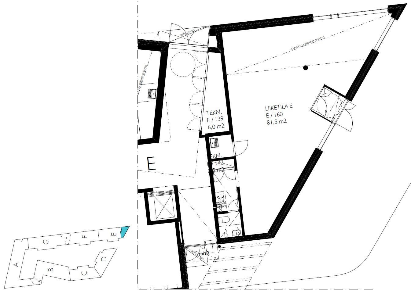
Vuokrataan hieno 81,5 m² liiketila Kalasatamasta, merinäköalalla! Tila on pääosin avotilaa varustettuna pienellä keittiöllä sekä wc- tilalla.
Kauppakeskus REDIn kaikenkattavat palvelut löytyvät parin minuutin kävelymatkan päässä. Kohteeseen on erinomaiset liikenneyhteydet; Kalasataman ja Pasilan välillä liikennöinnin aloittanut raitiovaunu, metro sekä linja- autot ympäri Helsinkiä.
Kysy lisätietoja tai sovitaan käynti kohteelle jo tänään!
Hausala Oy
Erkkilänkatu 11, 33100 Tampere
Näytä puhelinnumero
050 472 7077
Mika Savikko
Näytä puhelinnumero
050 472 7077
Mikko Ranta
Näytä puhelinnumero
050 360 6500
