Vuokrataan toimistotilat - Helsinki
Trigora, Urho Kekkosen katu 3-7, Kamppi, 00100 Helsinki #10827868
Siisti 383 m² toimisto paraatipaikalla Kampin ytimessä.
Osoite
Urho Kekkosen katu 3-7, 00100 Helsinki
Tilatyyppi
Toimistotilaa
383 m2
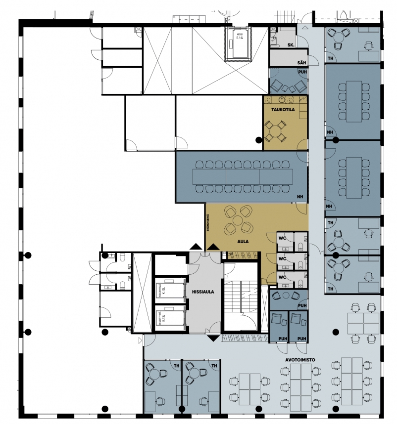
Pohjapiirros
Kiinteistö
Laadukas n. 383 m² toimisto paraatipaikalla aivan Kampin sydämessä.
Tilassa on tällä hetkellä erikokoisia neuvotteluhuoneita, toimistohuoneita sekä avotoimistoa.
Vapaana oleva kerros on kokonaisuudessaan 735 m², joka voidaan jakaa kahdelle toimijalle. Koko ja ehdotettu pohja on esimerkki, näitä voidaan muokata juuri teidän tarpeidenne mukaisesti. Tila sijaitsee Urhontornin 5. kerroksessa.
Urhontorni on osa Kampin kauppakeskuksen yhteydessä sijaitsevaa toimistorakennuskokonaisuutta Trigoraa. Trigora on rakennettu 2005, toimistotilaa kolmessa tornissa on yhteensä 12 000 m² ja kokonaisuuden on suunnitellut Pekka Helin.
Torneista on suora yhteys kauppakeskukseen, joten kattavat palvelut, ravintolamaailma, kaupat, julkiset kulkuvälineet ja parkkihallit välittömässä läheisyydessä.
Tilassa on tällä hetkellä erikokoisia neuvotteluhuoneita, toimistohuoneita sekä avotoimistoa.
Vapaana oleva kerros on kokonaisuudessaan 735 m², joka voidaan jakaa kahdelle toimijalle. Koko ja ehdotettu pohja on esimerkki, näitä voidaan muokata juuri teidän tarpeidenne mukaisesti. Tila sijaitsee Urhontornin 5. kerroksessa.
Urhontorni on osa Kampin kauppakeskuksen yhteydessä sijaitsevaa toimistorakennuskokonaisuutta Trigoraa. Trigora on rakennettu 2005, toimistotilaa kolmessa tornissa on yhteensä 12 000 m² ja kokonaisuuden on suunnitellut Pekka Helin.
Torneista on suora yhteys kauppakeskukseen, joten kattavat palvelut, ravintolamaailma, kaupat, julkiset kulkuvälineet ja parkkihallit välittömässä läheisyydessä.
Pysäköinti
P-Kamppi P-CityForum parkkihalleista on suora kulkuyhteys tähän taloon.
Palvelut
Kaikki keskustan palvelut kävelyetäisyydellä.
Kulkuyhteydet
Metroasema alle 100 m, Raitiovaunupysäkki 100 m, Bussipysäkki alle 100 m, Juna-asema 600 m, Lentoasema 20 km
Vapautuu
Heti
Rakennusvuosi
2005
Kerros
5
Energiatehokkuusluokka
Ei lain edellyttämää energiatodistusta
Näkyvällä paikalla
Hissi
Ota yhteyttä
ScanReal Oy LKV
Opus Business Park
Hitsaajankatu 24
00810 Helsinki
info@scanreal.fi
Puh:
Näytä puhelinnumero
020 730 8830
Sopivat toimitilat yhdellä otolla!
Kartoitamme toimitilatarpeesi ja etsimme yrityksellesi parhaiten sopivat vapaat toimitilat. Koska vuokranantajat maksavat palvelumme, on tämä yrityksellesi veloituksetonta.
OTA YHTEYTTÄ - SOVI NÄYTTÖ!
Kaikki kohteemme eivät ole netissä, kerro tilatarpeesi niin kartoitamme vaihtoehdot.
Palvelumme on tilanhakijalle ilmainen
Pyydä lisätietoa
