Vuokrataan liiketilat - Helsinki
Pohjoisesplanadi 35, Keskusta, 00100 Helsinki #10827862
Liiketilaa Helsingin keskustasta
Osoite
Pohjoisesplanadi 35, 00100 Helsinki
Tilatyyppi
Liiketilaa
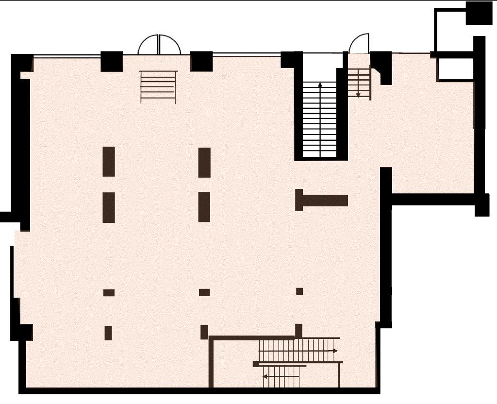
246 m2
Muuta
Vuokrataan arvokiinteistöstä katutason liiketilaa Helsingin ydinkeskustassa, vuokrattava tila on 1. kerroksen n.246m2 tila. Tämä 346m2 tila on jaettavissa kahteen osaan esim. 100m2 ja 246m2 liiketiloihin.
Liiketiloilla ei ole Pohjoisesplanadille katunäkyvyyttä vaan ovat kauppakäyttävällä Pohjoisesplanadi 35 kohdalla.
Arvokiinteistö on 1888 valmistunut ja sen on suunnitellut K.A. Wreden. Perusparannustyöt on tehty kiinteistön arkkitehtuuria ja arvokasta historiaa kunnioittaen.
Tila on heti vapaa ja ei sovellu ravintola- tai kahvilatilaksi.
Julkisen liikenteen palvelut ovat lyhyen kävelyn matkan päässä ja lähin pysäköintihalli sijaitsee Kluuvissa, sisäänajo Kaisaniemenkadulta ja Fabianinkadulta.
Tervetuloa tutustumaan, varaathan välittäjältä yksityisnäyttösi. Kysy myös muita sopivia vaihtoehtoja - palvelumme on tilanhakijalle veloitukseton!
Liiketiloilla ei ole Pohjoisesplanadille katunäkyvyyttä vaan ovat kauppakäyttävällä Pohjoisesplanadi 35 kohdalla.
Arvokiinteistö on 1888 valmistunut ja sen on suunnitellut K.A. Wreden. Perusparannustyöt on tehty kiinteistön arkkitehtuuria ja arvokasta historiaa kunnioittaen.
Tila on heti vapaa ja ei sovellu ravintola- tai kahvilatilaksi.
Julkisen liikenteen palvelut ovat lyhyen kävelyn matkan päässä ja lähin pysäköintihalli sijaitsee Kluuvissa, sisäänajo Kaisaniemenkadulta ja Fabianinkadulta.
Tervetuloa tutustumaan, varaathan välittäjältä yksityisnäyttösi. Kysy myös muita sopivia vaihtoehtoja - palvelumme on tilanhakijalle veloitukseton!
Vapautuu
Kysy
Rakennusvuosi
1888
Kerros
1
Ota yhteyttä
Tuloskiinteistöt Oy
Rikhardinkatu 2 B 5, 00130 Helsinki
Näytä puhelinnumero
(09) 6841 620
Jorma Ryynänen
Commercial Real Estate Advisor LKV, LVV
Näytä puhelinnumero
+358 40 708 4064
Nina Meyke
Commercial Real Estate Advisor
Näytä puhelinnumero
+358 50 466 1519
Pyydä lisätietoa
