Vuokrataan toimistotilat - Helsinki
Trigora, Urho Kekkosen katu 3-7, Kamppi, 00100 Helsinki #10827857
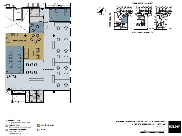
Näyttävä 226 m² toimisto paraatipaikalla Kampin ytimessä.
Osoite
Urho Kekkosen katu 3-7, 00100 Helsinki
Tilatyyppi
Toimistotilaa
226 m2
Pohjapiirros
Kiinteistö
Kuudennen kerroksen toimistoon kuuluu avotilaa, yksi työhuone sekä pari erikokoista neuvotteluhuonetta.
Kampintorni on osa Kampin kauppakeskuksen yhteydessä sijaitsevaa toimistorakennuskokonaisuutta Trigoraa. Trigora on rakennettu 2005, toimistotilaa kolmessa tornissa on yhteensä 12 000 m² ja kokonaisuuden on suunnitellut Pekka Helin.
Toimistoista on suora yhteys kauppakeskukseen, joten kattavat palvelut, ravintolamaailma, kaupat, julkiset kulkuvälineet ja parkkihallit välittömässä läheisyydessä.
Kampintorni on osa Kampin kauppakeskuksen yhteydessä sijaitsevaa toimistorakennuskokonaisuutta Trigoraa. Trigora on rakennettu 2005, toimistotilaa kolmessa tornissa on yhteensä 12 000 m² ja kokonaisuuden on suunnitellut Pekka Helin.
Toimistoista on suora yhteys kauppakeskukseen, joten kattavat palvelut, ravintolamaailma, kaupat, julkiset kulkuvälineet ja parkkihallit välittömässä läheisyydessä.
Pysäköinti
P-Kamppi P-CityForum parkkihalleista on suora kulkuyhteys tähän taloon.
Palvelut
Kaikki keskustan palvelut kävelyetäisyydellä.
Kulkuyhteydet
Metroasema alle 100 m, Raitiovaunupysäkki 100 m, Bussipysäkki alle 100 m, Juna-asema 600 m, Lentoasema 20 km
Vapautuu
Heti
Rakennusvuosi
2005
Kerros
6
Energiatehokkuusluokka
Ei lain edellyttämää energiatodistusta
Näkyvällä paikalla
Hissi
Ota yhteyttä
ScanReal Oy LKV
Opus Business Park
Hitsaajankatu 24
00810 Helsinki
info@scanreal.fi
Puh:
Näytä puhelinnumero
020 730 8830
Sopivat toimitilat yhdellä otolla!
Kartoitamme toimitilatarpeesi ja etsimme yrityksellesi parhaiten sopivat vapaat toimitilat. Koska vuokranantajat maksavat palvelumme, on tämä yrityksellesi veloituksetonta.
OTA YHTEYTTÄ - SOVI NÄYTTÖ!
Kaikki kohteemme eivät ole netissä, kerro tilatarpeesi niin kartoitamme vaihtoehdot.
Palvelumme on tilanhakijalle ilmainen
Pyydä lisätietoa
