Vuokrataan toimistotilat - Espoo
Tuulikuja 2, Tapiola, 02100 Espoo #10827835
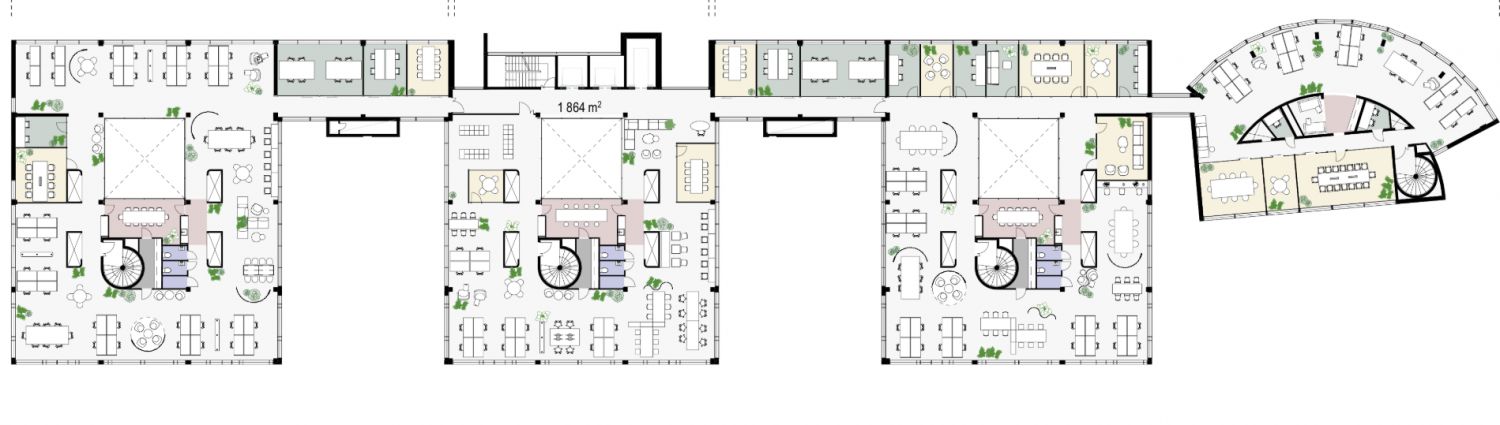
Vuokrattavana 3. kerroksen modernia, avaraa toimistotilaa puurakenteista kiinteistöstä.
Osoite
Tuulikuja 2, 02100 Espoo
Tilatyyppi
Toimistotilaa
385 m2
Kiinteistö
Vuokrattavana 3. kerroksen modernia, avaraa toimistotilaa puurakenteista kiinteistöstä. Työtilat pursuavat luonnonvaloa ja sen vehreät näkymät avautuvat eri suuntiin Tapiolaa ja sen lähiluontoa.
Sijainti
Kiinteistö on Länsiväylän varrella, ja Tapiolan metroasema sijaitsee kävelymatkan päässä.
Pysäköinti
Parkkipaikkoja sekä sähköauton latauspisteistä on runsaasti tarjolla parkkihallista.
Palvelut
-Henkilöstöravintola
-Vuokrattavia neuvottelutiloja
-Aulapalvelu
-Kuntosali
-Vuokrattavia neuvottelutiloja
-Aulapalvelu
-Kuntosali
Kulkuyhteydet
- Metro
- Bussi
- Oma auto
- Bussi
- Oma auto
Vapautuu
Heti
Kerros
3 / 4
Energiatehokkuusluokka
Ei lain edellyttämää energiatodistusta
Näkyvällä paikalla
Hissi
Ota yhteyttä
REALIUM OY LKV
Tammasaarenkatu 1, 00180 Helsinki
Vaihde:
Näytä puhelinnumero
010 326 346
Tuomo Mäkelä
tuomo.makela@realium.fi
p.
Näytä puhelinnumero
044 050 1158
Joel Keto
joel.keto@realium.fi
p.
Näytä puhelinnumero
045 317 0330
KAIKKI TILAVAIHTOEHDOT KERRALLA!
SOITA - MEILAA JA TILAA NÄYTTÖ!
Ilmainen palvelu tilanhakijoille.
Kartoitamme parhaat tilavaihtoehdot.
Kaikki kohteet eivät ole netissä.
Pyydä lisätietoa
