Vuokrataan toimistotilat - Espoo
Olarinluoma 14, Olarinluoma, 02200 Espoo #10827791
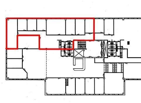
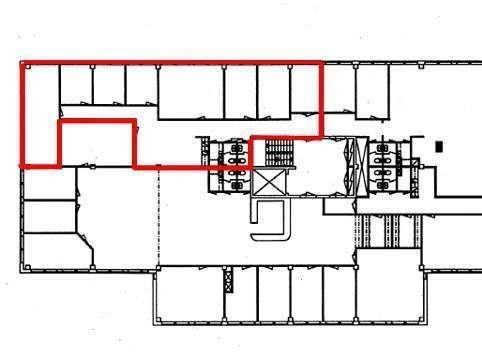
195 m² toimistotila kolmannessa kerroksessa Espoon Olarinluomassa.
Osoite
Olarinluoma 14, 02200 Espoo
Tilatyyppi
Toimistotilaa
195 m2
Pohjapiirros
Kiinteistö
Hyväkuntoinen tiiliverhoiltu teollisuuskiinteistö sijaitsee Espoon Olarinluomassa. Rakennus on valmistunut vuonna 1988. Ensimmäisessä kerroksessa sijaitsevat varasto- ja liiketilat, toisessa ja kolmannessa kerroksessa on toimisto- ja tuotantotilat. Rakennuksessa on kaksi porraskäytävää, joista A-portaassa on henkilöhissi ja B-portaassa henkilö-/tavarahissa (kantavuus 1 600 kg). Kiinteistössä on lounasruokala sekä pihalla runsaasti autopaikkoja. Lisäksi yläkerrasta on vuokrattavissa edustussauna.
Sijainti
Kiinteistön sijainti on erinomainen. Hyvät yhteydet Turun moottorielle sekä Länsiväylälle mahdollistavat tehokkaan liikennöinnin koko eteläisen Suomen alueelle. Etäisyys Vuosaaren satamaan on 34 km. Noin kilometrin etäisyydellä sijaitsevan Länsituulentien varrella olevilta linja-autopysäkeiltä on yhteys tiheään liikenneverkostoon Espoon alueella ja Helsingin keskustaan.
Pysäköinti
Pihalla runsaasti pysäköintipaikkoja ja piha-alue mahdollistaa myös rekkojen liikennöinnin varastolle.
Vapautuu
Heti
Kerros
3
Energiatehokkuusluokka
Ei lain edellyttämää energiatodistusta
Hissi
Ota yhteyttä
ScanReal Oy LKV
Opus Business Park
Hitsaajankatu 24
00810 Helsinki
info@scanreal.fi
Puh:
Näytä puhelinnumero
020 730 8830
Sopivat toimitilat yhdellä otolla!
Kartoitamme toimitilatarpeesi ja etsimme yrityksellesi parhaiten sopivat vapaat toimitilat. Koska vuokranantajat maksavat palvelumme, on tämä yrityksellesi veloituksetonta.
OTA YHTEYTTÄ - SOVI NÄYTTÖ!
Kaikki kohteemme eivät ole netissä, kerro tilatarpeesi niin kartoitamme vaihtoehdot.
Palvelumme on tilanhakijalle ilmainen
Pyydä lisätietoa
