Vuokrataan tuotantotilat, varastotilat - Kempele
Vihikari 10, 90440 Kempele #10827787
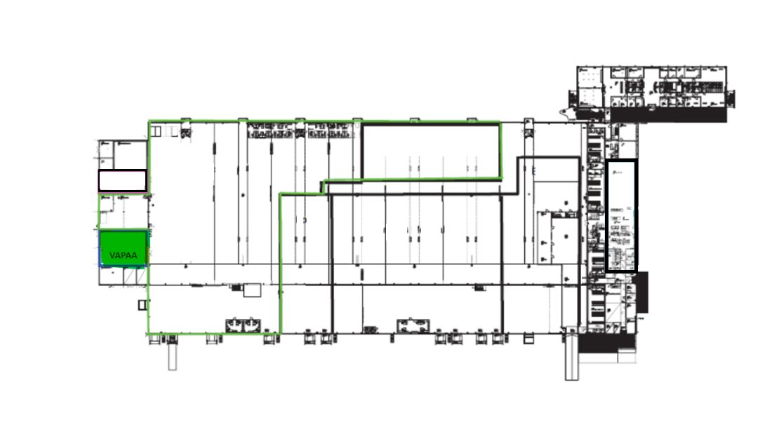
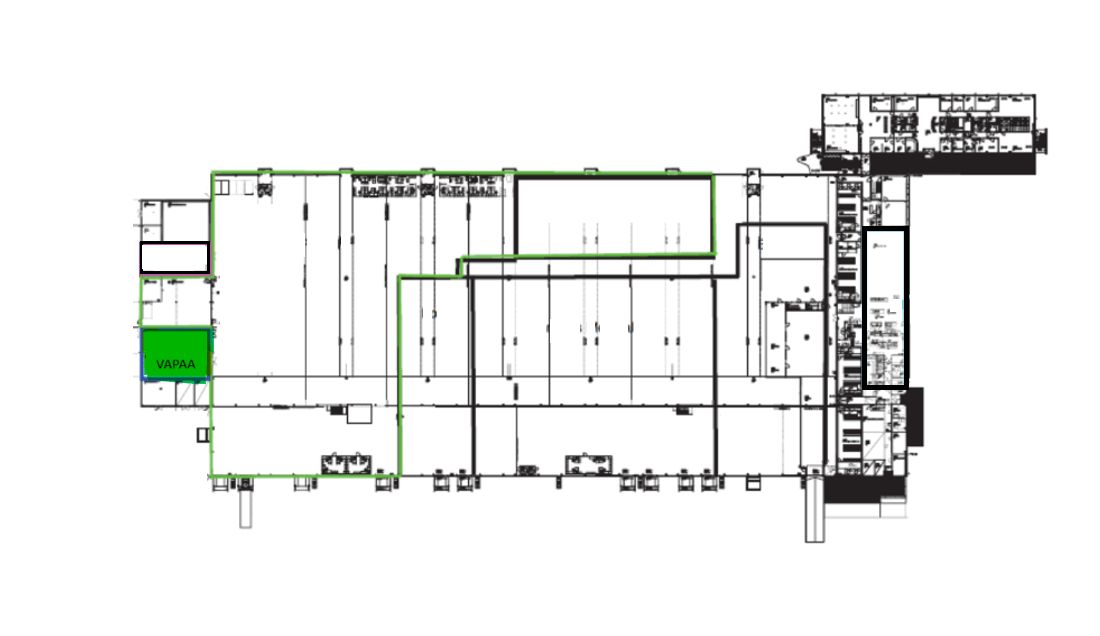
Vuokrataan vapautumassa oleva erinomainen katutason varastotila. Tila vapautuu 1.5.2026.
Lisätietoja 020 7290 710 ja lisää kohteita premises.fi
Kohteella ei lain edellyttämää energiatodistusta tai energialuokka ei tiedossa.Kerros: 1
Osoite
Vihikari 10, 90440 Kempele
Tilatyyppi
Tuotantotilaa
254 m2
Varastotilaa
254 m2
Yhteensä
254 m2
Ota yhteyttä
CRE PREMISES
Puh. Näytä puhelinnumero 020 7290 710
Vantaankoskentie 14
01670 VANTAA
Pyydä lisätietoa
