Vuokrataan varastotilat - Helsinki
Hankasuontie 9, Konala, 00390 Helsinki #10827771
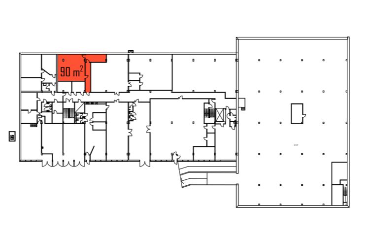
Varastotilaa Helsingin Konalassa.
Tämä 90 m² varastotila sijaitsee kiinteistön kellarikerroksessa. Kulku tilaan on lastausaulan kautta. Tilassa on myös erillinen varastohuone, jonne on pääsy suoraan päätilasta tai omassa käytössä olevan käytävän kautta.
Pienteollisuustoimintaan sopiva kiinteistö on vuodelta 1969 ja peruskorjattu vuosien 2009-2010 aikana. Rakennuksessa on varasto-, tuotanto- ja toimistotiloja kahdessa kerroksessa, koulutustiloja ja matalaa varastotilaa kellarikerroksessa. Kiinteistössä on lastauslaituri ja tavarahissi, jonka kantavuus on 3500kg.
Kysy lisää numerosta 044 723 4700 tai info@bref.fi. Palvelumme on tilanhakijoille ilmainen.
Bureau Real Estate Finland Oy
Lars Sonckin kaari 16, 02600 Espoo
Näytä puhelinnumero
0447234700
Bureau Real Estate Finland Oy
https://www.bref.fi