Vuokrataan toimistotilat - Helsinki
Salomonkatu 17, Kamppi, 00100 Helsinki #10827753
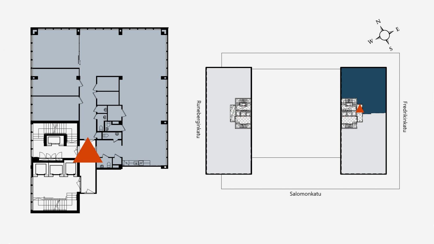
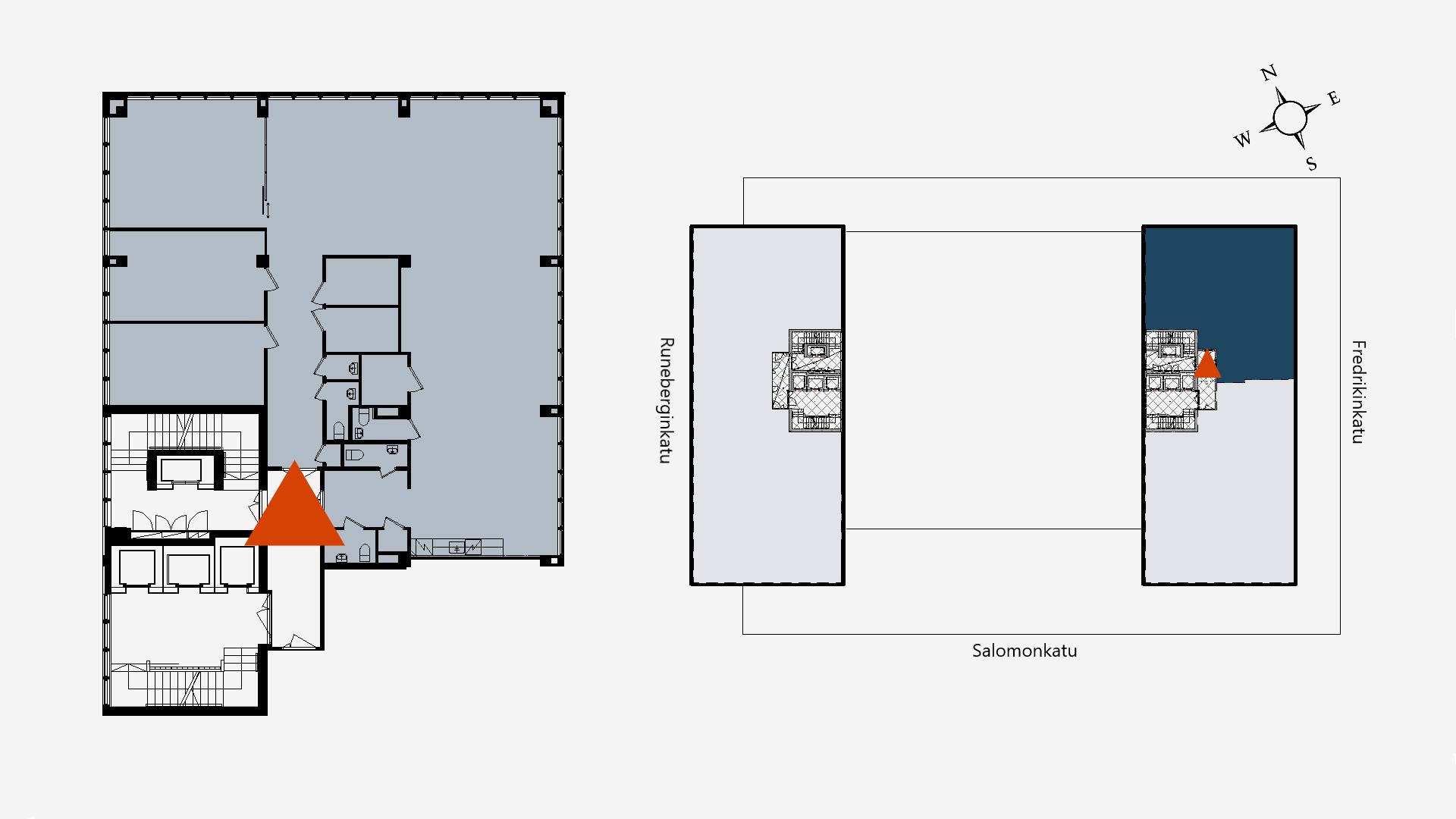
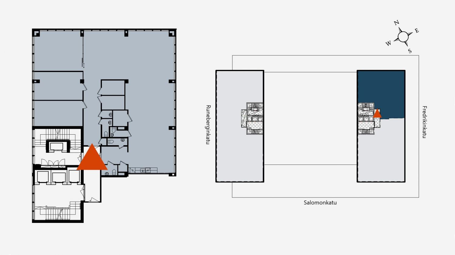
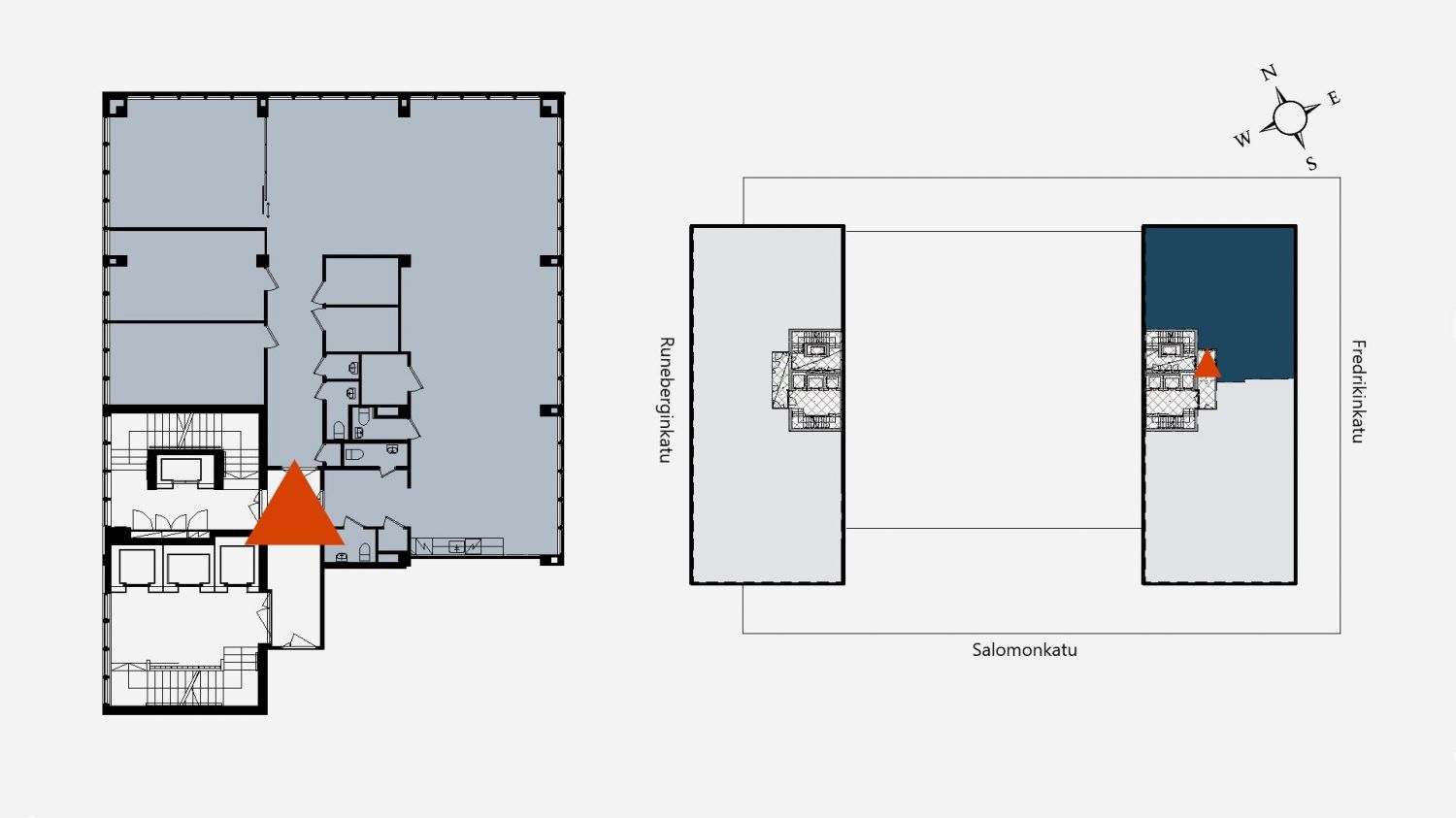
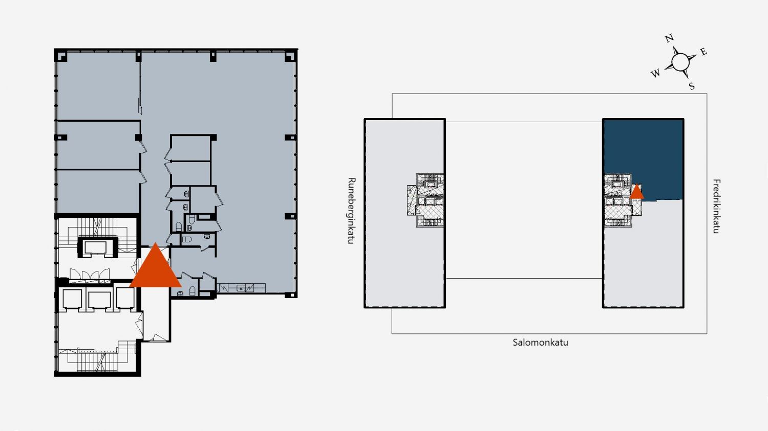
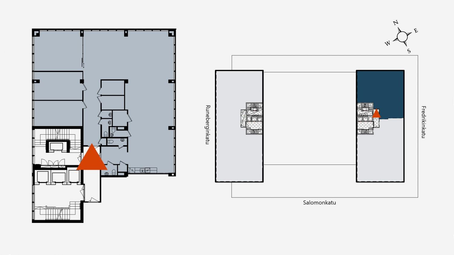
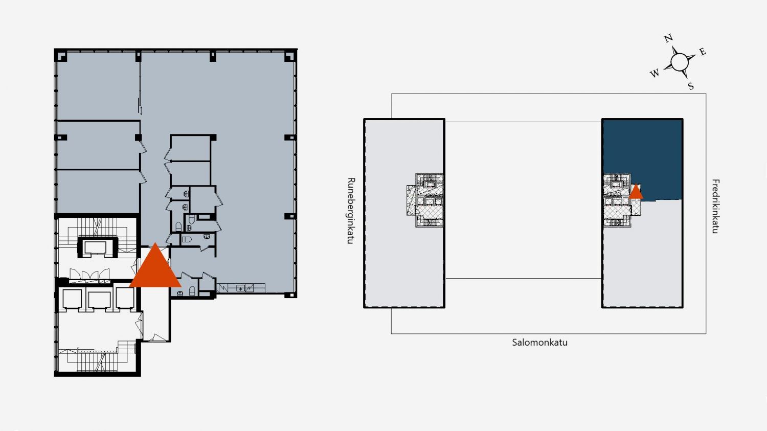
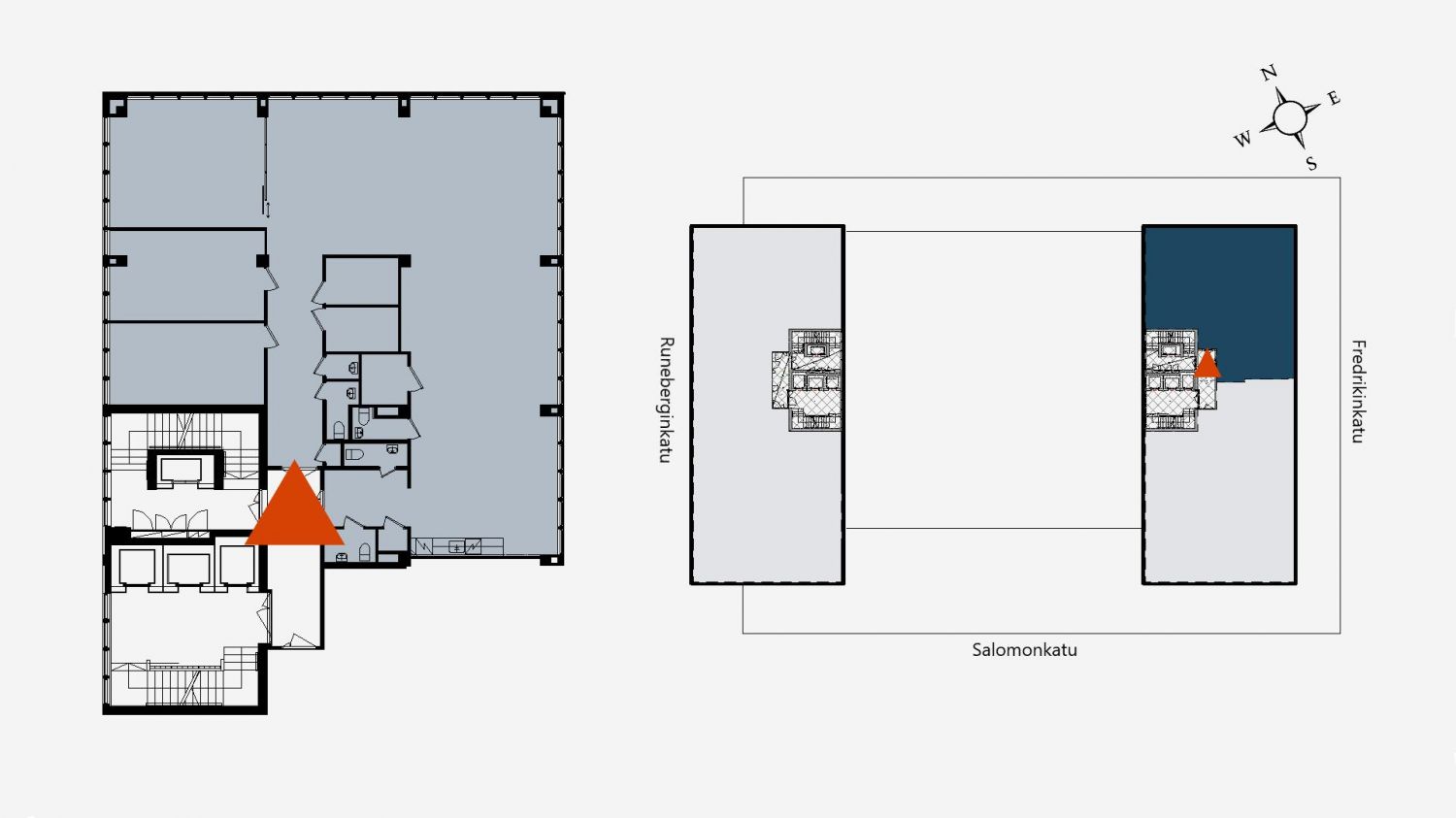
THE MIDDLE (Autotalo) - Toimisto 232 m²
Osoite
Salomonkatu 17, 00100 Helsinki
Tilatyyppi
Toimistotilaa
232 m2
Pohjapiirros
Kiinteistö
Toimisto keskellä Kamppia upein näkymin
Tämä 232 m²:n toimisto on täydellinen valinta pienemmälle tiimille, sillä tilat soveltuvat 10-20 henkilölle. Sijainti keskellä Kamppia tarjoaa loistavat palvelut aivan käden ulottuvilla, mikä tekee arjesta sujuvaa ja vaivatonta. 9. kerroksesta aukeavat upeat näkymät ja tilat ovat modernit, jotka vastaavat vaativimmankin yrityksen tarpeisiin.
Tilassa on avotilaa ja huoneita sekä pikkutiloja, jotka mahdollistavat monipuolisen työskentelyn ja viihtyisän ympäristön lisäten mukavaa vaihtelua ja viihtyisyyttä työpäivään. Tila on mahdollista yhdistää viereisen toimistotilan (308 m²) kanssa.
Tämä toimisto on täydellinen valinta yritykselle, joka haluaa yhdistää toimitilassaan erinomaisen sijainnin, modernit tilat ja monipuoliset palvelut.
Autotalo – Kampin ikoninen maamerkki
Autotalo tarjoaa modernia ja hyväkuntoista toimitilaa sekä ravintolaliiketilaa Helsingin sydämessä. Vuonna 2015 valmistunut perusparannushanke takaa tilojen nykyaikaisuuden ja toimivuuden.
Sijainti
Autotalo on valmistunut vuonna 1958 ja se on osa Kampin Autotalokorttelia. Rakennuksessa on 12 maanpäällistä ja 3 maanalaista kerrosta, jotka tarjoavat monipuoliset tilaratkaisut eri tarpeisiin. Autotalokortteli sijaitsee näkyvällä paikalla Kampin kauppakeskuksen vieressä, ja kohteeseen on erinomaiset julkiset kulkuyhteydet metrolla, raitiovaunulla ja busseilla. Yksityisautoille on maanalaista pysäköintitilaa korttelin omassa autohallissa.
Palvelut
Peruskorjaukset ja parannushankkeet ovat avartaneet tiloja ja tehneet niistä käyttäjilleen avoimempia. Autotalon aulatila on uudistettu näyttäväksi ja viihtyisäksi. Kiinteistö on esteetön ja sopii liikuntarajoitteisille. Upeat edustustilat saunoineen erilaisten tilaisuuksien järjestämiseen sijaitsevat toisen toimistotornin ylimmässä kerroksessa. Monipuolinen ravintolamaailma ja K-kauppa löytyvät katutasosta. Lisäksi kiinteistössä on pyöräparkki suihkuineen, auton pesupalvelut ja sähköautojen latauspisteitä parkkihallissa, mikä tekee työmatkapyöräilystä ja autoilusta entistä mukavampaa.
Ympäristöystävällisyys
Kiinteistön Breeam In-Use -ympäristösertifikaatti tasolla Very Good korostaa kiinteistön ympäristöystävällisyyttä ja korkeaa laatua.
Ota yhteyttä
Kiinnostuitko? Ota yhteyttä ja tule tutustumaan tiloihin!
Toimitilavälityspalvelumme on tilanhakijalle maksuton.
Tämä 232 m²:n toimisto on täydellinen valinta pienemmälle tiimille, sillä tilat soveltuvat 10-20 henkilölle. Sijainti keskellä Kamppia tarjoaa loistavat palvelut aivan käden ulottuvilla, mikä tekee arjesta sujuvaa ja vaivatonta. 9. kerroksesta aukeavat upeat näkymät ja tilat ovat modernit, jotka vastaavat vaativimmankin yrityksen tarpeisiin.
Tilassa on avotilaa ja huoneita sekä pikkutiloja, jotka mahdollistavat monipuolisen työskentelyn ja viihtyisän ympäristön lisäten mukavaa vaihtelua ja viihtyisyyttä työpäivään. Tila on mahdollista yhdistää viereisen toimistotilan (308 m²) kanssa.
Tämä toimisto on täydellinen valinta yritykselle, joka haluaa yhdistää toimitilassaan erinomaisen sijainnin, modernit tilat ja monipuoliset palvelut.
Autotalo – Kampin ikoninen maamerkki
Autotalo tarjoaa modernia ja hyväkuntoista toimitilaa sekä ravintolaliiketilaa Helsingin sydämessä. Vuonna 2015 valmistunut perusparannushanke takaa tilojen nykyaikaisuuden ja toimivuuden.
Sijainti
Autotalo on valmistunut vuonna 1958 ja se on osa Kampin Autotalokorttelia. Rakennuksessa on 12 maanpäällistä ja 3 maanalaista kerrosta, jotka tarjoavat monipuoliset tilaratkaisut eri tarpeisiin. Autotalokortteli sijaitsee näkyvällä paikalla Kampin kauppakeskuksen vieressä, ja kohteeseen on erinomaiset julkiset kulkuyhteydet metrolla, raitiovaunulla ja busseilla. Yksityisautoille on maanalaista pysäköintitilaa korttelin omassa autohallissa.
Palvelut
Peruskorjaukset ja parannushankkeet ovat avartaneet tiloja ja tehneet niistä käyttäjilleen avoimempia. Autotalon aulatila on uudistettu näyttäväksi ja viihtyisäksi. Kiinteistö on esteetön ja sopii liikuntarajoitteisille. Upeat edustustilat saunoineen erilaisten tilaisuuksien järjestämiseen sijaitsevat toisen toimistotornin ylimmässä kerroksessa. Monipuolinen ravintolamaailma ja K-kauppa löytyvät katutasosta. Lisäksi kiinteistössä on pyöräparkki suihkuineen, auton pesupalvelut ja sähköautojen latauspisteitä parkkihallissa, mikä tekee työmatkapyöräilystä ja autoilusta entistä mukavampaa.
Ympäristöystävällisyys
Kiinteistön Breeam In-Use -ympäristösertifikaatti tasolla Very Good korostaa kiinteistön ympäristöystävällisyyttä ja korkeaa laatua.
Ota yhteyttä
Kiinnostuitko? Ota yhteyttä ja tule tutustumaan tiloihin!
Toimitilavälityspalvelumme on tilanhakijalle maksuton.
Vapautuu
Kysy
Kerros
9
Ota yhteyttä
Logistila Oy
Kylätie 11-13, 00320 HELSINKI
Karoliina Turppo
Näytä puhelinnumero
050 345 3258
Pyydä lisätietoa
