Vuokrataan liiketilat - Turku
Aurakatu 3, Keskusta, 20100 Turku #10827722
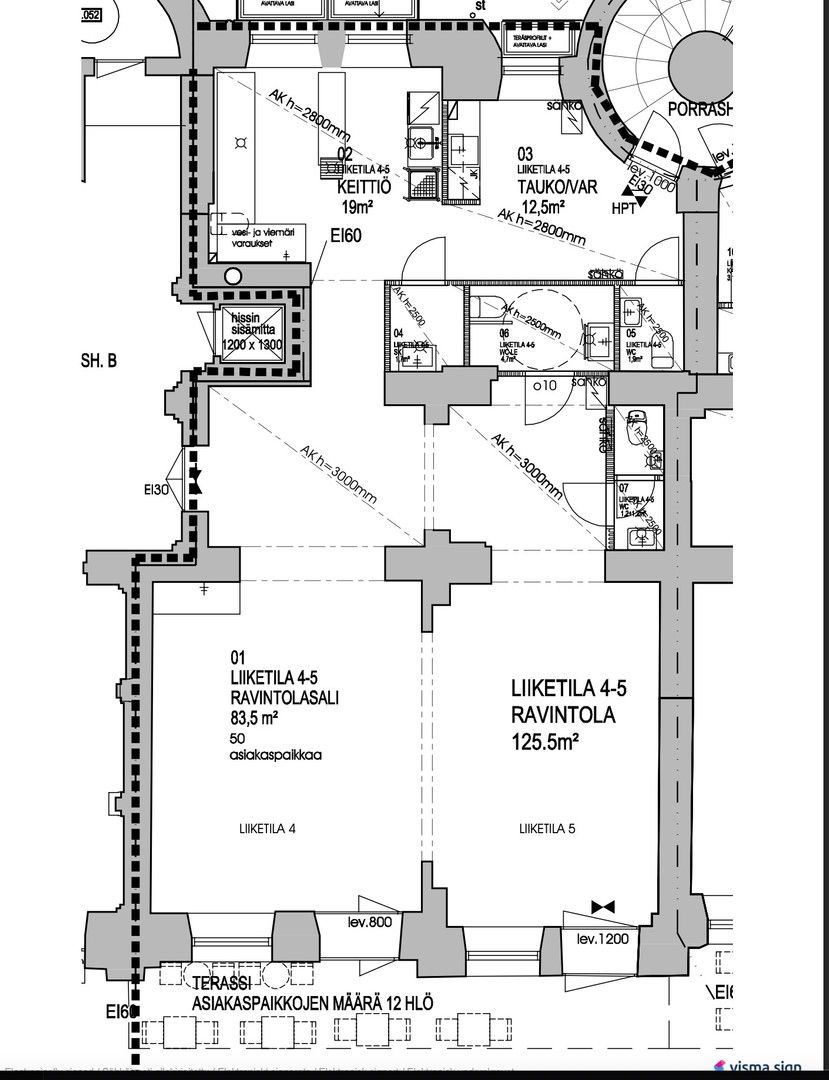
Vuokrataan tilava ja valoisa liiketila Turun keskustassa, Aurakatu 3:ssa. Tämä 126 neliömetrin tila sijaitsee katutasossa ja tarjoaa erinomaiset puitteet monenlaisille liiketoimille.
Tilassa on korkeat huoneet, jotka luovat avaran ja ilmavan tunnelman. Tämä tekee tilasta erityisen houkuttelevan esimerkiksi myymäläksi, kahvilaksi tai toimistoksi. Keskustan keskeinen sijainti takaa hyvät kulkuyhteydet ja runsaan asiakasvirran.
Aurakatu 3:n ympäristö tarjoaa monipuoliset palvelut ja vilkkaan kaupunkielämän, mikä tekee tästä tilasta loistavan paikan yrityksellesi. Tartu tilaisuuteen ja tule tutustumaan tähän upeaan liiketilaan!
Tila sijaitsee erinnomaisela sijainnilla Turun keskustassa . Lähistöllä useita suosittuja ravintoloita.
Tilaa voidaan vuokrata kevyehkäöön ( Lämmityskeittiö ) ravintola käyttöön Mahdollisuus myös terassipaikkoihin !
TILASSA LÄMMITYSKEITTIÖ
Asiakaspaikat 50 + terassi 8
Neliöt 126
Vuokra 11 % liikevaihdosta kuitenkin vähintään 7200 + alv
ASIAKASPAIKKOJA 50 + TERASSILLA 12
TILA SOVELTUU MYÖS MONEEN ERI LIIKETILA KÄYTTÖÖN
Harvoin tarjolla !
Palvelumme on tilahakijalle maksuton !
Tiedustelut ja esittelyt joustavasti Hilla Haaparanta 0445212174, hilla.haaparanta@tsvv.fi
jouko.reijonen@tsvv.fi 0400570098
Turun Seudun Vuokravälitys Oy
Hilla Haaparanta
Vuokravälittäjä LVV
Näytä puhelinnumero
+358445212174
