Vuokrataan toimistotilat - Aura
Ratapihankatu 53, 20100 Aura #10827702
ilava 685 neliömetrin toimistokokonaisuus, joka sijaitsee vilkkaalla alueella Ratapihankadun varrella. Sijainti on katutasossa, ja tila vapautuu viimeistään 31.10.2025.
Osoite
Ratapihankatu 53, 20100 Aura
Tilatyyppi
Toimistotilaa
685 m2
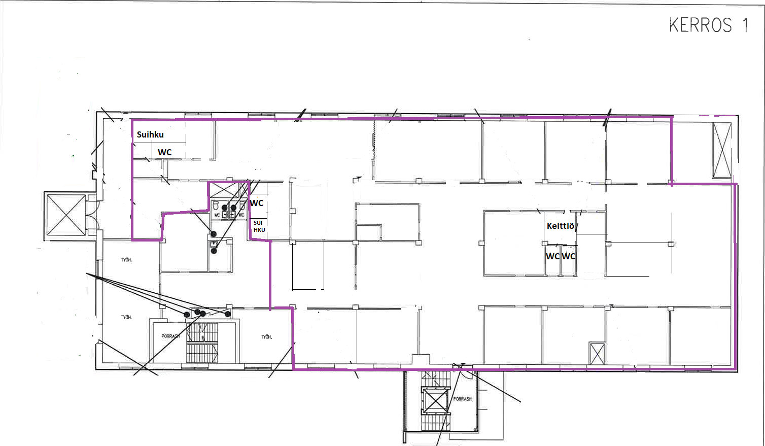
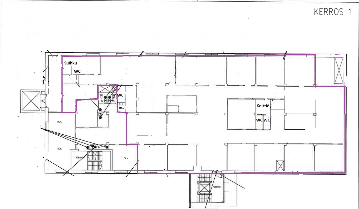
Pohjapiirros
Vuokra
9,48 €/m²/kk
Kiinteistö
Toimisto koostuu useista isoista työhuoneista sekä yhdestä laajemmasta avotilasta, joka soveltuu erinomaisesti esimerkiksi tiimityöskentelyyn tai kokouksiin. Huoneisto ulottuu rakennuksen läpi, mikä tuo luonnonvaloa kahdesta suunnasta – sekä kadulle että sisäpihalle. Kolmessa huoneessa ei kuitenkaan ole ikkunoita.
Tiloista löytyy useampi WC, suihkutila sekä hyvin varusteltu keittiö.Vuokran hintaan sisältyy lisäksi autopaikkoja työntekijämäärän mukaan, mutta paikat eivät ole henkilökohtaisesti varattuja.
Ota yhteyttä
Tiloista löytyy useampi WC, suihkutila sekä hyvin varusteltu keittiö.Vuokran hintaan sisältyy lisäksi autopaikkoja työntekijämäärän mukaan, mutta paikat eivät ole henkilökohtaisesti varattuja.
Ota yhteyttä
Muuta
Lisätietoa kohteesta antaa:
Leo Pohjala
Asset Manager
leo.pohjala@innovestor.fi
+358 45 651 3609
Leo Pohjala
Asset Manager
leo.pohjala@innovestor.fi
+358 45 651 3609
Vapautuu
Kysy
Katutasossa
Ota yhteyttä

Innovestor Real Estate
Vuokraa suoraan omistajalta ilman välikäsiä. Jätä yhteydenottopyyntö – Palaamme sinulle viimeistään 24 h sisällä!
Pyydä lisätietoa