Vuokrataan toimistotilat - Helsinki
Valokaari 10, Suutarila, 00750 Helsinki #10827638
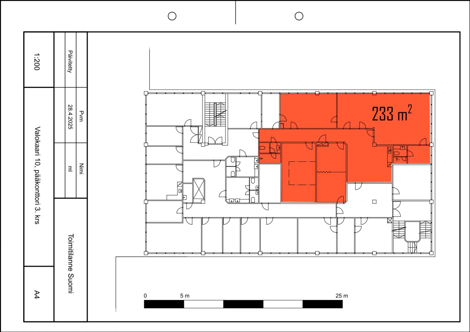
Helsingin Suutarilassa (Valokaari 10) vuokrattavissa ylimmän kerroksen toimistotila 233 m2. Suuret huoneet, keittiö ja oleskelutilaa kattoikkunoin, osassa tiloista jäähdytysmahdollisuus. Kiinteistössä valokuituyhteys.
Lisätiedot ja kohde-esittelyt 020 7290 710, lisää kohteita premises.fi.
Kohteella ei ole lain edellyttämää energiatodistusta tai energialuokka ei tiedossa.Kerros: 3
Osoite
Valokaari 10, 00750 Helsinki
Tilatyyppi
Toimistotilaa
233 m2
Kulkuyhteydet
Kiinteistö sijaitsee alle 10 km päässä Helsinki-Vantaan lentoasemalta.
Ota yhteyttä
CRE PREMISES
Puh. Näytä puhelinnumero 020 7290 710
Vantaankoskentie 14
01670 VANTAA
Pyydä lisätietoa
