Vuokrataan toimistotilat, tuotantotilat, varastotilat - Helsinki
Hankasuontie 9, Konala, 00390 Helsinki #10827629
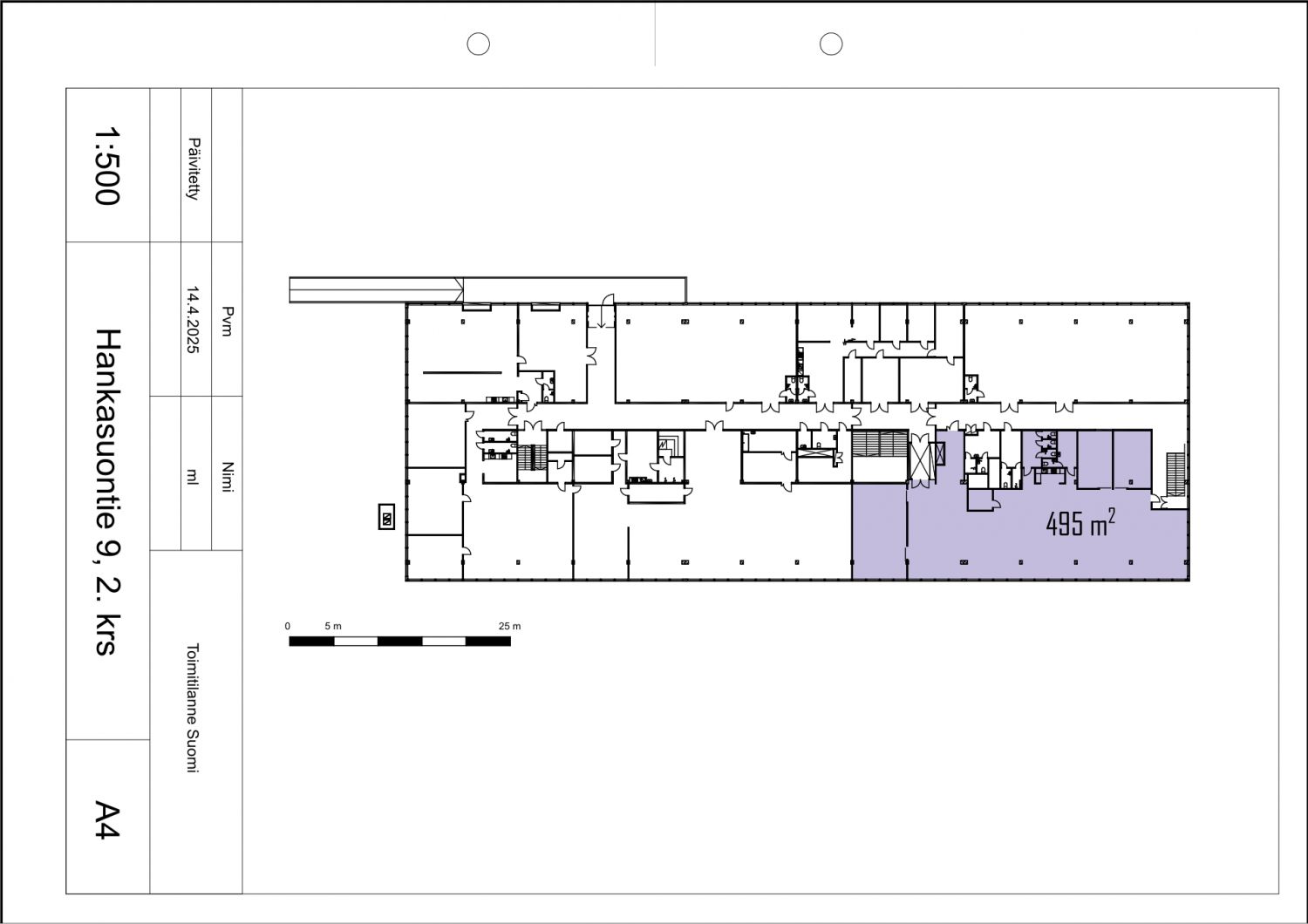
Vuokrataan toimitila, joka sopii erityisesti avokonttoriksi. Hyvät neuvotteluhuoneet. Toimitilassa on jäähdytys. Oma keittiö, wc:t ja pukuhuoneet. Osaa tilasta voi tarvittaessa käyttää varasto- tai tuotantotilana. Tilan korkeus on noin 3 m ja kattoikkunat tuovat lisää valoa. Toiseen kerrokseen johtaa ajoramppi, lisäksi käytettävissä on kiinteistön tavarahissi. Tilaan pääsee myös suoraan tällä hissillä.
Tämä teollisuuskiinteistö on peruskorjattu vuosien 2009 ja 2010 aikana, jolloin uusittiin rakenteiden ja pintojen ohella myös tekniikka. Kohteen tilat soveltuvat mm. metallinkäsittelyyn tai muuhun vastaavaan pienteolliseen toimintaan. Rakennuksessa toimii tällä hetkellä yrityksiä mm. maahantuonnin, tukkukaupan ja kokoonpanon aloilta. Tiloissa on myös koulutustiloja valmiina. Kiinteistössä tavarahissi (3,5 tn) sekä lastauslaituri.
Lisätietoja numerosta 020 7290 710. Lisää kohteita osoitteessa www.premises.fi.
Kohteella ei ole lain edellyttämää energiatodistusta tai energialuokka ei tiedossa.Kerros: 2
CRE PREMISES
Puh. Näytä puhelinnumero 020 7290 710
Vantaankoskentie 14
01670 VANTAA
