Vuokrataan liiketilat, varastotilat - Salo
Helsingintie 5, Keskusta, 24100 Salo #10827617
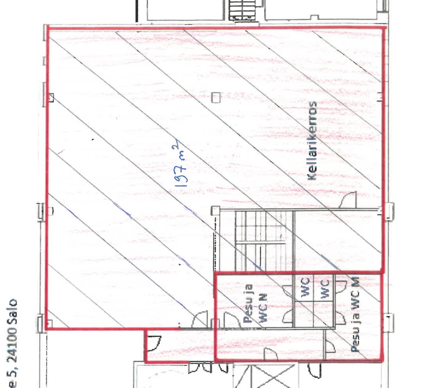
Liikuntatilaa Salon keskustassa. Tilan kellarikerroksessa on toiminut kamppailusali ja katutason tilassa on ollut pieni kuntosali. Tila voidaan vuokrata myös muuhunkin kuin liikuntakäyttöön. Kerrosten välillä kulkee sisäporraskäytävä.
Kiinteistö sijaitsee keskeisellä paikalla Salon keskustassa. Kiinteistön pihalla pysäköintitilaa. Talossa on tavarahissi suurempien tavaroiden liikutteluun.
Osoite
Helsingintie 5, 24100 Salo
Tilatyyppi
Liiketilaa
283 m2
Varastotilaa
283 m2
Yhteensä
283 m2
Vapautuu
Kysy
Huoneiden lukumäärä
1
Energiatehokkuusluokka
Ei lain edellyttämää energiatodistusta
Ota yhteyttä
RHG Real Estate
Hämeenkatu 2 B20, 20500 Turku
Näytä puhelinnumero
020 734 4020
Juho Viljanen
LKV
Näytä puhelinnumero
040 741 7522
Pyydä lisätietoa
