Vuokrataan toimistotilat - Espoo
Länsituuli 1, Tapiola, 02100 Espoo #10827606
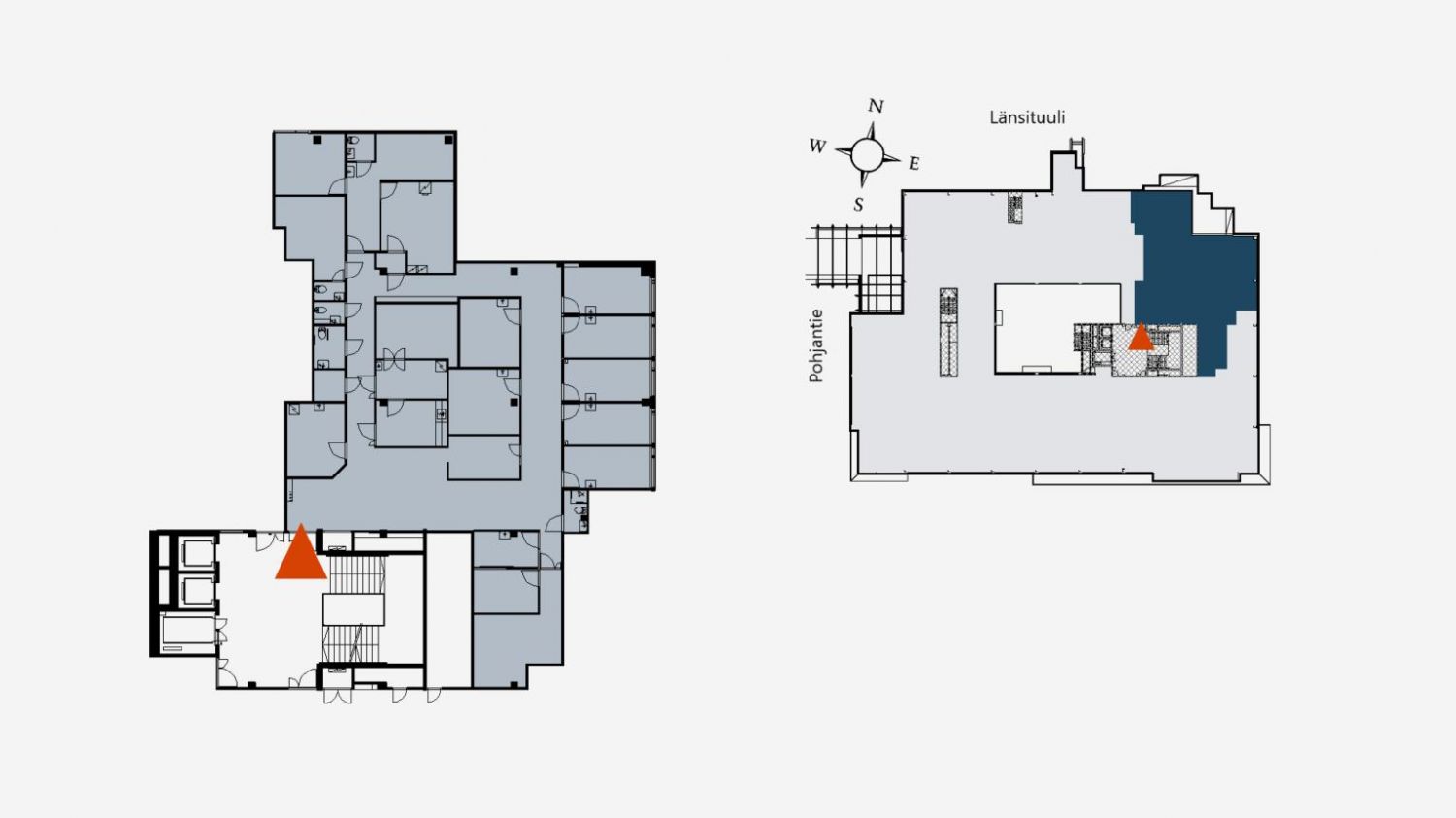
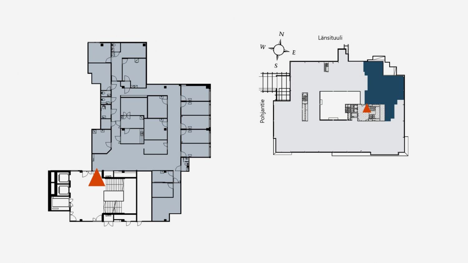
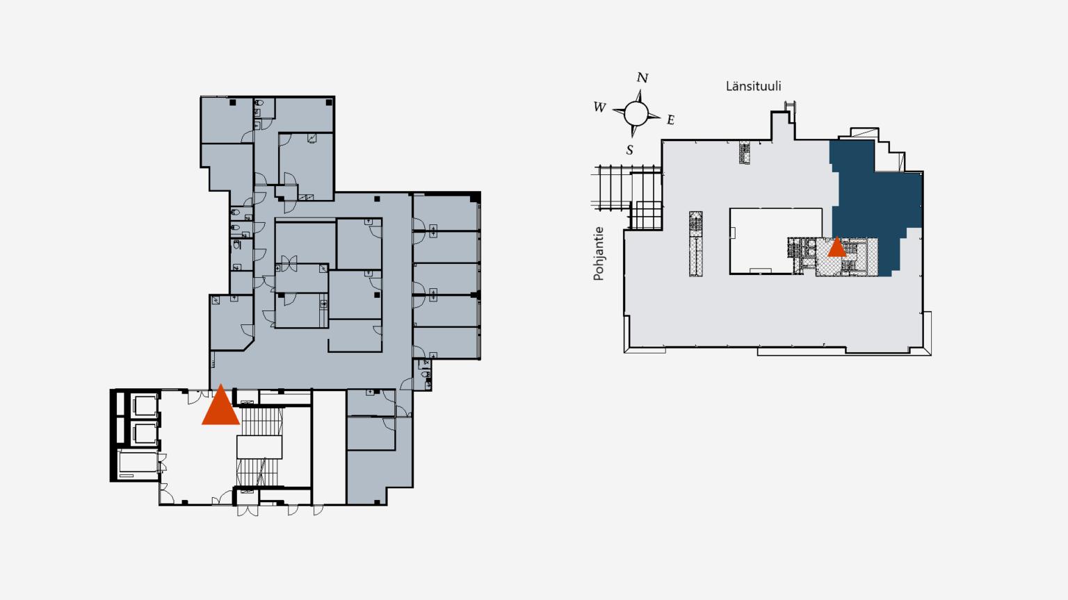
Länsikulma - Toimisto 381 m²
Osoite
Länsituuli 1, 02100 Espoo
Tilatyyppi
Toimistotilaa
381 m2
Pohjapiirros
Kiinteistö
Toimistotila Tapiolan keskuksessa
Tarjolla siistiä, peruskuntoista toimistotilaa, joka on aiemmin ollut lääkäriaseman käytössä. Osassa huoneista on vesipisteet, mikä lisää tilan monikäyttöisyyttä. Tämä tila soveltuu hyvin esimerkiksi väistötilaksi.
Vuokrataan maaliskuun 2026 loppuun saakka.
Terveys- ja hyvinvointipalveluiden keskittymä Tapiolassa
Länsikulma on Espoon Tapiolassa sijaitseva terveys- ja hyvinvointipalveluiden ”hyvän tuulen” talo. Länsikulma sijaitsee Tapiolan keskuksen ytimessä. Kiinteistössä toimivat muun muassa kuntosali ja hammaslääkäriasema, ja vuokrattavissa on saunatilaa. Kellarissa on tarjolla vuokrattavia pienvarastotiloja.
Erinomaiset liikenneyhteydet
Länsikulmaan on erinomaiset julkiset liikenneyhteydet; lähin bussipysäkki on 100 metrin päässä ja metroasemalle on 300 metrin kävelymatka. Lentokentälle hurauttaa autolla alle puolessa tunnissa ja Helsingin keskustaan reilussa kymmenessä minuutissa. Lisäksi kiinteistö on erinomaisen pyörätieverkoston varrella, tuletpa mistä suunnasta tahansa.
Lähellä kaikki palvelut
Lähistöllä kauppakeskus AINOAn monipuoliset palvelut ovat helposti saavutettavissa sujuvoittamaan arkea.
Ota yhteyttä
Kiinnostuitko? Ota yhteyttä ja tule tutustumaan tiloihin!
Toimitilavälityspalvelumme on tilanhakijalle maksuton.
Tarjolla siistiä, peruskuntoista toimistotilaa, joka on aiemmin ollut lääkäriaseman käytössä. Osassa huoneista on vesipisteet, mikä lisää tilan monikäyttöisyyttä. Tämä tila soveltuu hyvin esimerkiksi väistötilaksi.
Vuokrataan maaliskuun 2026 loppuun saakka.
Terveys- ja hyvinvointipalveluiden keskittymä Tapiolassa
Länsikulma on Espoon Tapiolassa sijaitseva terveys- ja hyvinvointipalveluiden ”hyvän tuulen” talo. Länsikulma sijaitsee Tapiolan keskuksen ytimessä. Kiinteistössä toimivat muun muassa kuntosali ja hammaslääkäriasema, ja vuokrattavissa on saunatilaa. Kellarissa on tarjolla vuokrattavia pienvarastotiloja.
Erinomaiset liikenneyhteydet
Länsikulmaan on erinomaiset julkiset liikenneyhteydet; lähin bussipysäkki on 100 metrin päässä ja metroasemalle on 300 metrin kävelymatka. Lentokentälle hurauttaa autolla alle puolessa tunnissa ja Helsingin keskustaan reilussa kymmenessä minuutissa. Lisäksi kiinteistö on erinomaisen pyörätieverkoston varrella, tuletpa mistä suunnasta tahansa.
Lähellä kaikki palvelut
Lähistöllä kauppakeskus AINOAn monipuoliset palvelut ovat helposti saavutettavissa sujuvoittamaan arkea.
Ota yhteyttä
Kiinnostuitko? Ota yhteyttä ja tule tutustumaan tiloihin!
Toimitilavälityspalvelumme on tilanhakijalle maksuton.
Vapautuu
Kysy
Kerros
2
Ota yhteyttä
Logistila Oy
Kylätie 11-13, 00320 HELSINKI
Karoliina Turppo
Näytä puhelinnumero
050 345 3258
Pyydä lisätietoa
