Vuokrataan liiketilat - Espoo
Länsituuli 1, Tapiola, 02100 Espoo #10827605
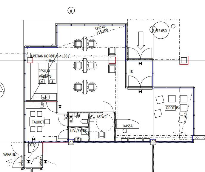
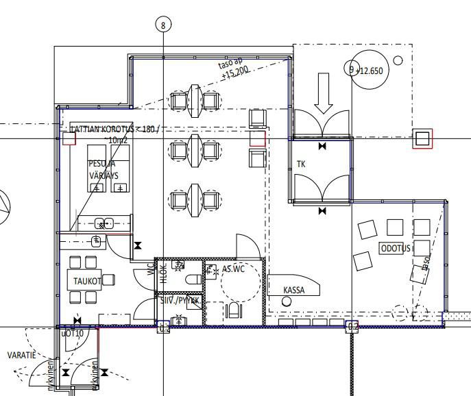
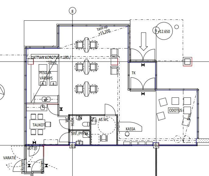
Länsikulma - Liiketila (ent. kampaamo) 117 m²
Osoite
Länsituuli 1, 02100 Espoo
Tilatyyppi
Liiketilaa
117 m2
Pohjapiirros
Kiinteistö
Katutason liiketila Tapiolan keskuksessa
Tarjolla katutason liiketila, joka on toiminut kampaamona. Tilassa on runsaasti ikkunapinta-alaa ja se on erinomaisesti saavutettavissa. Osassa tilaa on poikkeuksellisen hyvä tilakorkeus. Keskeinen sijainti Tapiolan keskuksessa tekee tästä tilasta houkuttelevan vaihtoehdon monenlaisille liiketoiminnoille.
Alueella käynnissä olevat kiinteistökehityshankkeet tuovat lisää elinvoimaa ympäristöön, ja tila on vuokrattavissa ainakin maaliskuun 2026 loppuun saakka.
Terveys- ja hyvinvointipalveluiden keskittymä Tapiolassa
Länsikulma on Espoon Tapiolassa sijaitseva terveys- ja hyvinvointipalveluiden ”hyvän tuulen” talo. Länsikulma sijaitsee Tapiolan keskuksen ytimessä. Kiinteistössä toimivat muun muassa kuntosali ja hammaslääkäriasema, ja vuokrattavissa on saunatilaa. Kellarissa on tarjolla vuokrattavia pienvarastotiloja.
Erinomaiset liikenneyhteydet
Länsikulmaan on erinomaiset julkiset liikenneyhteydet; lähin bussipysäkki on 100 metrin päässä ja metroasemalle on 300 metrin kävelymatka. Lentokentälle hurauttaa autolla alle puolessa tunnissa ja Helsingin keskustaan reilussa kymmenessä minuutissa. Lisäksi kiinteistö on erinomaisen pyörätieverkoston varrella, tuletpa mistä suunnasta tahansa.
Lähellä kaikki palvelut
Lähistöllä kauppakeskus AINOAn monipuoliset palvelut ovat helposti saavutettavissa sujuvoittamaan arkea.
Ota yhteyttä
Kiinnostuitko? Ota yhteyttä ja tule tutustumaan tiloihin!
Toimitilavälityspalvelumme on tilanhakijalle maksuton.
Tarjolla katutason liiketila, joka on toiminut kampaamona. Tilassa on runsaasti ikkunapinta-alaa ja se on erinomaisesti saavutettavissa. Osassa tilaa on poikkeuksellisen hyvä tilakorkeus. Keskeinen sijainti Tapiolan keskuksessa tekee tästä tilasta houkuttelevan vaihtoehdon monenlaisille liiketoiminnoille.
Alueella käynnissä olevat kiinteistökehityshankkeet tuovat lisää elinvoimaa ympäristöön, ja tila on vuokrattavissa ainakin maaliskuun 2026 loppuun saakka.
Terveys- ja hyvinvointipalveluiden keskittymä Tapiolassa
Länsikulma on Espoon Tapiolassa sijaitseva terveys- ja hyvinvointipalveluiden ”hyvän tuulen” talo. Länsikulma sijaitsee Tapiolan keskuksen ytimessä. Kiinteistössä toimivat muun muassa kuntosali ja hammaslääkäriasema, ja vuokrattavissa on saunatilaa. Kellarissa on tarjolla vuokrattavia pienvarastotiloja.
Erinomaiset liikenneyhteydet
Länsikulmaan on erinomaiset julkiset liikenneyhteydet; lähin bussipysäkki on 100 metrin päässä ja metroasemalle on 300 metrin kävelymatka. Lentokentälle hurauttaa autolla alle puolessa tunnissa ja Helsingin keskustaan reilussa kymmenessä minuutissa. Lisäksi kiinteistö on erinomaisen pyörätieverkoston varrella, tuletpa mistä suunnasta tahansa.
Lähellä kaikki palvelut
Lähistöllä kauppakeskus AINOAn monipuoliset palvelut ovat helposti saavutettavissa sujuvoittamaan arkea.
Ota yhteyttä
Kiinnostuitko? Ota yhteyttä ja tule tutustumaan tiloihin!
Toimitilavälityspalvelumme on tilanhakijalle maksuton.
Vapautuu
Kysy
Kerros
1
Ota yhteyttä
LogisTila Oy
Kylätie 11-13, 00320 HELSINKI
Karoliina Turppo
Näytä puhelinnumero
050 345 3258
Pyydä lisätietoa
