Vuokrataan liiketilat - Helsinki
Unioninkatu 15, Kaartinkaupunki, 00130 Helsinki #10827563
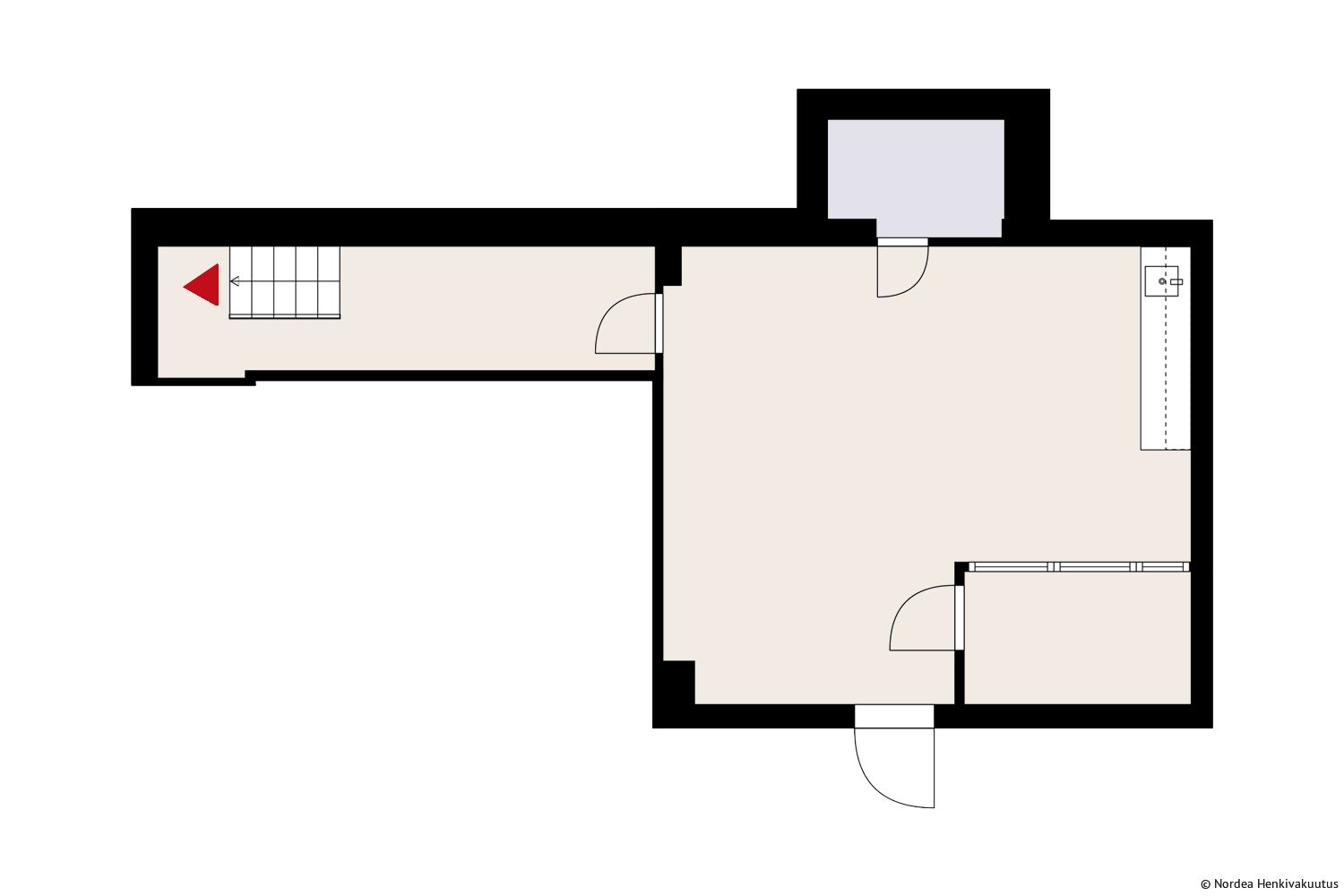
Vuokrataan katutason liiketila Helsingin keskustassa, kauppatorin kupeessa. Tila koostuu 32 m² liiketilasta sekä 46 m² varastosta, johon yhteys sisärappusilla. Liiketila sijaitsee Unioninkadun puolella. Sopii myös toimistotilaksi. Ei sovellu ravintolaksi. Ota yhteyttä ja kysy lisää!
Kiinteistö on BREEAM In-Use Good -sertifioitu. Nordea Henkivakuutus Suomi Oy:n omistamissa kiinteistössä käytetään vihreää kiinteistösähköä.
Katutasossa
Nordea Henkivakuutus Suomi Oy
Aleksis Kiven katu 9, Helsinki 00020 NORDEA
Soili Nevalainen
Näytä puhelinnumero
050 364 0586
Nordea Henkivakuutus Suomi Oy vuokraa toimitiloja omistamistaan ja hallinnoimistaan sijoituskiinteistöistä pääkaupunkiseudulla. Toimitilavuokrauksessa Nordea Henkivakuutuksen yhteistyökumppani on Newsec Asset Management.
http://nordeahenkivakuutustoimitilat.fi