Kohteesta ei kuvia
Vuokrataan toimistotilat - Helsinki
Pohjoisesplanadi 35, Keskusta (Helsinki), 00100 Helsinki #10827489
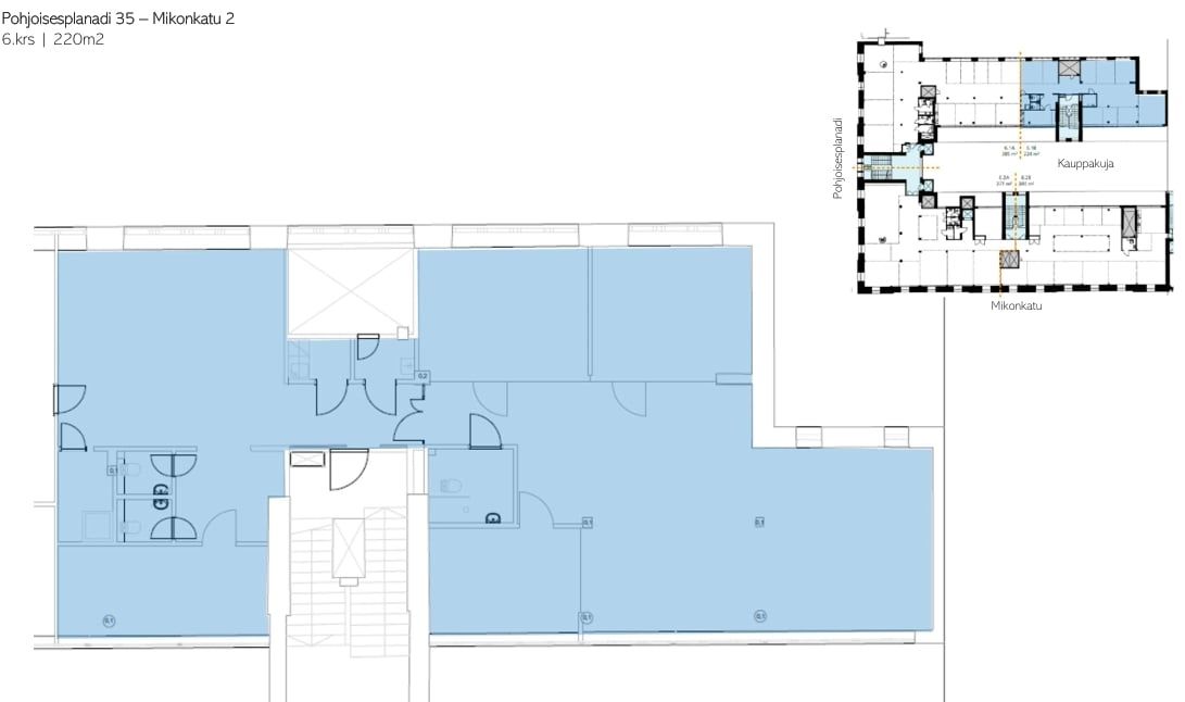
Ylimmän kerroksen tyylikäs toimistohuoneisto tarjoaa ainutlaatuisen yhdistelmän historiaa ja modernia toimivuutta Helsingin paraatipaikalla – Esplanadin puiston laidalla. Huoneisto on juuri valmistunut laajasta peruskorjauksesta, ja sen ajaton arkkitehtuuri yhdistyy huipputason toimitilaratkaisuihin. Tilat ovat valoisat, tunnelmalliset ja samalla tehokkaat – täydellisesti nykyaikaisen yrityksen tarpeisiin mitoitettu. Tilat koostuvat niin avotyötilasta kuin myös työ- ja neuvotteluhuoneista. Lisäksi tilasta löytyy siistit wc-tilat ja moderni keittiö.
Kyseessä on historiallisesti merkittävä rakennus vuodelta 1888, jonka on suunnitellut arkkitehti K.A. Wrede. Kiinteistö on olennainen osa Helsingin keskustan rakennushistoriaa ja sijaitsee Gaselli-korttelin eteläpäässä, Pohjoisesplanadin ja Mikonkadun kulmassa – keskeisellä ja arvostetulla paikalla.
Sijainti on erinomainen myös saavutettavuuden kannalta: kaikki julkisen liikenteen yhteydet ovat lyhyen kävelymatkan päässä, ja autoilijoita palvelee Kluuvin pysäköintihalli, johon pääsee sujuvasti Kaisaniemen tai Fabianinkadun kautta.
Me Croisettella autamme teitä löytämään teille parhaat tilat! Olemme puolueettomia asiantuntijoita ja tunnemme toimitilamarkkinat, talot sekä tilat vankalla kokemuksella. Meillä on välityksessä kaikki toimitilat ja tiedämme niiden alustavat vuokratasot.
Tehtävämme on tehdä toimitilahaustanne onnistunut ja helppo. Saamme palkkiomme kiinteistönomistajalta, joten sinulle palvelumme on täysin maksuton.
Hissi
Croisette Real Estate Partner
Erottajankatu 5 A 6, 00130 Helsinki
Näytä puhelinnumero
+358 400 585 857
Croisette Vuokraus
Näytä puhelinnumero
+358400585857
