Vuokrataan toimistotilat - Helsinki
Pieni Roobertinkatu 11, Kaartinkaupunki, 00130 Helsinki #10827479
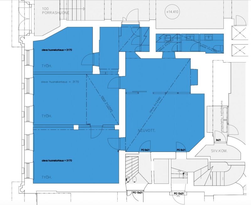
Siisti 113,5 m² toimisto hyvällä sijainnilla Helsingin keskustassa
Osoite
Pieni Roobertinkatu 11, 00130 Helsinki
Tilatyyppi
Toimistotilaa
113,5 m2
Pohjapiirros
Kiinteistö
Huonetoimisto arkkitehtuurisen talon ensimmäisestä kerroksesta, josta näkymät Pieni Roobertinkadulle.
Ensimmäinen kerros on korotettu katutasosta. Tila on heti vapaa ja se kunnostetaan uuden vuokralaisen tarpeiden mukaisesti.
Ensimmäinen kerros on korotettu katutasosta. Tila on heti vapaa ja se kunnostetaan uuden vuokralaisen tarpeiden mukaisesti.
Vapautuu
Heti
Kerros
1 / 5
Energiatehokkuusluokka
D
Näkyvällä paikalla
Hissi
Ota yhteyttä
ScanReal Oy LKV
Opus Business Park
Hitsaajankatu 24
00810 Helsinki
info@scanreal.fi
Puh:
Näytä puhelinnumero
020 730 8830
Sopivat toimitilat yhdellä otolla!
Kartoitamme toimitilatarpeesi ja etsimme yrityksellesi parhaiten sopivat vapaat toimitilat. Koska vuokranantajat maksavat palvelumme, on tämä yrityksellesi veloituksetonta.
OTA YHTEYTTÄ - SOVI NÄYTTÖ!
Kaikki kohteemme eivät ole netissä, kerro tilatarpeesi niin kartoitamme vaihtoehdot.
Palvelumme on tilanhakijalle ilmainen
Pyydä lisätietoa
