Vuokrataan toimistotilat - Helsinki
Panimokatu 2 A, Kalasatama, 00580 Helsinki #10827447
TROOLI - Toimisto 786 m²
Osoite
Panimokatu 2 A, 00580 Helsinki
Tilatyyppi
Toimistotilaa
786 m2
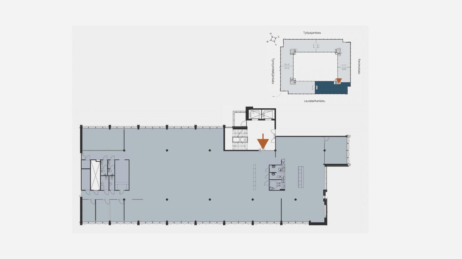
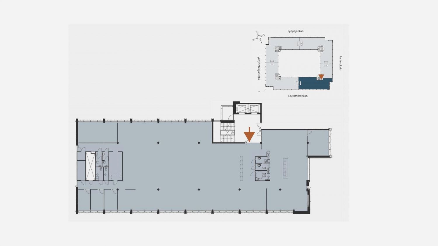
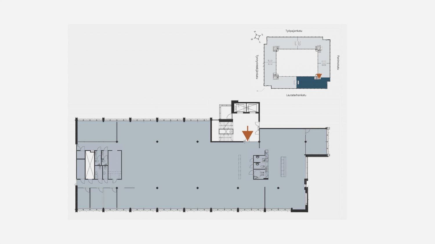
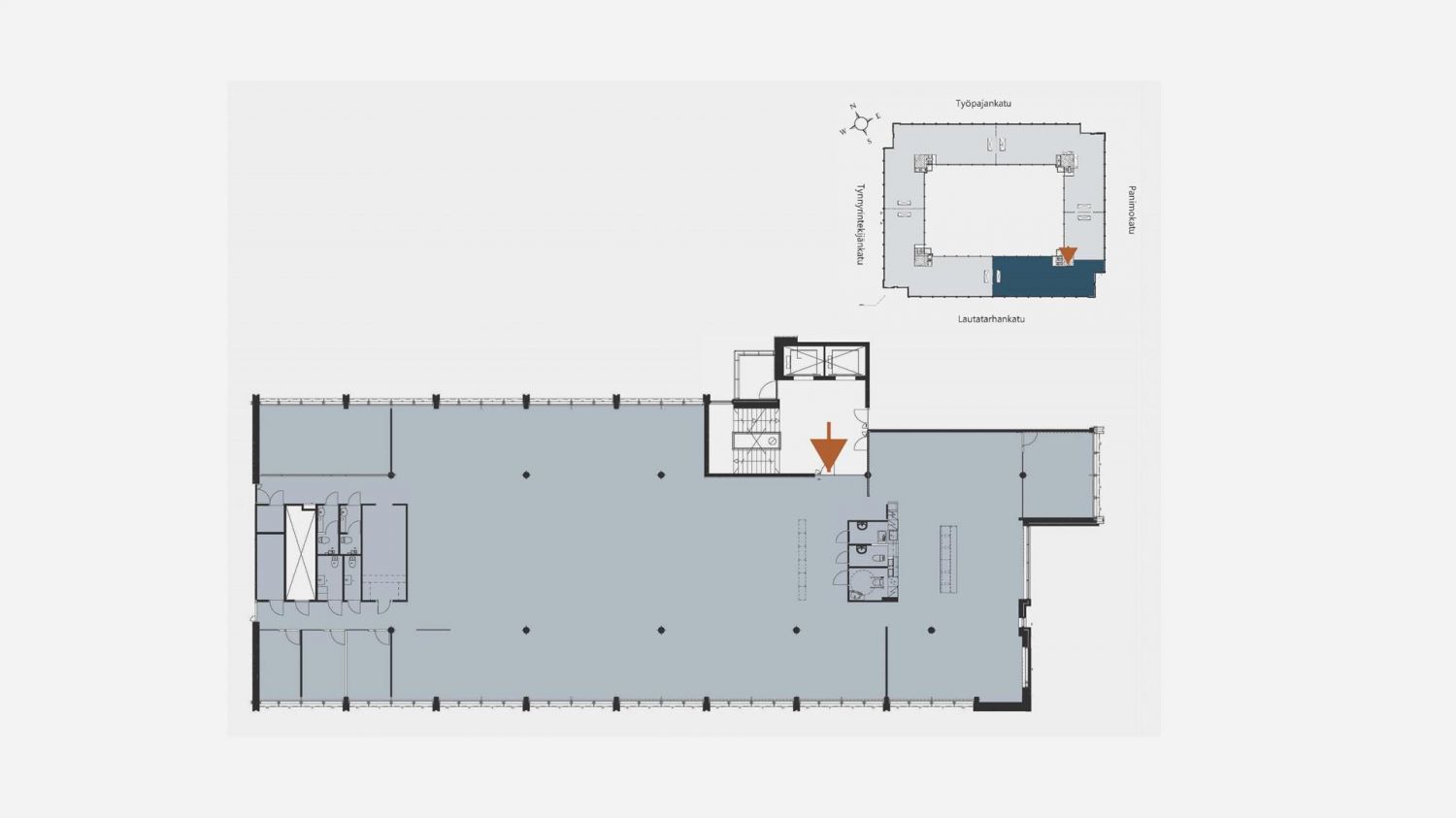
Pohjapiirros
Kiinteistö
Vuokrattavana upea ja valoisa toimistotila Troolissa
Tervetuloa tutustumaan tähän Troolin A-rapun kolmannessa kerroksessa sijaitsevaan moderniin toimistotilaan, joka on täysin remontoitu vuonna 2019. Tämä avara ja valoisa toimitila tarjoaa loistavat puitteet 60–100 hengen työskentelylle.
Toimistotila koostuu pääosin avotilasta, joka luo inspiroivan ja tehokkaan työympäristön. Tilassa on hieno aula ja tyylikäs keittiö, jotka tuovat lisämukavuutta työpäivään. Lisäksi käytössäsi on monipuoliset neuvotteluhuoneet, joiden kapasiteetti vaihtelee pienistä työpalavereista aina 15 hengen kokouksiin.
Toimistotilan pinta-ala on 786 m², joka sisältää jyvityksen 20,5 m² yhteiskäyttöisestä aulatilasta.
Ikkunoista avautuvat upeat näkymät Suvilahteen ja kiinteistön sisäpihalle, tuoden runsaasti luonnonvaloa tilaan.
TROOLI - Modernia toimitilaa Kalasataman ja Teurastamon solmukohdassa
Erinomainen sijainti ja modernit tilat
Kalasataman Trooli on moderni toimistokortteli trendikkäällä alueella, vain muutaman minuutin kävelymatkan päässä metroasemalta. Troolia on uudistettu vuosien 2023-2024 aikana, ja se tarjoaa käyttäjilleen tasokkaat tilat ja monipuoliset palvelut kuten hienon sisäpihan, remontoidut sauna- ja suihkutilat ja kutsuvat sisäänkäynnit. Alueella on erinomaiset kulkuyhteydet ja laajasti palveluita lähiympäristössä.
Trooli koostuu kolmesta kiinteistöstä, jotka tarjoavat edustavat, nykyaikaiset ja joustavat tilat sekä hyvät tekniset valmiudet. Tilat ovat korkealaatuiset ja muuntojoustavat, sopien yhdelle isolle tai useammalle käyttäjälle.
Trooli sopii monien erilaisten toimialojen yrityksille - kiinteistössä viihtyy mm. rahoitus-, matkailu-, kiinteistö-, suunnittelu-, kuljetus-, kierrätys-, media- ja IT-alojen sekä julkisen alan toimijoita.
Tilaa kasvaa ja menestyä
Trooli-korttelissa on saatavilla moderneja ja muunneltavia toimistotiloja, joiden koot vaihtelevat 150 – 5000 m². Tilat ovat joustavasti räätälöitävissä yrityksesi tarpeiden mukaan, ja ne sopivat erinomaisesti niin pienille kuin suurille tiimeille.
Etsitkö kompaktia toimitilaa kasvavalle yrityksellesi vai laajaa kokonaisuutta suurelle organisaatiolle? Trooli tarjoaa monipuoliset ratkaisut, jotka mukautuvat juuri sinun liiketoimintasi tarpeisiin. Löydä yrityksellesi täydellinen tila!
Monipuoliset palvelut
Kiinteistössä on aulapalvelu, vuokrattavia neuvottelutiloja, lounasravintola ja catering, tilava pyöräparkki huoltopisteineen, autohalli autonpesumahdollisuuksineen ja kuntosali liikuntatiloineen sekä hierontapalveluineen. Kellarikerroksessa on vuokrattavissa pienvarastotilaa.
Troolin omien palveluiden lisäksi läheisyydessä on runsaasti ravintoloita, pientuottajia ja tapahtumia tarjoava Teurastamon alue sekä Kauppakeskus REDI. Metroasema on vain muutaman sadan metrin päässä, ja alueella on hyvät bussiyhteydet ja pyörätiet. Kiinteistössä on myös parkkihalli sähköautojen latauspisteineen.
Ympäristöystävällisyys
Trooli on ympäristöystävällinen ja energiatehokas kohde, jolla on LEED-sertifikaatit. Sertifikaatit mittaavat mm. rakennuksen energia- ja materiaalitehokkuutta, vedenkäyttöä ja sisäolosuhteita. Tilamuutostöissä suositaan paikallisia ja kierrätettyjä materiaaleja sekä haitallisten päästöjen minimointia.
Ota yhteyttä
Kiinnostuitko? Ota yhteyttä ja tule tutustumaan tiloihin!
Toimitilavälityspalvelumme on tilanhakijalle maksuton.
Tervetuloa tutustumaan tähän Troolin A-rapun kolmannessa kerroksessa sijaitsevaan moderniin toimistotilaan, joka on täysin remontoitu vuonna 2019. Tämä avara ja valoisa toimitila tarjoaa loistavat puitteet 60–100 hengen työskentelylle.
Toimistotila koostuu pääosin avotilasta, joka luo inspiroivan ja tehokkaan työympäristön. Tilassa on hieno aula ja tyylikäs keittiö, jotka tuovat lisämukavuutta työpäivään. Lisäksi käytössäsi on monipuoliset neuvotteluhuoneet, joiden kapasiteetti vaihtelee pienistä työpalavereista aina 15 hengen kokouksiin.
Toimistotilan pinta-ala on 786 m², joka sisältää jyvityksen 20,5 m² yhteiskäyttöisestä aulatilasta.
Ikkunoista avautuvat upeat näkymät Suvilahteen ja kiinteistön sisäpihalle, tuoden runsaasti luonnonvaloa tilaan.
TROOLI - Modernia toimitilaa Kalasataman ja Teurastamon solmukohdassa
Erinomainen sijainti ja modernit tilat
Kalasataman Trooli on moderni toimistokortteli trendikkäällä alueella, vain muutaman minuutin kävelymatkan päässä metroasemalta. Troolia on uudistettu vuosien 2023-2024 aikana, ja se tarjoaa käyttäjilleen tasokkaat tilat ja monipuoliset palvelut kuten hienon sisäpihan, remontoidut sauna- ja suihkutilat ja kutsuvat sisäänkäynnit. Alueella on erinomaiset kulkuyhteydet ja laajasti palveluita lähiympäristössä.
Trooli koostuu kolmesta kiinteistöstä, jotka tarjoavat edustavat, nykyaikaiset ja joustavat tilat sekä hyvät tekniset valmiudet. Tilat ovat korkealaatuiset ja muuntojoustavat, sopien yhdelle isolle tai useammalle käyttäjälle.
Trooli sopii monien erilaisten toimialojen yrityksille - kiinteistössä viihtyy mm. rahoitus-, matkailu-, kiinteistö-, suunnittelu-, kuljetus-, kierrätys-, media- ja IT-alojen sekä julkisen alan toimijoita.
Tilaa kasvaa ja menestyä
Trooli-korttelissa on saatavilla moderneja ja muunneltavia toimistotiloja, joiden koot vaihtelevat 150 – 5000 m². Tilat ovat joustavasti räätälöitävissä yrityksesi tarpeiden mukaan, ja ne sopivat erinomaisesti niin pienille kuin suurille tiimeille.
Etsitkö kompaktia toimitilaa kasvavalle yrityksellesi vai laajaa kokonaisuutta suurelle organisaatiolle? Trooli tarjoaa monipuoliset ratkaisut, jotka mukautuvat juuri sinun liiketoimintasi tarpeisiin. Löydä yrityksellesi täydellinen tila!
Monipuoliset palvelut
Kiinteistössä on aulapalvelu, vuokrattavia neuvottelutiloja, lounasravintola ja catering, tilava pyöräparkki huoltopisteineen, autohalli autonpesumahdollisuuksineen ja kuntosali liikuntatiloineen sekä hierontapalveluineen. Kellarikerroksessa on vuokrattavissa pienvarastotilaa.
Troolin omien palveluiden lisäksi läheisyydessä on runsaasti ravintoloita, pientuottajia ja tapahtumia tarjoava Teurastamon alue sekä Kauppakeskus REDI. Metroasema on vain muutaman sadan metrin päässä, ja alueella on hyvät bussiyhteydet ja pyörätiet. Kiinteistössä on myös parkkihalli sähköautojen latauspisteineen.
Ympäristöystävällisyys
Trooli on ympäristöystävällinen ja energiatehokas kohde, jolla on LEED-sertifikaatit. Sertifikaatit mittaavat mm. rakennuksen energia- ja materiaalitehokkuutta, vedenkäyttöä ja sisäolosuhteita. Tilamuutostöissä suositaan paikallisia ja kierrätettyjä materiaaleja sekä haitallisten päästöjen minimointia.
Ota yhteyttä
Kiinnostuitko? Ota yhteyttä ja tule tutustumaan tiloihin!
Toimitilavälityspalvelumme on tilanhakijalle maksuton.
Vapautuu
Kysy
Kerros
3
Ota yhteyttä
Logistila Oy
Kylätie 11-13, 00320 HELSINKI
Karoliina Turppo
Näytä puhelinnumero
050 345 3258
Pyydä lisätietoa
