Vuokrataan toimistotilat, työtilat - Helsinki
Halmetie 7, Tapanila, 00730 Helsinki #10827370
Toimistotila Tapanilassa moneen käyttöön! Kuukausivuokrahinta 249 €/kk, alv-vapaa tila
Osoite
Halmetie 7, 00730 Helsinki
Tilatyyppi
Toimistotilaa
14 m2
Työtilaa
14 m2
Yhteensä
14 m2
Virtuaaliesittely
Vuokra
249 €/kk, alv-vapaa
Vuokraan sisältyy lämpö
Muuta
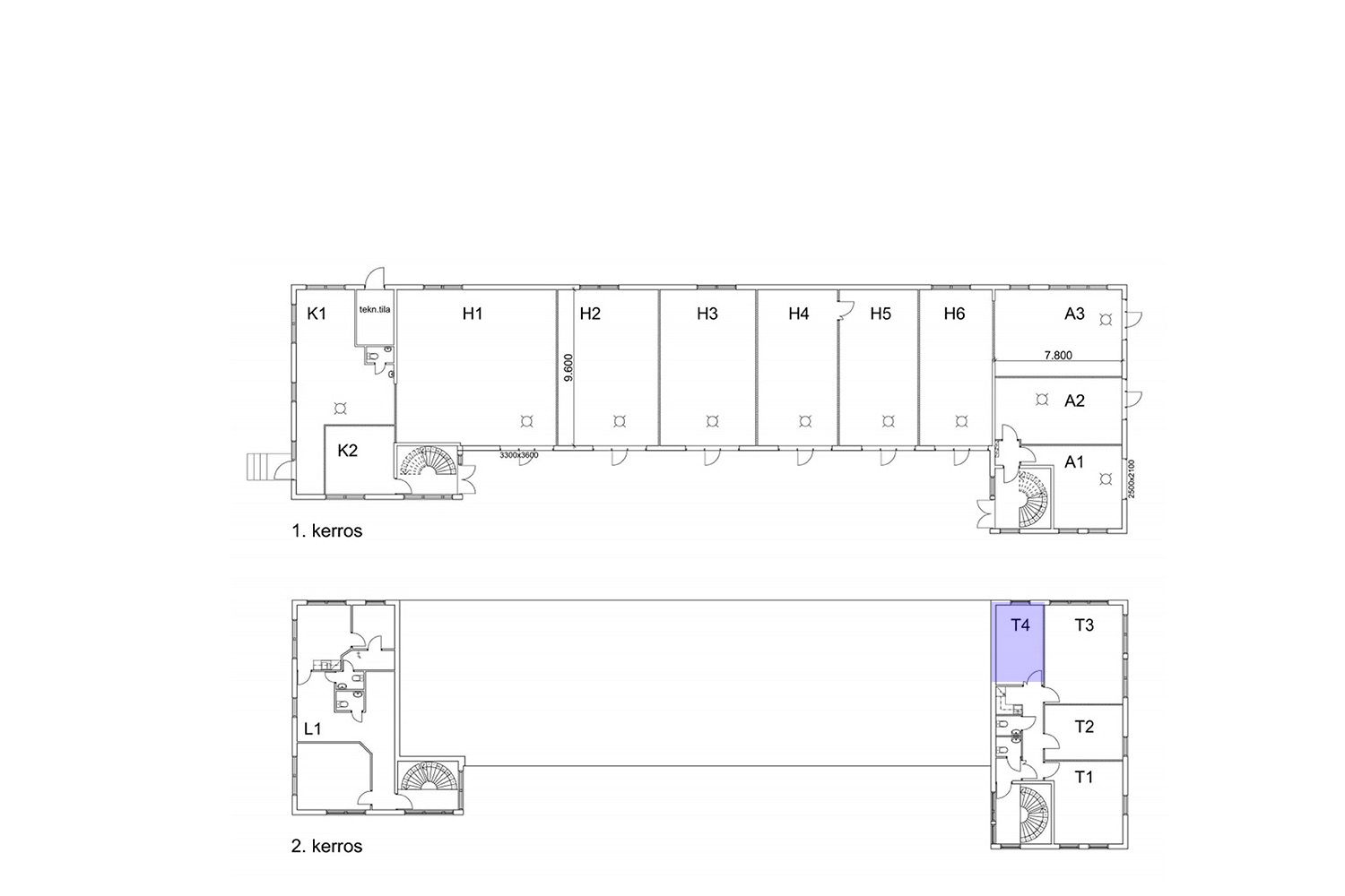
Hyväkuntoinen toimistotila (pohjakuvassa T4) vuokrattavissa Tapanilasta.
Tila voidaan vuokrata myös yksityishenkilöille eli vuokra on arvonlisäverovapaa vuokra. Toimisto sijaitsee rakennuksen toisessa kerroksessa. Tiloissa on yhteinen keittiö ja wc.
Rakennus sijaitsee hyvien kulkuyhteyksien päässä; sekä Kehä ykköselle, Kehä kolmoselle, Tuusulanväylälle että Lahdenväylälle on vain parin kolmen kilometrin matka.
Hyvä toimisto vuokrattavana!
Kohdetiedot
Sijainti
Katuosoite: Halmetie 7, 00730 Helsinki
Kaupunginosa: Tapanila
Ympäristö: Teollisuus- ja asuinaluetta
Tontti
Pinta-ala: 1’527 m²
Omistusmuoto: Vuokratontti (sopimus voimassa 31.12.2040 asti)
Kiinteistötunnus: 91-39-124-16
Rakennus/huoneisto
Pinta-ala: Noin 14 m²
Rakennustyyppi: Hallirakennus
Rakennusvuosi: 1989
Huoneistoselitelmä: Toimistotila
Hissi: Ei
Kerros: 2/2
Lämmitys: Ilmakeskuslämmitys
Kunto, varusteet ja palvelut: Uudenveroiset, peruskorjatut tilat
Energiatodistus: Ei lain edellyttämää todistusta
Vapautuu: Heti vapaa
Pysäköinti: Pihalla
Vuokrahinta ja kulut
Kuukausivuokra: 249 €/kk, alv-vapaa
Sähkö- ja vesimaksu: Mittauksen mukaan
Lämmitys: Sisältyy vuokraan
Muuta: Vakuus 3kk vuokraa vastaava summa, minimisopimus 12kk ja luottotietojen on oltava kunnossa
Tila voidaan vuokrata myös yksityishenkilöille eli vuokra on arvonlisäverovapaa vuokra. Toimisto sijaitsee rakennuksen toisessa kerroksessa. Tiloissa on yhteinen keittiö ja wc.
Rakennus sijaitsee hyvien kulkuyhteyksien päässä; sekä Kehä ykköselle, Kehä kolmoselle, Tuusulanväylälle että Lahdenväylälle on vain parin kolmen kilometrin matka.
Hyvä toimisto vuokrattavana!
Kohdetiedot
Sijainti
Katuosoite: Halmetie 7, 00730 Helsinki
Kaupunginosa: Tapanila
Ympäristö: Teollisuus- ja asuinaluetta
Tontti
Pinta-ala: 1’527 m²
Omistusmuoto: Vuokratontti (sopimus voimassa 31.12.2040 asti)
Kiinteistötunnus: 91-39-124-16
Rakennus/huoneisto
Pinta-ala: Noin 14 m²
Rakennustyyppi: Hallirakennus
Rakennusvuosi: 1989
Huoneistoselitelmä: Toimistotila
Hissi: Ei
Kerros: 2/2
Lämmitys: Ilmakeskuslämmitys
Kunto, varusteet ja palvelut: Uudenveroiset, peruskorjatut tilat
Energiatodistus: Ei lain edellyttämää todistusta
Vapautuu: Heti vapaa
Pysäköinti: Pihalla
Vuokrahinta ja kulut
Kuukausivuokra: 249 €/kk, alv-vapaa
Sähkö- ja vesimaksu: Mittauksen mukaan
Lämmitys: Sisältyy vuokraan
Muuta: Vakuus 3kk vuokraa vastaava summa, minimisopimus 12kk ja luottotietojen on oltava kunnossa
Vapautuu
Heti
Rakennusvuosi
1989
Kerros
2 / 2
Huoneiden lukumäärä
1
Ota yhteyttä
Tilat.fi
KTM, LKV Antti Soivio
Näytä puhelinnumero
0400 446 553
OTM, LKV Riikka Tuominen
Näytä puhelinnumero
0400 551 790
KTM, LKV Maria-Sofia Puhakka
Näytä puhelinnumero
0400-150330
HTM, LKV Aleksandra Riki
Näytä puhelinnumero
0400-211288
LKV Tilat.fi Oy on toimitilojen välitykseen erikoistunut yritys.
http://www.tilat.fiPyydä lisätietoa
