Vuokrataan toimistotilat - Helsinki
Kuparitalo, Töölönkatu 4, Etu-Töölö, 00100 Helsinki #10827304
Vuokrattavana tyylikästä, valoisaa toimistotilaa, josta avautuu upeat näköalat joka suuntaan.
Osoite
Töölönkatu 4, 00100 Helsinki
Tilatyyppi
Toimistotilaa
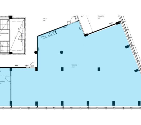
223,5 m2
Kiinteistö
Eduskuntatalon vieressä vuokrattavana tyylikästä, valoisaa toimistotilaa, josta avautuu upeat näköalat joka suuntaan. Kiinteistössä kaukolämpö, koneellinen ilmanvaihto ja jäähdytys.
Sijainti
Etu-Töölö, Helsinki
Pysäköinti
5 autohallipaikkaa, 14 pihapaikkaa. Autopaikkoja vuokrattavissa naapurikiinteistöltä ja Finlandiatalon parkkihallista.
Palvelut
- Aulapalvelut
- Edustustilat
- Lounasravintola
- Vuokrattavat neuvottelutilat
- Sauna
- Edustustilat
- Lounasravintola
- Vuokrattavat neuvottelutilat
- Sauna
Kulkuyhteydet
Loistavat kulkuyhteydet.
Vapautuu
Heti
Rakennusvuosi
1957
Kerros
4 / 8
Energiatehokkuusluokka
Ei lain edellyttämää energiatodistusta
Näkyvällä paikalla
Hissi
Ota yhteyttä
REALIUM OY LKV
Tammasaarenkatu 1, 00180 Helsinki
Vaihde:
Näytä puhelinnumero
010 326 346
Tuomo Mäkelä
tuomo.makela@realium.fi
p.
Näytä puhelinnumero
044 050 1158
Joel Keto
joel.keto@realium.fi
p.
Näytä puhelinnumero
045 317 0330
KAIKKI TILAVAIHTOEHDOT KERRALLA!
SOITA - MEILAA JA TILAA NÄYTTÖ!
Ilmainen palvelu tilanhakijoille.
Kartoitamme parhaat tilavaihtoehdot.
Kaikki kohteet eivät ole netissä.
Pyydä lisätietoa
